Hyggeligt bjælkehus tæt på strand og natur

Sommerhus - 6 personer - Skovhøjgårdsvej - Isefjordkysten - 4305 - Orø

6 personer
Emne nr.: 035-FJ4306
7 overnatninger
Fra DKK 5.560,-
Inkl. rengøring, forsikring og forbrug
Hyggeligt bjælkehus på Orø med brændeovn, tæt på strand og natur, perfekt til en afslappende ferie.
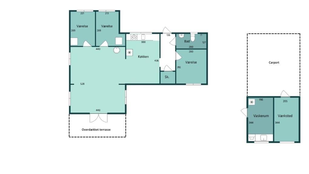
  • Soverum 3
  • Badeværelser 1
  • Boligareal 72 m²
  • Grundareal 1.623 m²
  • Husdyr 1
  • Tilbyder miniferie Ja
  • Afstand vand 430 m
  • Afstand indkøb 2.300 m
  • Highspeed internet Ja
  • Brændeovn Ja
  • Gode fiskeforhold Ja
  • Aircondition Ja
  • Vaskemaskine Ja
  • Tørretumbler Ja
  • Opvaskemaskine Ja
  • Ikkeryger Ja
  • Ladestander til elbil Ja
  • Energivenligt Ja
  • Inklusiv forbrug Ja

Beskrivelse

Velkommen indenfor i dette klassiske bjælkehus.

Huset har 3 værelser med gode senge, en hyggelig stue kombineret med åbent køkken og spisehjørne. Der er mulighed for at tænde op i brændeovnen hvis det er blevet koldt udenfor. Nyd ø-livet med fred og ro i dette dejlige feriehus tæt på gode strande og masser af mulighed for at slappe af.


Nyd livet udenfor

-under parasollen på græsplænen eller terrassen. Brug haven som du har lyst og overnat gerne i husets shelter som er til fri afbenyttelse hvis nætterne bliver for varme indendørs. Morgenbordet er oplagt at flytte ud under parasollen. Der er kort afstand til den gode badestrand ved og omkring øens campingplads når det er tid til en dukkert, og forbered jer så på en stribe aftener med grillen tændt og de gode lokale råvarer på middagsbordet.


Kom tæt på de lokale oplevelser

Orø byder på ro, natur, autentisk stemning, trampestier, strand og lokal kultur. Øen har cirka 14 km. markerede trampestier. Søg og find også spændende botanik og dyreliv når du er derude i naturen alligevel. Du kan også cykle øen rundt på egen eller en lejet cykel. Der er strand og vand til både en badetur i Isefjorden eller måske en kano/kajak tur langs den lavvandede kyst. Besøg Orø kirke eller en af de lokale café/restauranter Bings som er placeret lige midt på øen. Har man lyst til yderligere oplevelser er det bare at hoppe på færgen til Holbæk, hvis bymidte bare oser af god stemning og hygge og kalder en rask shoppetur. Her findes et væld af caféer, bistroer og restauranter for en hver smag og pengepung.

Faciliteter

  • Hus Info

    • Antal husdyr
      1
    • Antal voksne
      6
    • Bruser
    • Byggeår
      1980
    • Delvis renoveret år
      2024
    • Grundareal
      1623 m²
    • Husareal
      72 m²
    • WC
  • Afstande

    • Afstand indkøb
      2,3 km
    • Afstand kyst
      430 m
    • Afstand restaurant
      2,2 km
    • Afstand strand / Sandstrand
      800 m
  • Energi / Opvarmning

    • 4 x Elvarme
    • Brændeovn
    • Varmepumpe / Med køl
  • Hårde hvidevarer

    • Elkedel
    • Emhætte
    • Fryser
      110
    • Kaffemaskine
    • Komfur
    • Køleskab
    • Mikroovn
    • Opvaskemaskine
    • Ovn
    • Tørretumbler
    • Vaskemaskine
  • Multimedier

    • Apple TV
    • Chromecast
    • Dansk tv
    • Gratis Wi-Fi - Over 100 Mbit
    • Norsk TV
    • Svensk TV
    • Tysk TV
  • Ekstra

    • Barneseng
    • Barnestol
    • Cykelvenlig
    • Lystfiskervenlig
    • Vandrevenlig
  • Udenfor

    • Bålsted
    • Carport
    • Delvis overdækket terrasse
      14 m²
    • Grill
    • Havemøbler
    • Liggestole
      2
    • Parasol
      1
    • Parkering på grunden
    • Shelter
    • Udendørs køkken
  • Diverse

    • 2 x Enkeltseng 70 cm
    • 7 x Træ-/parketgulv
    • Afmærkede vandreruter i nærheden
    • Dobbeltseng 120 cm
    • Dobbeltseng 140 CM
    • Flise-/klinkegulv
    • Gulvvarme
    • Åbent køkken
  • Regler

    • Husdyr: Kun hunde tilladt
    • Opladning af elbil tilladt / Lader til elbil forefindes (Type 2-stik, medbring kabel)
    • Rygning ikke tilladt
  • Pris inklusiv

    • Forbrug inkl.
    • Slutrengøring inkl.

Miniferie

Der er begrænset mulighed for miniferie hele året, typisk uden for højsæsonen.

Priser og kalender

Kalender

Ankomst
Forrige Næste
   Se om emnet er ledigt på den valgte dato
Ledig
Optaget
   Ankomst mulig
Varighed

Pris

Periode
Ankomst
Afrejse
Varighed
1 uge
Personer
Op til 6 personer

Bemærk

Ankomst er ikke valgt.
Aftale- og lejebetingelser