Feriehus med spa og fjordudsigt i Hvide Sande

Rækkehus - 6 personer - Slusen - 6960 - Hvide Sande

6 personer
Emne nr.: 039-740
Nyd panoramaudsigt over Ringkøbing Fjord fra dette hyggelige feriehus i Hvide Sande med spa og sauna.
  • Soverum 3
  • Badeværelser 2
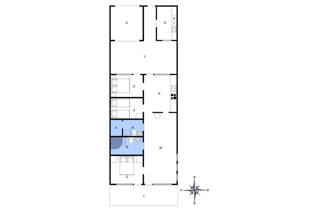
  • Boligareal 113 m²
  • Grundareal 166 m²
  • Husdyr 1
  • Tilbyder miniferie Nej
  • Afstand vand 70 m
  • Afstand indkøb 700 m
  • Spa Ja
  • Sauna Ja
  • Highspeed internet Ja
  • Parabol/kabel TV Ja
  • Brændeovn Ja
  • Gode fiskeforhold Ja
  • Udsigt til vand Ja
  • Vaskemaskine Ja
  • Tørretumbler Ja
  • Opvaskemaskine Ja
  • Ikkeryger Ja

Beskrivelse

Der er kun få meter mellem jer og Ringkøbing Fjord, når I holder ferie i dette lækre feriehus i Hvide Sande. Derfor har I også den flotteste panoramaudsigt over vandet fra både stuen, terrassen og det ene af husets tre soveværelser – hvilket er en skøn påmindelse om, at I befinder jer langt væk fra hverdagens trummerum.

Indendørs

Her i det 113 m2 store rækkehus er der lagt op til hygge og afslapning, og det mærker man straks lige fra ankomsten. Det store opholdsrum, hvor stue og køkken ligger i åben forbindelse, byder jer velkommen med sin varme og venlige atmosfære, og fjordudsigten er selvfølgelig også med til at højne stemningen. I begge ender af rummet giver de store glaspartier et dejligt lysindfald – samt nem adgang til både gårdhaven og terrassen, når vejret er godt. Brændeovnen er med til at skrue op for hyggestemningen, og hvis I virkelig skal varmes igennem og koble af, er der spa på det ene badeværelse og sauna på det andet. På de tre soveværelser er der i alt seks sengepladser, og endelig er der et bryggers med vaskemaskine, tørretumbler, ekstra fryser og fiskerenseplads.

Udendørs

Husets sydvendte terrasse er det helt rette sted at nyde det gode vejr, for den danske sommer kan ikke tage sig meget bedre ud end her i første række til vandet. Vil I slappe af i helt ugenerede omgivelser, kan I slå jer ned i det lukkede gårdmiljø, der ligger mellem huset og garagen.

Beliggenhed

For lystfiskere er det oplagt at tilbringe en stor del af ferien ved de gode fiskepladser ved slusen – og har I haft heldet med jer, er det bekvemt, at I kun skal bære fangsten få meter tilbage til husets fiskerenseplads. Vil I købe ind til frokosten på en af byens røgerier eller spise aftensmad på en god restaurant, har I få minutters gang til Hvide Sandes bymidte, der også byder på et godt udvalg af butikker. Vesterhavet og kystens smukke sandstrande ligger også i gåafstand, og hvis I har medbragt cykler, kan I tage på udflugter i det smukke klit- og hedelandskab på Holmsland Klit.

GRATIS! Udlån af barnestole og barnesenge. Hvis det er tilladt at have husdyr i huset, har vi også hundesenge til udlån (kan hentes og afleveres hos )

EL-bil opladning: Tjek oplysningerne på husets faciliteter, om det er tilladt at oplade EL-bilen.



Vores gæsteanmeldelser Eksterne anmeldelser

3,0
Baseret på 1 vurdering
Vurderet d. 09-08-2025
5
(0)
4
(0)
3
(1)
2
(0)
1
(0)
Kommentarer
1 vurdering har kommentar på dansk.
2 voksne 0 børn 1 husdyr 7 overnatninger 2025 august
Slidt, og trænger til en kærlig hånd…og en hovedrengøring !

Faciliteter

  • Hus Info

    • 2 x WC
    • Antal husdyr
      1
    • Antal voksne
      6
    • Bruser
    • Byggeår
      2007
    • Fjordudsigt
    • Grundareal / Naturgrund
      166 m²
    • Husareal
      113 m²
    • Indendørs spabad
    • Panorama
    • Sauna
  • Afstande

    • Afstand fjord
      70 m
    • Afstand golfbane
      14 km
    • Afstand indkøb / Helårsbutik
      700 m
    • Afstand kyst
      70 m
    • Afstand restaurant
      400 m
    • Afstand strand / Sand-/stenstrand
      1,2 km
    • Afstand svømmehal
      300 m
  • Energi / Opvarmning

    • Brændeovn
    • Fjernvarme
  • Hårde hvidevarer

    • Elkedel
    • Emhætte
    • Fryser
      110
    • Kaffemaskine
    • Komfur
    • Køleskab med frys
    • Mikroovn
    • Opvaskemaskine
    • Ovn
    • Strygebræt
    • Strygejern
    • Tørretumbler
    • Vaskemaskine
  • Multimedier

    • Dansk tv
    • Gratis Wi-Fi - Over 100 Mbit
    • Kabel-TV
      29 kanaler bla. DR, TV2 og 16 tyske, 1 norske og 2 svenske
    • Norsk TV
    • Svensk TV
    • TV
    • Tysk TV
  • Ekstra

    • Barneseng
    • Barnestol
    • Gode fiskeforhold
    • Lystfiskervenlig
  • Udenfor

    • Garage
      20 m²
    • Grill
    • Havemøbler
    • Indendørs fiskerensebord
    • Liggestole
    • Parkering på grunden
    • Åben terrasse
      50 m²
  • Diverse

    • 2 x Dobbeltseng 2x90x200
    • 2 x Enkeltseng 80x200
    • 2 x Gulvvarme
    • 3 x Flise-/klinkegulv
    • 5 x Træ-/parketgulv
  • Regler

    • Husdyr: alle slags husdyr tilladt
    • Opladning af elbil ikke tilladt
    • Rygning ikke tilladt
  • Pris inklusiv

    • Slutrengøring inkl.
    • Vand inkl.
  • GAMMEL

    • CD
    • Radio

Priser og kalender

Kalender

Ankomst
Forrige Næste
  • maj 2026
    mationtofr
    18123
    1945678910
    2011121314151617
    2118192021222324
    2225262728293031
    23
  • juni 2026
    mationtofr
    231234567
    24891011121314
    2515161718192021
    2622232425262728
    272930
    28
   Se om emnet er ledigt på den valgte dato
Ledig
Optaget
   Ankomst mulig
Varighed
Personer

Pris

Periode
Ankomst
Afrejse
Varighed
1 uge
Personer
Ingen personer er valgt

Bemærk

Ankomst er ikke valgt.
Der er ikke valgt personer.
Aftale- og lejebetingelser