Hyggeligt træsommerhus tæt på strand i Houvig

Sommerhus - 6 personer - Mågedalen - Houvig - 6950 - Ringkøbing

6 personer
Emne nr.: 328-952614
Charmerende træsommerhus i Houvig med hyggelig atmosfære, hurtig internet og kun 350 meter til stranden.
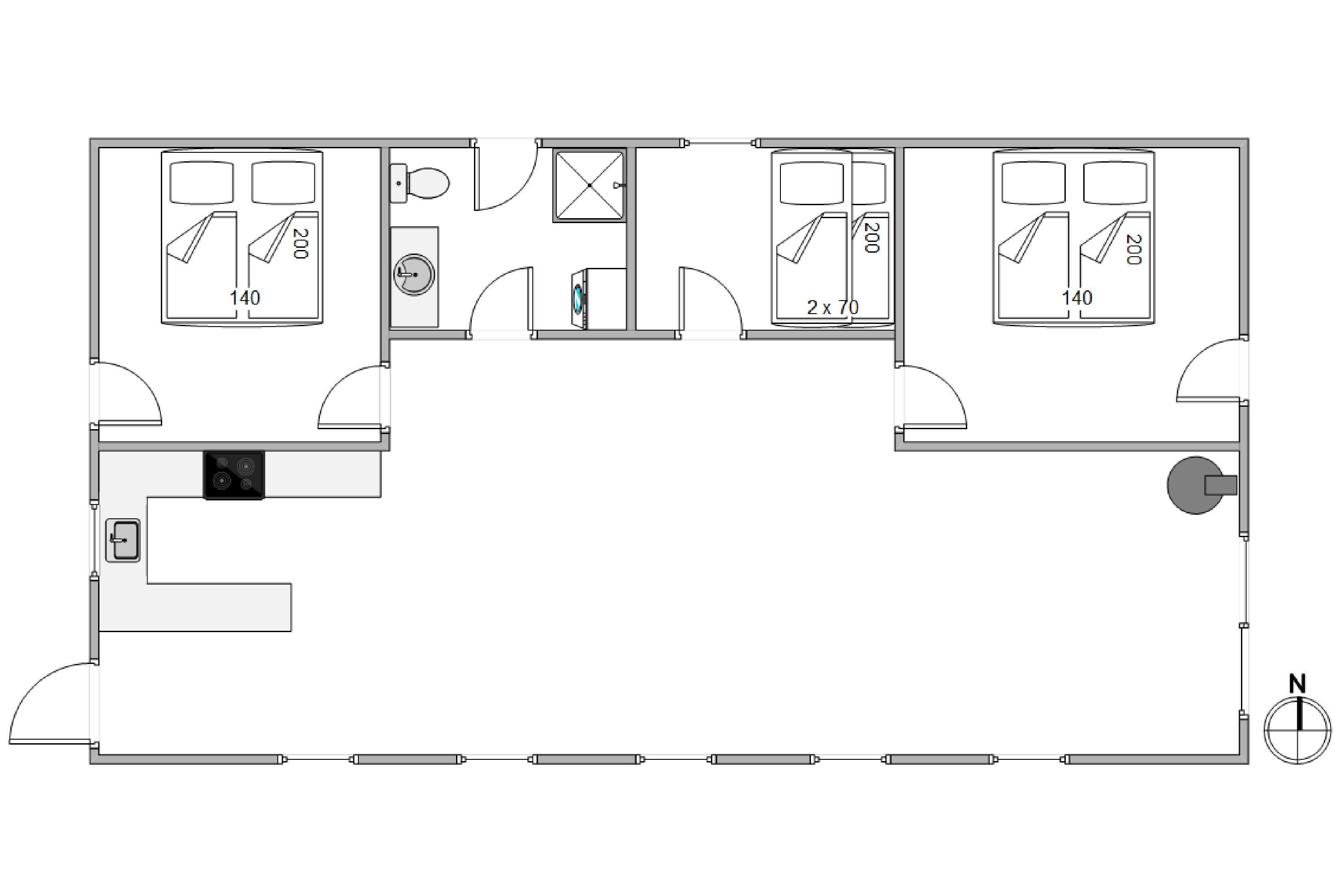
  • Soverum 3
  • Badeværelser 1
  • Boligareal 78 m²
  • Grundareal 1.350 m²
  • Husdyr 1
  • Tilbyder miniferie Nej
  • Afstand vand 350 m
  • Afstand indkøb 500 m
  • Highspeed internet Ja
  • Parabol/kabel TV Ja
  • Brændeovn Ja
  • Vaskemaskine Ja
  • Tørretumbler Ja
  • Ikkeryger Ja
  • Ladestander til elbil Ja
  • Energivenligt Ja

Beskrivelse

I Houvigs fredelige og klitbeklædte omgivelser ligger dette charmerende træsommerhus på Mågedalen 66. De rødmalede brædder udstråler ægte sommerhusferie, og indvendigt emmer huset af hygge og personlighed med dets mange små detaljer. Her får I alt, hvad feriehjertet begærer: Afslappende og venlige omgivelser, masser af privatliv, en stabil internetforbindelse og kun 350 meter til havet! Kommer I i elbil, har I også mulighed for at lade ved huset via CEE-stikket. 

Kærlig og personlig indretning med lynhurtig internetforbindelse

Med Mågedalen 66 som ferieadresse er I garanteret en afslappende ferie langt væk fra hverdagen. Her er plads til 6 personer, og hunden er også mere end velkommen.

Huset er indrettet med kærlighed, og det vil I mærke fra første ferieøjeblik. De mange små detaljer gør omgivelserne personlige og ekstra hyggelige, og de lyse trævægge og lofter sørger for en afslappende og venlig atmosfære i opholdsrummet såvel som i de fine soveværelser.

I sofahjørnet kan I læse en god bog eller slappe af i sofaen med et glas rødvin, når dagen går på hæld, mens brændeovnen sørger for god varme og feriestemning i massevis. Den stabile og hurtige internetforbindelse giver mulighed for at streame film og serier i massevis på de medbragte computere og iPad's.

Lækre terrasser, masser af privatliv og 350 meter til stranden fra Mågedalen 66

Både fra soveværelserne og opholdsstuen har I udgang til de lækre terrasser, som gemmer på flere små hyggekroge. Med en terrasse på hver side af huset kan I følge solen dagen lang, og de afskærmede omgivelser giver jer masser af privatliv til at nyde det gode vejr i ro og fred.

Her bor I midt i naturen, og på de små stier gennem det vidde klitlandskab kommer I hurtigt til den nærmeste strandopgang, som ligger kun 350 meter væk. Den kilometerlange sandstrand bliver et sikkert hit blandt alle feriegæster - både store, små og selvfølgelig hundene.

Har I lyst til shopping, kan I tage turen til den hyggelige ferieby Søndervig, der har et hav af hyggelige caféer, forretninger og restauranter.

Her er der dømt ægte sommerhusferie.

Faciliteter

  • Opholdsrum

    • CD afspiller
    • Gulv: Klinker
    • Gulv: Trælaminat
    • Radio
    • Brændeovn
    • Fladskærms-TV
      1
  • Soverum

    • Gulv: Tæppe
    • Dobbeltsenge
      2
    • Køjesenge
      1
    • Sovepladser
      6
    • Soverum
      3
    • 1. soverum/sengestørrelser
      1 x 140 x 200
    • 2. soverum/sengestørrelser
      1 x 140 x 200
    • 3. soverum/sengestørrelser
      2 x 70 x 200
  • Køkken

    • Komfur: El m. ovn
    • Køleskab m. frostboks
    • Mikroovn
    • Separat fryser /L
      20
  • Baderum

    • Gulvvarme bad
    • Antal badeværelser
      1
  • Objektinfo - Inde

    • Areal: Hus m²
      78
    • Bordtennis
    • Byggeår
      1986
    • Husdyr tilladt
    • Husdyr antal, max
      1
    • Ikke ryger hus
    • Personantal
      6
    • Renoveret
      2017
    • Tyske tv-programmer
    • Tørretumbler
    • Varme: Elvarme
    • Varme: Varmepumpe luft til luft
    • Vaskemaskine
    • Satellit (tyske kanaler samt et par danske)
    • Gratis fiber Internet
    • Chromecast
    • Jubilæumsmønt er udleveret
  • Objektinfo - ude

    • Afstand i meter: Hav
      350 m
    • Afstand i meter: Indkøb
      500 m
    • Grundens areal i m2
      1350
    • Grill
    • Havemøbler
    • Solvogne
    • Parasol
    • Parkering: Garage
    • Terrasse: åben
    • Terrasse: Afskærmet
    • Terrasse: Lukket
    • Terrasse: Overdækket
    • Naturgrund
    • Affald hentes:
      Onsdag
    • Affald: Helårstømning
    • Skraldespand - Liter
      240
    • Ladestik til el-bil
  • Koncepter

    • Varme: 24 timer f. ankomst
    • Skiftedag: Søndag
  • Miniferie

    • Ja, tak - tillad miniferie

Priser og kalender

Kalender

Ankomst
Forrige Næste
  • april 2026
    mationtofr
    1412345
    156789101112
    1613141516171819
    1720212223242526
    1827282930
    19
  • maj 2026
    mationtofr
    18123
    1945678910
    2011121314151617
    2118192021222324
    2225262728293031
    23
   Se om emnet er ledigt på den valgte dato
Ledig
Optaget
   Ankomst mulig
Varighed

Pris

Periode
Ankomst
Afrejse
Varighed
1 uge
Personer
Op til 6 personer

Bemærk

Ankomst er ikke valgt.
Aftale- og lejebetingelser