Hyggeligt sommerhus tæt ved vandet i Houvig

Sommerhus - 6 personer - Mågedalen - Houvig - 6950 - Ringkøbing

6 personer
Emne nr.: 328-667185
Hyggeligt sommerhus i naturskønne Houvig med lukket terrasse og kun 350 m til vandet – perfekt til afslapning og familieophold.
  • Soverum 3
  • Badeværelser 1
  • Boligareal 59 m²
  • Grundareal 1.350 m²
  • Husdyr 1
  • Tilbyder miniferie Nej
  • Afstand vand 350 m
  • Afstand indkøb 2.500 m
  • Highspeed internet Ja
  • Brændeovn Ja
  • Vaskemaskine Ja
  • Opvaskemaskine Ja
  • Ikkeryger Ja
  • Ladestander til elbil Ja
  • Energivenligt Ja

Beskrivelse

Trænger I til et afbræk fra hverdagen, hvor I kan slappe helt af? Og gerne i naturskønne omgivelser tæt ved vandet? Så er I landet det rigtige sted. For sommerhuset beliggende på Mågedalen 43 i Houvig er helt sikkert noget for jer. Her får I hyggelige omgivelser, dejlig naturgrund, skøn terrasse og sovepladser til 4 personer og 1 hund. Den perfekte størrelse til parret eller den lille familie.

Hyggelig indretning med fokus på hygge og samvær

Det er ingen tvivl om, at I kan nyde jeres velfortjente afbræk fra hverdagen i de skønne rammer i sommerhuset i Houvig. Her oser af klassisk sommerhuscharme, hvilket blandt andet kan tilskrives de panelbeklædte vægge, loftet til kip og de synlige loftbjælker. Og hvis det ikke er nok, skal den knitrende brændeovn og de store vinduespartier nok sørge for at banke stemningsbarometeret yderligere op. Har i ikke gang i i brændeovnen, har i en energibesparende lugt-til-luft varmepumpe til jeres rådighed, som bidrager til et behageligt indeklima hele året rundt.
 
Huset er lyst, venligt og godt indrettet. I stuen kan I slå jer ned i de bløde sofaer og zappe tv på fladskærmen, læne jer tilbage med en god bog eller nyde udsigten. I stuen finder I foruden tv’et samt radio- og CD-afspiller. Køkkenet er veludstyret med blandt andet mikroovn, opvaskemaskine samt køleskab med 90 liters frysekapacitet. I forbindelse med køkkenet er der en dejlig spiseafdeling med vindue mod vest. Herfra er der udgang til en lille vestvendt terrasse.
 
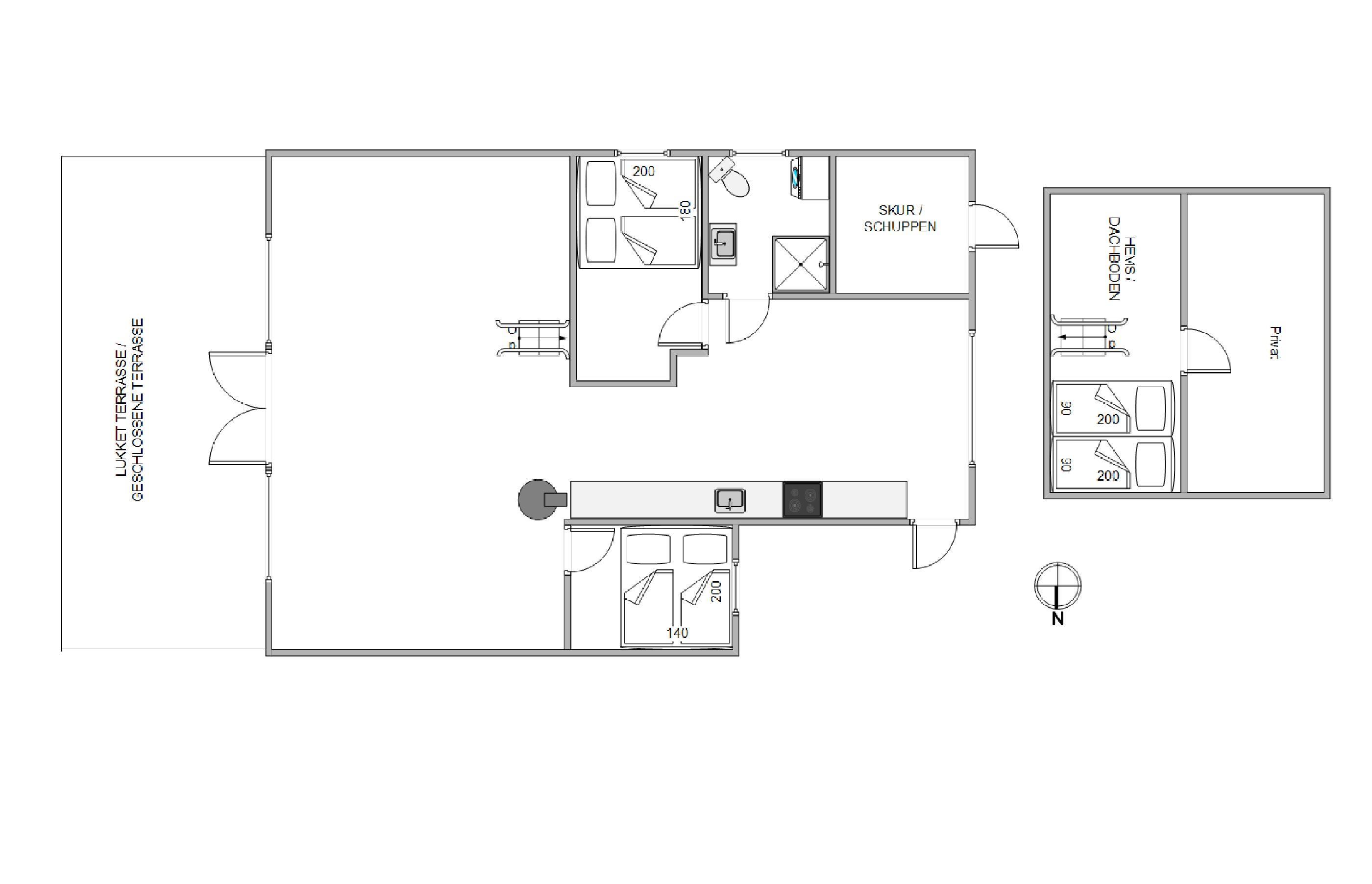
I sommerhuset finder I 2 gode værelser, der begge er indrettet med behagelige dobbeltsenge. Herudover er der en hems, hvor der er plads til yderligere 2 sovende gæster. Dertil kommer et lyst og venligt badeværelse med bruseniche og gulvvarme.

Feriehuset er udstyret med et 220 V - 6 Amp ladestik til elbil.

Dejlig aflukket terrasse og kun 350 meter til vandet fra Mågedalen 47

Fra stuen er der direkte udgang til en skøn, renoveret østvendt terrasse, som er delvist overdækket og komplet aflukket. Det gør den ekstra attraktiv for børnefamilier og hundeejere, der dermed kan sikre at hverken små tobenede eller firbenede forvilder sig ud på eventur på egen hånd. Børnene kan endda fordrive tiden på grundens rutsjebane, der med garanti vil være et stort hit hos de små.
 
Huset er beliggende på en stille, blind vej, så I skal ikke frygte for generede trafik eller passerede gæster. Grunden er omkranset af sporadiske nåletræer og hybenbuske, der giver lidt ekstra privatliv – uden at spolere udsigten.
 
Området omkring sommerhuset er meget eftertragtet. Det skyldes ikke mindst den korte afstand til vandet. Havet ligger blot 350 meter fra grunden og kan nås på gåben i løbet af få minutter via de mange stisystemer, der findes omkring Houvig.

 

Faciliteter

  • Opholdsrum

    • CD afspiller
    • Gulv: Klinker
    • Gulv: Trælaminat
    • Gulvvarme
    • Radio
    • Brændeovn
    • Fladskærms-TV
      1
  • Soverum

    • Gulv: Trælaminat
    • Gulv: Tæppe
    • Dobbeltsenge
      2
    • Sovepladser
      6
    • Soverum
      3
    • Antal personer (loft, anneks osv.)
      2
    • 1. soverum/sengestørrelser
      1 dobbeltseng (1x180x200)
    • 2. soverum/sengestørrelser
      1 Dobbeltseng (1x140x200)
    • 3. soverum/sengestørrelser
      2 Senge (2x90x200)
  • Køkken

    • Komfur: El m. ovn
    • Køleskab
    • Opvaskemaskine
    • Mikroovn
    • Separat fryser /L
      90
  • Baderum

    • Gulvvarme bad
    • Antal badeværelser
      1
  • Objektinfo - Inde

    • Areal: Hus m²
      59
    • Byggeår
      1969
    • Barneseng
      1
    • Barnestol
      1
    • Husdyr tilladt
    • Husdyr antal, max
      1
    • Ikke ryger hus
    • Gratis Internet
    • Personantal
      6
    • Renoveret
      2001
    • Danske TV-kanaler (Betalingskanaler)
    • Tyske tv-programmer
    • Varme: Elvarme
    • Varme: Solvarme anlæg
    • Varme: Varmepumpe luft til luft
    • Vaskemaskine
    • Gratis fiber Internet
    • Chromecast
    • Jubilæumsmønt er udleveret
  • Objektinfo - ude

    • Afstand i meter: Hav
      350 m
    • Afstand i meter: Indkøb
      2,5 km
    • Grundens areal i m2
      1350
    • Gynge
    • Sandkasse
    • Grill
    • Havemøbler
    • Solvogne
    • Terrasse: Lukket
    • Naturgrund
    • Affald hentes:
      Onsdag
    • Skraldespand - Liter
      240
    • Ladestik til el-bil
  • Koncepter

    • Skiftedag: Lørdag
    • Varme: 24 timer f. ankomst
  • Miniferie

    • Ja, tak - tillad miniferie

Priser og kalender

Kalender

Ankomst
Forrige Næste
  • juni 2026
    mationtofr
    231234567
    24891011121314
    2515161718192021
    2622232425262728
    272930
    28
  • juli 2026
    mationtofr
    2712345
    286789101112
    2913141516171819
    3020212223242526
    312728293031
    32
   Se om emnet er ledigt på den valgte dato
Ledig
Optaget
   Ankomst mulig
Varighed

Pris

Periode
Ankomst
Afrejse
Varighed
1 uge
Personer
Op til 6 personer

Bemærk

Ankomst er ikke valgt.
Aftale- og lejebetingelser