Charmerende sommerhus tæt på Vesterhavet

Sommerhus - 6 personer - Skovdalen - Houvig - 6950 - Ringkøbing

6 personer
Emne nr.: 328-364518
Hyggeligt sommerhus i Houvig med træterrasse, kamin og kun 550 m til stranden.
  • Soverum 3
  • Badeværelser 1
  • Boligareal 60 m²
  • Grundareal 1.250 m²
  • Husdyr Ikke tilladt
  • Tilbyder miniferie Nej
  • Afstand vand 550 m
  • Afstand indkøb 3 km
  • Internet Ja
  • Brændeovn Ja
  • Opvaskemaskine Ja
  • Ikkeryger Ja
  • Energivenligt Ja

Beskrivelse

Er I på udkig efter et hyggeligt, mindre feriehus i ægte sommerhusstil, så er Skovdalen 8 lige noget for jer! Sommerhuset ligger på en dejlig, solrig og lukket naturgrund, som er omgivet af en skøn 200 m2 stor træterrasse. Her er plads til seks personer, der kan nyde og opleve den Jyske Vestkyst.

Feriehus med klassisk indretning med kamin

Når I træder ind i Skovdalen 8, bliver I mødt af et sommerhus, der kombinerer det klassiske med det moderne. Træpaneler og bjælkerne i loftet sørger for klassisk feriehuscharme, mens møblerne, køkkenet og de store vinduespartier bidrager til et moderne islæt.

Sommerhuset er på 60 m2 og trods dets størrelse, rummer det fin plads til seks personer. Den åbne stue er i direkte forbindelse med både køkken og spisestue. Her kan I spille brætspil, lave mad eller slappe af sammen foran den knitrende ild i kaminen. Den energivenlige varmepumpe sikrer en behagelig og konstant temperatur.

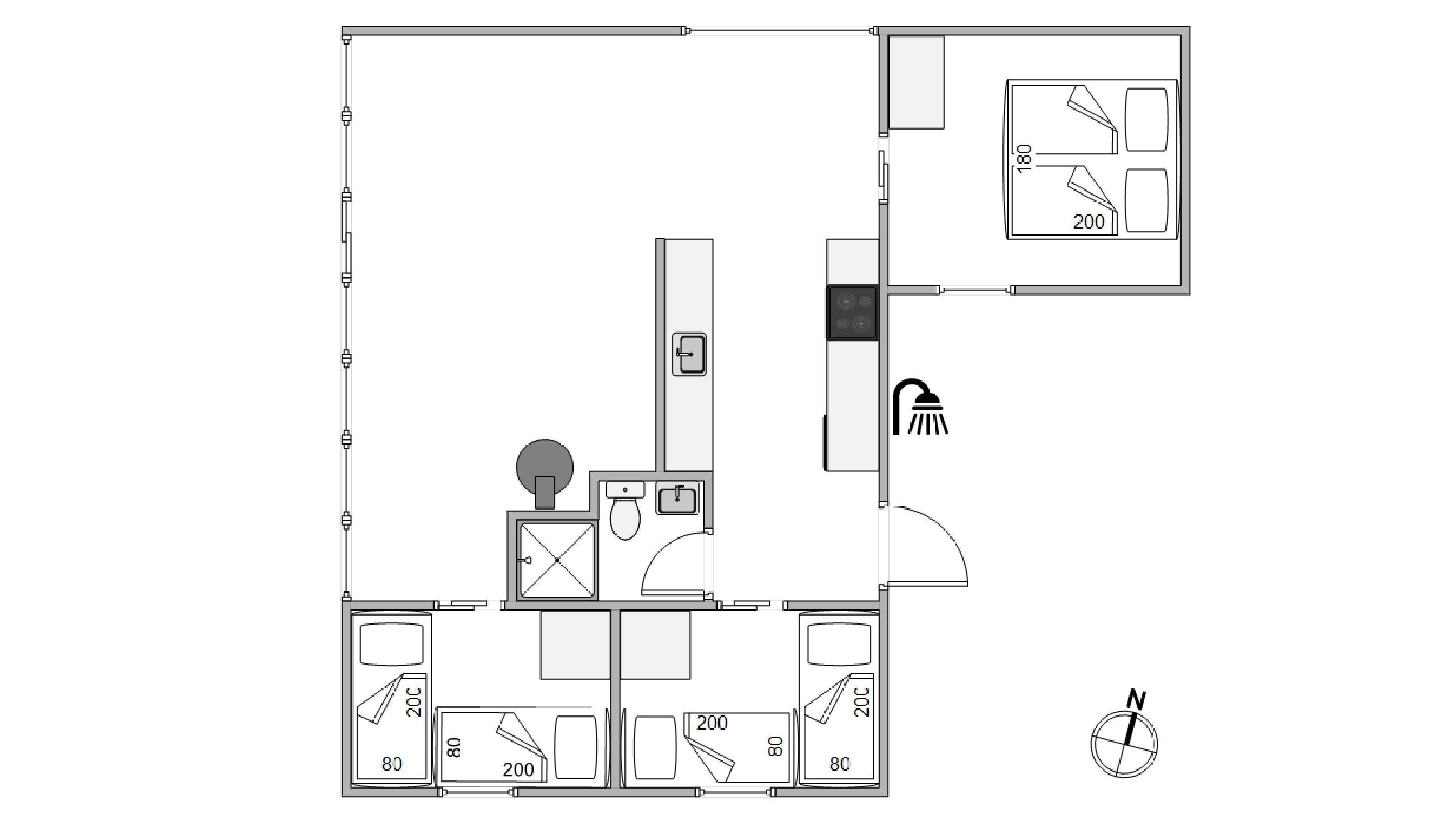
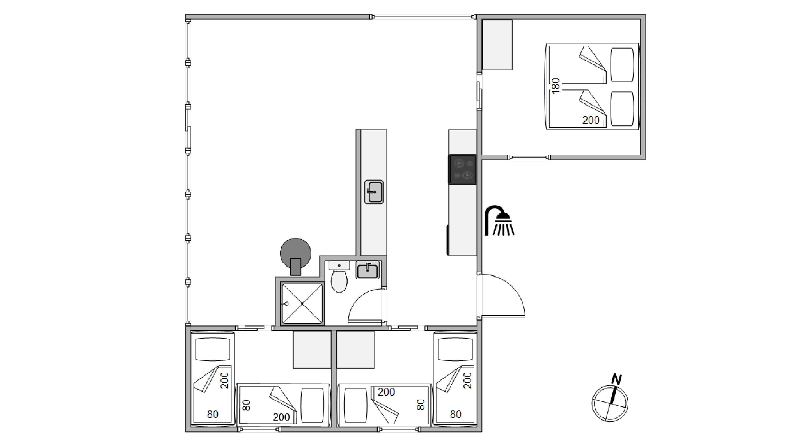
Om aftenen, efter en lang og begivenhedsrig dag langs Vestkysten, kan I fordele jer i et af de tre soverum. Det ene soverum er udstyret med dobbeltseng, mens de to andre har enkeltsenge. Der er gulvvarme i badeværelset, så I ikke fryser om fødderne på køligere dage.

Skøn træterrasse på stor naturgrund med udebruser, bålsted og trampolin

Feriehuset på Skovdalen 8 i Houvig ligger på en lukket naturgrund på godt 1250 m2, som giver mange muligheder for at lege og boltre sig på grunden. Trampolinen, der er gravet ned i jorden, vil helt sikkert blive et hit for de mindste i familien. Terrassen går næsten hele vejen rundt om feriehuset, så I kan altid finde et læfyldt sted alt efter solens placering og vindretning. Der er både hængekøje, grill og havemøbler til rådighed på terrassen. Her kan I sidde og slappe af og nyde solen, mens I tilbereder et lækkert måltid mad i udekøkkenet.

Efter I har været en tur på stranden, har I mulighed for at skylle sandet af kroppen, under feriehusets udebruser. OBS. Udebruseren er kun tilgængelig i perioden april-november.

Hold ferie på Skovdalen 8, kun 550 meter fra stranden

Et af feriehusets højdepunkter er dets fine beliggenhed, da det kun ligger ca. 550 meter fra stranden og det brusende Vesterhav. Så et besøg på stranden er et must. Ikke langt fra Skovdalen 8 finder I den livlige badeby Søndervig, hvor der er små cafeer, butikker og restauranter.

Faciliteter

  • Opholdsrum

    • Gulv: Træ
    • Brændeovn
    • Fladskærms-TV
      2
  • Soverum

    • Gulv: Træ
    • Dobbeltsenge
      1
    • Enkeltsenge
      4
    • Sovepladser
      6
    • Soverum
      3
    • 1. soverum/sengestørrelser
      180 x 200
    • 2. soverum/sengestørrelser
      2 x 80 x 200
    • 3. soverum/sengestørrelser
      2 x 80 x 200
  • Køkken

    • Komfur: Induktion m. ovn
    • Køleskab
    • Opvaskemaskine
    • Separat fryser /L
      80
  • Baderum

    • Gulvvarme bad
    • Antal badeværelser
      1
  • Objektinfo - Inde

    • Areal: Hus m²
      60
    • Byggeår
      1966
    • Ikke ryger hus
    • Gratis Internet
    • Personantal
      6
    • Renoveret
      2017
    • Danske TV-kanaler (Betalingskanaler)
    • Tyske tv-programmer
    • Varme: Elvarme
    • Varme: Varmepumpe luft til luft
    • Apple TV
    • Jubilæumsmønt er udleveret
  • Objektinfo - ude

    • Afstand i meter: Hav
      550 m
    • Afstand i meter: Indkøb
      3 km
    • Grundens areal i m2
      1250
    • Grill
    • Havemøbler
    • Solvogne
    • Parasol
    • Terrasse: Afskærmet
    • Naturgrund
    • Affald hentes:
      Onsdag
    • Skraldespand - Liter
      240
    • Trampolin
    • Gasgrill
    • Udebruser (April - 1. november)
  • Koncepter

    • Skiftedag: Fredag
  • Miniferie

    • Ja, tak - tillad miniferie

Priser og kalender

Kalender

Ankomst
Forrige Næste
  • april 2026
    mationtofr
    1412345
    156789101112
    1613141516171819
    1720212223242526
    1827282930
    19
  • maj 2026
    mationtofr
    18123
    1945678910
    2011121314151617
    2118192021222324
    2225262728293031
    23
   Se om emnet er ledigt på den valgte dato
Ledig
Optaget
   Ankomst mulig
Varighed

Pris

Periode
Ankomst
Afrejse
Varighed
1 uge
Personer
Op til 6 personer

Bemærk

Ankomst er ikke valgt.
Aftale- og lejebetingelser