Veludstyret sommerhus nær Vesterhavet

Sommerhus - 8 personer - Krogen - Houvig - 6950 - Ringkøbing

8 personer
Emne nr.: 328-184747
Charmerende sommerhus i naturskønne Houvig med udekøkken, sauna og tæt på Vesterhavet.
  • Soverum 4
  • Badeværelser 2
  • Boligareal 125 m²
  • Grundareal 2.000 m²
  • Husdyr 1
  • Tilbyder miniferie Nej
  • Afstand vand 100 m
  • Afstand indkøb 2 km
  • Spa Ja
  • Sauna Ja
  • Highspeed internet Ja
  • Parabol/kabel TV Ja
  • Brændeovn Ja
  • Vaskemaskine Ja
  • Tørretumbler Ja
  • Opvaskemaskine Ja
  • Ikkeryger Ja
  • Energivenligt Ja

Beskrivelse

Dette sommerhus på Krogen 9 er for dig, der drømmer om at holde ferie i naturskønne omgivelser med fokus på udelivet. Her har du mulighed for at leje et sommerhus med et smukt og funktionelt udekøkken og en skøn lukket terrasse. Krogen 9 er et godt valg for to familier, der rejser sammen eller som en gruppe venner. Her er nemlig plads til otte personer fordelt på 125m2. 

Godt indrettet sommerhus på Krogen 9

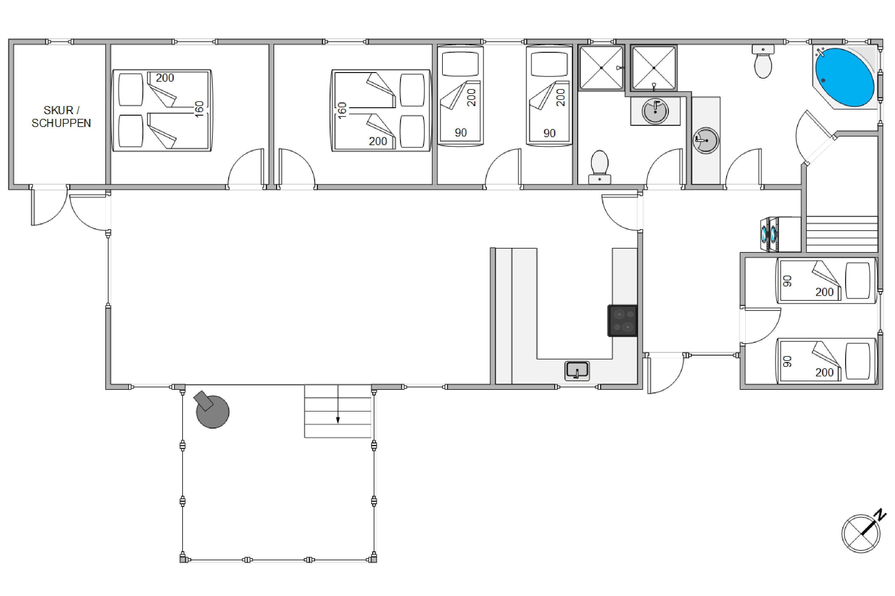
Sommerhuset er velholdt og godt indrettet med gode møbler og store vinduer. Feriehuset har to gode badeværelser, som begge er med gulvvarme. På det største badeværelse er der desuden både spabad og sauna, der er helt perfekt som afslutning på en lang og måske aktiv dag udenfor. Sommerhuset er indrettet til otte personer med fire gode soverum. 

Sommerhuset har et dejligt opholdsrum, hvorfra der er adgang til en lille udestue som ligger i forskudt niveau med resten af huset. Her er der et virkelig godt lysindfald på grund af de mange store vinduespartier. Som ekstra komfort er der gulvvarme i køkkenet, så her er der ikke fare for kolde fødder.

Sommerhus med udekøkken og lukket træterrasse 

Hvorfor spilde feriens solskinstimer inde i køkkenet? På terrassen har sommerhuset et flot udekøkken med masser af bordplads og en vask, som gør tilberednignen af maden lidt lettere. I skuret finder du desuden et ekstra køleskab til opbevaring af de kolde drikkevarer. Terrassen er let afskærmet af et lavt stakit. Det betyder, at du kan sidde uforstyrret på terrassen og samtidig nyde landskabet, der omkranser feriehuset. Terrassen er naturligvis indrettet med gode havemøbler, liggestole og grill. Er du til en frisk dukkert, ligger Vesterhavets brusende bølger blot 100 meter fra sommerhuset.

Smag på Vestjylland

Er du til lækre og lokale råvarer, så har området omkring Houvig utroligt meget at byde på. Ikke langt fra sommerhuset ligger en dejlig gårdbutik med spændende, økologiske delikatesser og lokale råvarer. Her kan du blandt andet købe kød, delikatesser og frisklavet is. Mangler I friske fisk til grillen, så finder I gode specialbutikker med friske fisk i havnebyen Hvide Sande. Her er der desuden et spændende udvalg af butikker og aktiviteter for hele familien.

Faciliteter

  • Opholdsrum

    • CD afspiller
    • Gulv: Trælaminat
    • Gulvvarme
    • Radio
    • Brændeovn
    • Fladskærms-TV
      2
  • Soverum

    • Gulv: Trælaminat
    • Dobbeltsenge
      2
    • Enkeltsenge
      4
    • Sovepladser
      8
    • Soverum
      4
    • 1. soverum/sengestørrelser
      200x160
    • 2. soverum/sengestørrelser
      200x160
    • 3. soverum/sengestørrelser
      200x90x2
    • 4. soverum/sengestørrelser
      200x90x2
  • Køkken

    • Komfur: Induktion m. ovn
    • Køleskab
    • Opvaskemaskine
    • Mikroovn
    • Separat fryser /L
      101
  • Baderum

    • Sauna
    • Gulvvarme bad
    • Antal badeværelser
      2
    • Tømmespa, antal pers.
      2
  • Objektinfo - Inde

    • Areal: Hus m²
      125
    • Byggeår
      2000
    • Barneseng
      1
    • Barnestol
      1
    • Husdyr tilladt
    • Husdyr antal, max
      1
    • Ikke ryger hus
    • Personantal
      8
    • Tyske tv-programmer
    • Tørretumbler
    • Varme: Elvarme
    • Varme: Varmepumpe luft til luft
    • Vaskemaskine
    • Satellit (tyske kanaler samt et par danske)
    • Udestue
    • Flere hunde ved forespørgsel
    • Gratis fiber Internet
    • Apple TV
    • Jubilæumsmønt er udleveret
  • Objektinfo - ude

    • Afstand i meter: Hav
      100 m
    • Afstand i meter: Indkøb
      2 km
    • Grundens areal i m2
      2000
    • Havemøbler
    • Solvogne
    • Parasol
    • Parkering: Carport
    • Terrasse: åben
    • Terrasse: Afskærmet
    • Terrasse: Lukket
    • Terrasse: Overdækket
    • Redskabsrum
    • Naturgrund
    • Affald hentes:
      Torsdag
    • Skraldespand - Liter
      240
    • Gasgrill
  • Koncepter

    • Skiftedag: Lørdag
    • Varme: 24 timer f. ankomst
    • Vandaflæsning
    • Fjernaflæsning af vandmåler
  • Miniferie

    • Ja, tak - tillad miniferie

Priser og kalender

Kalender

Ankomst
Forrige Næste
  • oktober 2026
    mationtofr
    401234
    41567891011
    4212131415161718
    4319202122232425
    44262728293031
    45
  • november 2026
    mationtofr
    441
    452345678
    469101112131415
    4716171819202122
    4823242526272829
    4930
   Se om emnet er ledigt på den valgte dato
Ledig
Optaget
   Ankomst mulig
Varighed

Pris

Periode
Ankomst
Afrejse
Varighed
1 uge
Personer
Op til 8 personer

Bemærk

Ankomst er ikke valgt.
Aftale- og lejebetingelser