Hyggeligt skovhus med overdækket terrasse

Sommerhus - 5 personer - Pugeldal - Houstrup - 6830 - Nr. Nebel

5 personer
Emne nr.: 328-970768
Hyggeligt træhus i Houstrup med skovlige omgivelser, overdækket terrasse og plads til afslapning.
  • Soverum 3
  • Badeværelser 1
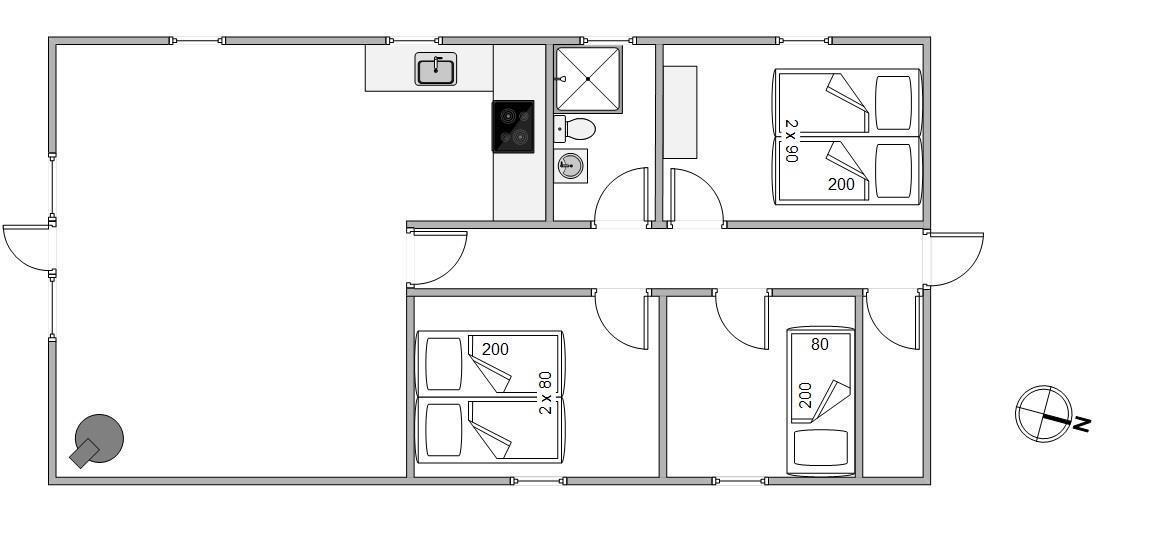
  • Boligareal 84 m²
  • Grundareal 2.000 m²
  • Husdyr 1
  • Tilbyder miniferie Nej
  • Afstand vand 3 km
  • Afstand indkøb 3.550 m
  • Highspeed internet Ja
  • Parabol/kabel TV Ja
  • Brændeovn Ja
  • Opvaskemaskine Ja
  • Ikkeryger Ja
  • Energivenligt Ja

Beskrivelse

Har I lyst til en dejlig og afslappende ferie midt i Houstrups skovlandskab?  Her kan I tilbringe en helt ugeneret ferie med jeres nærmeste. Nyd stilheden og fuglenes fløjten, og betragt den smukke solnedgang bag de mange høje træer, som omkranser huset.

Det perfekte sommerhus

Det røde træhus udstråler idyl på bedste vis, og også indvendigt finder I venlige og lyse omgivelser, hvor I vil falde godt til fra start. Indenfor finder I en stor køkken- og spisestueafdeling, hvor hele familien kan nyde en lækker middag eller samles til en hyggelig filmaften på sofaen.

På den store og overdækkede terrasser er der rigelig med plads til at slappe af og nyde solstrålerne fra liggestolene, og grillen står klar, så I kan tilberede et rigtigt feriemåltid om aftenen.

Foran huset er en stor græsplæne, som især vil falde i god jord blandt de mindste feriegæster, der her kan lege og spille. Her kan hele familien også tage en runde vikingespil eller en omgang fodbold, hvis I er friske. Der er også en sandkasse og et gyngestativ, så de mindste aldrig kommer til at kede sig.

Fantastiske omgivelser

Her bliver der aldrig kedeligt, og planlægger I en udflugt, er de små omkringliggende feriebyer som Bork Havn og Hvide Sande helt oplagte at besøge. De hyggelige havnebyer byder på en helt unik atmosfære og masser af små caféer og restauranter, hvor dagens frokost kan nydes.

Skovlandskabet i Houstrup er helt perfekt til vandreture, og på de små stier kan I udforske det flotte område og dyrelivet omkring det. Også den skønne sandstrand ligger kun et par kilometer fra huset, og her kan der (sol)bades og slappes af i det gode vejr.

På de klare aftener kan I betragte den smukke solnedgang fra terrassen og skåle i jeres yndlingsvin, mens dagens sidste timer rinder ud i stilheden.

Faciliteter

  • Opholdsrum

    • CD afspiller
    • DVD-afspiller
      1
    • Gulv: Træ
    • Radio
    • Brændeovn
    • Fladskærms-TV
      2
  • Soverum

    • Gulv: Tæppe
    • Dobbeltsenge
      2
    • Enkeltsenge
      1
    • Sovepladser
      5
    • Soverum
      3
    • 1. soverum/sengestørrelser
      2x80x200
    • 2. soverum/sengestørrelser
      2x90x200
    • 3. soverum/sengestørrelser
      80x200
  • Køkken

    • Komfur: El m. ovn
    • Køleskab m. frostboks
    • Opvaskemaskine
    • Mikroovn
    • Separat fryser /L
      40
  • Baderum

    • Gulvvarme bad
    • Antal badeværelser
      1
  • Objektinfo - Inde

    • Areal: Hus m²
      84
    • Byggeår
      1976
    • Barneseng
      1
    • Barnestol
      1
    • Husdyr tilladt
    • Husdyr antal, max
      1
    • Ikke ryger hus
    • Personantal
      5
    • Renoveret
      2011
    • Danske TV-kanaler (Betalingskanaler)
    • Tyske tv-programmer
    • Varme: Elvarme
    • Varme: Varmepumpe luft til luft
    • Satellit (tyske kanaler samt et par danske)
    • Gratis fiber Internet
    • Chromecast
    • Jubilæumsmønt er udleveret
  • Objektinfo - ude

    • Afstand i meter: Hav
      3 km
    • Afstand i meter: Indkøb
      3,6 km
    • Grundens areal i m2
      2000
    • Gynge
    • Sandkasse
    • Grill
    • Havemøbler
    • Solvogne
    • Parasol
    • Parkering: Carport
    • Terrasse: åben
    • Terrasse: Afskærmet
    • Terrasse: Overdækket
    • Redskabsrum
    • Naturgrund
    • Affald hentes:
      Mandag
    • Skraldespand - Liter
      140
    • Gasgrill
  • Koncepter

    • Skiftedag: Lørdag
    • Miniferie tilladt (KUN gl. Schultz)
  • Miniferie

    • Ja, tak - tillad miniferie

Priser og kalender

Kalender

Ankomst
Forrige Næste
  • juli 2026
    mationtofr
    2712345
    286789101112
    2913141516171819
    3020212223242526
    312728293031
    32
  • august 2026
    mationtofr
    3112
    323456789
    3310111213141516
    3417181920212223
    3524252627282930
    3631
   Se om emnet er ledigt på den valgte dato
Ledig
Optaget
   Ankomst mulig
Varighed

Pris

Periode
Ankomst
Afrejse
Varighed
1 uge
Personer
Op til 5 personer

Bemærk

Ankomst er ikke valgt.
Aftale- og lejebetingelser