Hyggeligt sommerhus med sauna og stor terrasse

Sommerhus - 5 personer - Kirkeflod - Houstrup - 6830 - Nr. Nebel

5 personer
Emne nr.: 328-501460
Hyggeligt sommerhus i Houstrup med sauna, overdækket terrasse og plads til 5 personer og 2 hunde.
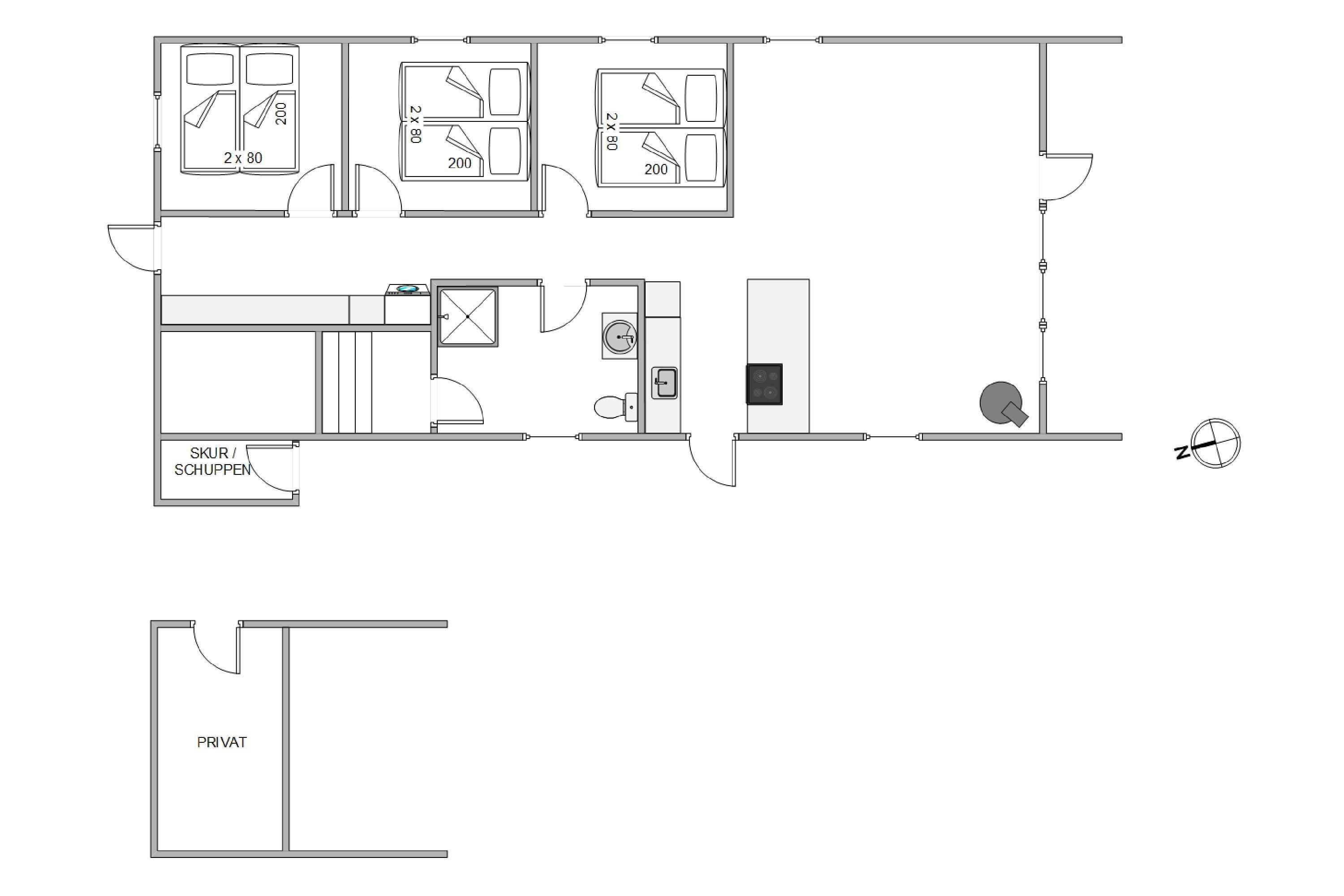
  • Soverum 3
  • Badeværelser 1
  • Boligareal 74 m²
  • Grundareal 1.080 m²
  • Husdyr 2
  • Tilbyder miniferie Nej
  • Afstand vand 3 km
  • Afstand indkøb 4 km
  • Sauna Ja
  • Highspeed internet Ja
  • Parabol/kabel TV Ja
  • Brændeovn Ja
  • Vaskemaskine Ja
  • Tørretumbler Ja
  • Opvaskemaskine Ja
  • Ikkeryger Ja
  • Ladestander til elbil Ja
  • Energivenligt Ja

Beskrivelse

På Kirkeflod 69 i Houstrup ligger dette skønne sommerhus med sauna, hvor 5 personer og op til 2 hund kan nyde en afslappende ferie. Saunaen er et absolut højdepunkt, som helt sikkert vil gøre jer godt og når mørket falder på kan man roligt vikle tæppet om sig og nyde et glas eller kom kaffe på den skønne overdækkede terrasse. 

Samtaler over køkkenøen og hygge ved brændeovnen

Sommerhusets 74 kvadratmeter er lyst og venligt indrettet, og fordeler sig blandt andet på de 3 soveværelser, som hver især er indrettet med en dobbeltseng. Badeværelset med gulvvarme ligger lige ved siden af soveværelserne og det er også her, I finder saunaen. Det perfekte sted at give slip på hverdagens stress og bare give sig hen, mens varmen trænger helt ind under huden.

Den energirigtige varmepumpe lader jer hurtigt og effektivt opvarme sommerhuset. Skal hyggen tages til næste niveau, kan I tænde op i brændeovnen og nyde synet af flammerne, der knitrer så hyggeligt, samt mærke varmen sprede sig i opholdsrummet.

Opholdsrummet, hvor stue, køkken og spisestue er samlet, er det oplagte sted at samles, mens I hver især laver noget forskelligt, og samtidig blot nyder hinandens nærvær.

Overdækket terrasse, perfekt til alle årstider

Fra opholdsrummet har I direkte adgang ud til terrassen og haven på den 1080 kvadratmeter naturgrund, som er omgivet af høje træer på de fleste sider. Terrassen giver jer rigelig mulighed for at nyde solen hele dagen, da den strækker sig om 3 af husets sider. Her står både havemøbler, solvogne og endda en grill til jeres rådighed, så I rigtig kan slå jer løs i haven på de varme sommerdage.

På sommerhusets grund finder I en sandkasse, der indbyder til leg og aktivitet for feriens yngste gæster. Her kan børnene bruge mange timer i den friske luft, og de voksne er selvfølgelig også velkomne til at deltage.

Oplev området nær Kirkeflod 69

Derudover kan I nemt tage et smut til den offentlige legeplads i nærheden, hvis der ønskes endnu flere muligheder for leg. Fra den lille sti, der går forbi bag huset, kan I udforske Houstrups mange cykel- og vandrestier, som bugter sig gennem den pragtfulde natur. Hvis I har lyst til en længere tur, er det brusende Vesterhav kun 3000 meter fra adressen på Kirkeflod 69, og det byder på en enestående naturoplevelse.

Faciliteter

  • Opholdsrum

    • DVD-afspiller
      1
    • Gulv: Trælaminat
    • Radio
    • Brændeovn
    • Fladskærms-TV
      1
    • Dock/Bluetooth enhed
  • Soverum

    • Gulv: Tæppe
    • Dobbeltsenge
      3
    • Sovepladser
      6
    • Soverum
      3
    • 1. soverum/sengestørrelser
      2x80x200
    • 2. soverum/sengestørrelser
      2x80x200
    • 3. soverum/sengestørrelser
      2x80x200
  • Køkken

    • Komfur: Induktion m. ovn
    • Køleskab
    • Opvaskemaskine
    • Mikroovn
    • Separat fryser /L
      50
  • Baderum

    • Sauna
    • Gulvvarme bad
    • Antal badeværelser
      1
  • Objektinfo - Inde

    • Areal: Hus m²
      74
    • Byggeår
      1978
    • Barneseng
      1
    • Højstol
      1
    • Husdyr tilladt
    • Husdyr antal, max
      2
    • Ikke ryger hus
    • Personantal
      5
    • Renoveret
      2024
    • Danske TV-kanaler (Betalingskanaler)
    • Tyske tv-programmer
    • Tørretumbler
    • Varme: Elvarme
    • Varme: Varmepumpe luft til luft
    • Vaskemaskine
    • Parabol (enkelte danske og tyske kanaler)
    • Gratis fiber Internet
    • Jubilæumsmønt er udleveret
  • Objektinfo - ude

    • Afstand hav
      3 km
    • Afstand indkøb
      4 km
    • Areal: Grund m²
      1080
    • Sandkasse
    • Grill
    • Havemøbler
    • Solvogne
    • Parkering: Carport
    • Terrasse: åben
    • Terrasse: Overdækket
    • Redskabsrum
    • Naturgrund
    • Affald hentes:
      Onsdag
    • Affald: Liter
      240
    • Ladestik til el-bil
  • Koncepter

    • Skiftedag: Fredag

Priser og kalender

Kalender

Ankomst
Forrige Næste
  • februar 2026
    mationtofr
    51
    62345678
    79101112131415
    816171819202122
    9232425262728
    10
  • marts 2026
    mationtofr
    91
    102345678
    119101112131415
    1216171819202122
    1323242526272829
    143031
   Se om emnet er ledigt på den valgte dato
Ledig
Optaget
   Ankomst mulig
Varighed

Pris

Periode
Ankomst
Afrejse
Varighed
1 uge
Personer
Op til 5 personer

Bemærk

Ankomst er ikke valgt.
Aftale- og lejebetingelser