Moderne sommerhus med wellness og store udearealer

Sommerhus - 12 personer - Fyrrekrogen - Houstrup - 6830 - Nr. Nebel

12 personer
Emne nr.: 328-388401
Moderne sommerhus i Houstrup med spa, sauna, stor terrasse og plads til hele familien inklusive hunden.
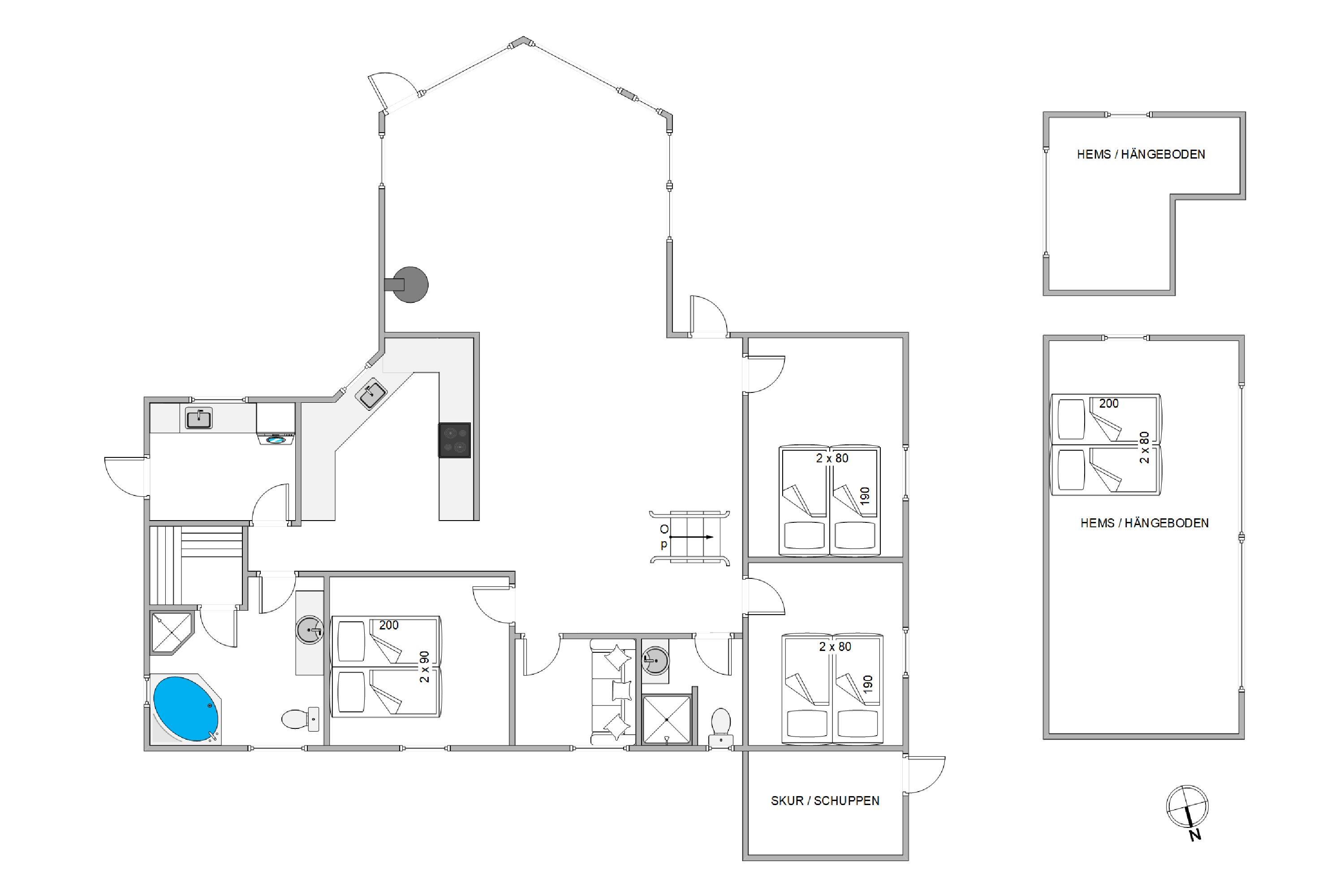
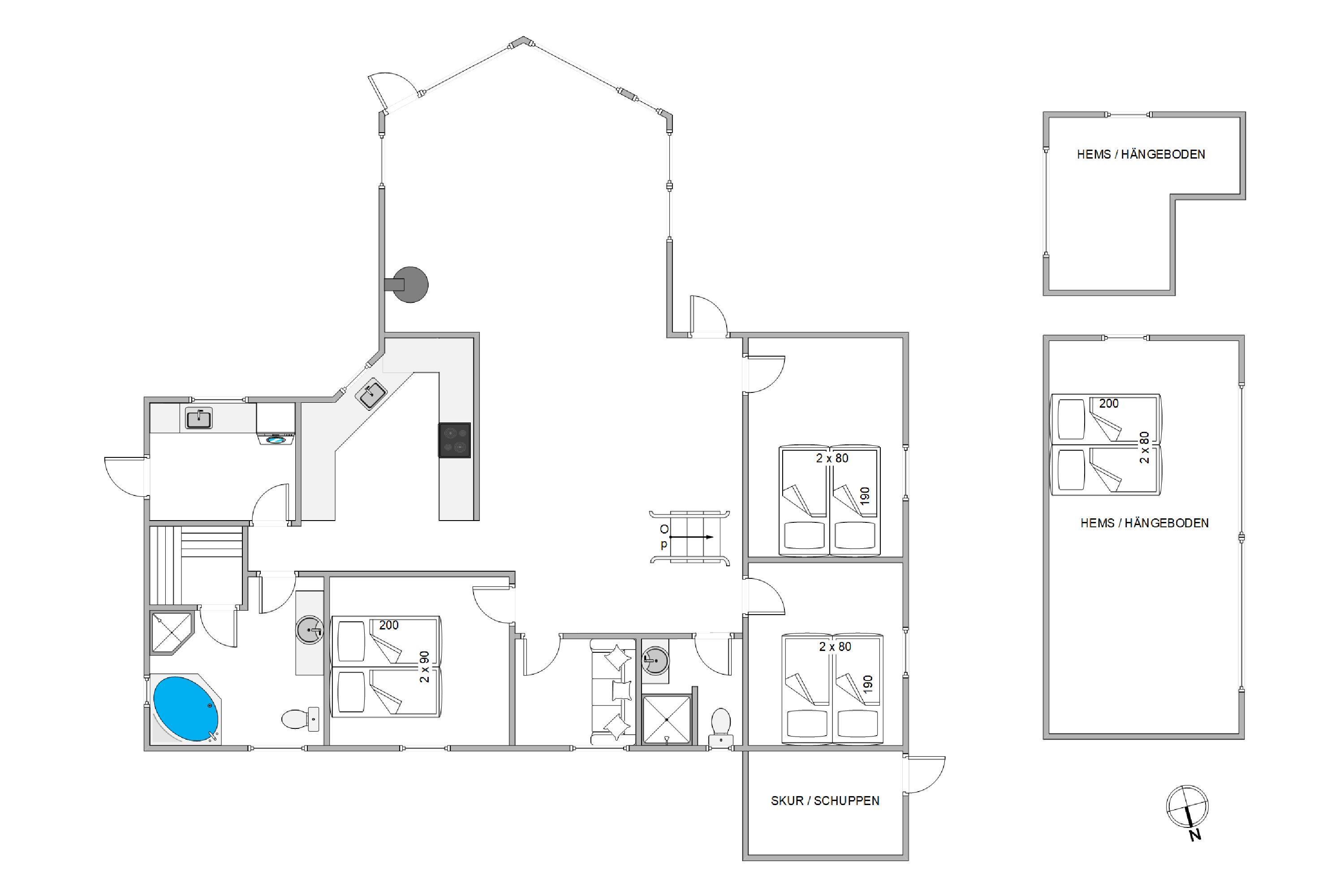
  • Soverum 4
  • Badeværelser 2
  • Boligareal 100 m²
  • Grundareal 1.717 m²
  • Husdyr 1
  • Tilbyder miniferie Nej
  • Afstand vand 3 km
  • Afstand indkøb 3.100 m
  • Spa Ja
  • Sauna Ja
  • Internet Ja
  • Brændeovn Ja
  • Vaskemaskine Ja
  • Tørretumbler Ja
  • Opvaskemaskine Ja
  • Ikkeryger Ja
  • Energivenligt Ja

Beskrivelse

I dette flotte og moderne ikke-ryger sommerhus i Houstrup er der lagt op til en hyggelige ferie med familien eller vennerne, og selvfølgelig hunden. Her er der både spa og sauna, en dejlig terrasse og gode muligheder for at komme ud og opleve noget og bare nyde ren afslapning.

Enkelt og moderne med wellness på Fyrrekrogen 30

Sommerhuset på Fyrrekrogen 30 har plads til op til 12 personer og er helt ideelt til en eller 2 familier eller en vennegruppe. Også det sidste familiemedlem, hunden, er rigtig velkommen. Indretningen er enkel og moderne, og alle rum er store og åbne.

Rent praktisk er der anlagt 2 badeværelser med brusebad, så I ikke behøver at stå i lang kø til toilettet om morgenen. På det største badeværelse finder I tilmed en sauna og et spabad, så I kan holde en rigtig wellness-aften efter en dag i den skønne natur.

Slap af, vær aktive eller tag på udflugt

Gennem den hyggelige stue kommer I ud på en dejlig terrasse med en stor græsplæne, til glæde for både børnene og hunden. Der er både havemøbler og grill, så I kan nyde det gode vejr dagen lang.

Gyngestativet og sandkassen vil falde i god jord hos børnene, og der er også sat mål op på græsplænen, så hele flokken kan tage et slag fodbold og finde feriens bedste hold. Her er der plads til alle, både de aktive, og de, der gerne vil slappe af.

Med ferieadresse i Houstrup har I masser af udflugtssteder i nærheden. Blåbjerg Plantage byder på smuk natur og måske et par rådyr, de skønne strande ligger ikke langt væk, ligesom de små hyggelige feriebyer såsom Henne Strand, Bork og Hvide Sande er inden for rækkevidde.

Lejes ikke ud til ungdomsgrupper.

 

 

Faciliteter

  • Opholdsrum

    • CD afspiller
    • DVD-afspiller
      1
    • Gulv: Tæppe
    • Gulvvarme
    • Radio
    • Brændeovn
    • Fladskærms-TV
      1
  • Soverum

    • Ekstra sovepl. Hems
      2
    • Gulv: Tæppe
    • Dobbeltsenge
      3
    • Sovepladser
      12
    • Soverum
      4
    • Antal personer (loft, anneks osv.)
      4
    • 1. soverum/sengestørrelser
      2x90x200
    • 2. soverum/sengestørrelser
      2x80x200
    • 3. soverum/sengestørrelser
      2x80x200
    • 4. soverum/sengestørrelser
      Sovesofa: 140x200
    • 5. soverum/sengestørrelser
      Hems: 2x90x200
    • 6. soverum/sengestørrelser
      Kantmål: 120x200
  • Køkken

    • Komfur: El m. ovn
    • Køleskab m. frostboks
    • Opvaskemaskine
    • Mikroovn
    • Separat fryser /L
      40
  • Baderum

    • Sauna
    • Gulvvarme bad
    • Antal badeværelser
      2
    • Tømmespa, antal pers.
      2
  • Objektinfo - Inde

    • Areal: Hus m²
      100
    • Byggeår
      2003
    • Barneseng
      1
    • Barnestol
      1
    • Husdyr tilladt
    • Husdyr antal, max
      1
    • Ikke ryger hus
    • Gratis Internet
    • Personantal
      12
    • Danske TV-kanaler (Betalingskanaler)
    • Tyske tv-programmer
    • Tørretumbler
    • Varme: Elvarme
    • Varme: Varmepumpe luft til luft
    • Vaskemaskine
    • Flere hunde ved forespørgsel
    • Jubilæumsmønt er udleveret
  • Objektinfo - ude

    • Afstand i meter: Hav
      3 km
    • Afstand i meter: Indkøb
      3,1 km
    • Grundens areal i m2
      1717
    • Gynge
    • Sandkasse
    • Grill
    • Havemøbler
    • Solvogne
    • Parasol
    • Terrasse: åben
    • Terrasse: Overdækket
    • Redskabsrum
    • Naturgrund
    • Affald hentes:
      Mandag
    • Skraldespand - Liter
      240
  • Koncepter

    • Varme: 24 timer f. ankomst
    • Skiftedag: Søndag
    • Vandaflæsning
    • Stort hus (10 pers. og mere)
  • Miniferie

    • Ja, tak - tillad miniferie

Priser og kalender

Kalender

Ankomst
Næste
  • februar 2026
    mationtofr
    51
    62345678
    79101112131415
    816171819202122
    9232425262728
    10
  • marts 2026
    mationtofr
    91
    102345678
    119101112131415
    1216171819202122
    1323242526272829
    143031
   Se om emnet er ledigt på den valgte dato
Ledig
Optaget
   Ankomst mulig
Varighed

Pris

Periode
Ankomst
Afrejse
Varighed
1 uge
Personer
Op til 12 personer

Bemærk

Ankomst er ikke valgt.
Aftale- og lejebetingelser