Charmerende sommerhus med sauna og stor terrasse

Sommerhus - 8 personer - Nørrevang - Houstrup - 6830 - Nr. Nebel

8 personer
Emne nr.: 320-368175
Charmerende sommerhus i Nørre Nebel med sauna, stor terrasse og plads til to familier.
  • Soverum 4
  • Boligareal 127 m²
  • Grundareal 1.280 m²
  • Husdyr 1
  • Tilbyder miniferie Ja
  • Afstand vand 5 km
  • Afstand indkøb 400 m
  • Sauna Ja
  • Internet Ja
  • Parabol/kabel TV Ja
  • Brændeovn Ja
  • Vaskemaskine Ja
  • Tørretumbler Ja
  • Opvaskemaskine Ja
  • Ikkeryger Ja
  • Energivenligt Ja

Beskrivelse

 

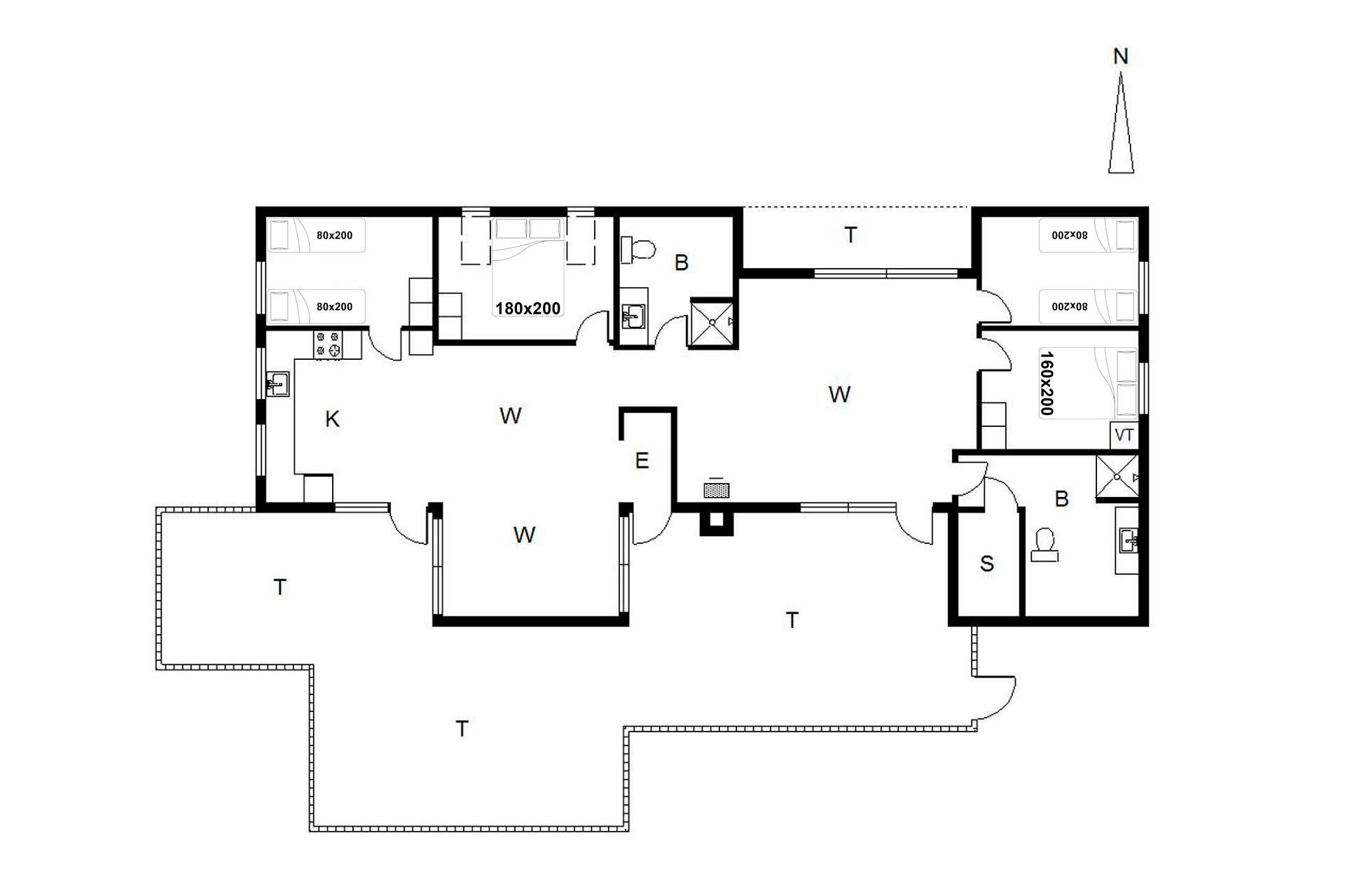
Ideelt til to familier – 4 soveværelser, 2 badeværelser og god plads

Dette charmerende og rummelige sommerhus på 127?m² ligger på en velplejet naturgrund for enden af en rolig vej – med udsigt til den omkringliggende Blåbjerg Plantage og et rigt dyreliv lige uden for døren. Huset egner sig også perfekt til to familier, der ønsker at holde ferie sammen.

Huset har fire komfortable soveværelser – to med dobbeltsenge (det ene med eget TV), samt to værelser med enkeltsenge. De to moderne badeværelser byder på god komfort; det ene har desuden direkte adgang til husets egen sauna – ideel til afslapning efter en lang dag på stranden.

Åbent køkken-alrum med brændeovn, TV og moderne faciliteter

Den hyggelige opholdsstue er udstyret med brændeovn, TV og en radio med Bluetooth-funktion – perfekt til hyggelige aftener. Det åbne køkken har bl.a. opvaskemaskine og et køleskab med separat fryseafsnit (50 liter). En energivenlig varmepumpe sikrer et behageligt indeklima og lavere elforbrug.

Omgivet af natur og stor, lukket terrasse – afslapning året rundt

Den store, lukkede og møblerede terrasse giver altid mulighed for at nyde udelivet i læ og ro – uanset om solen skinner eller vinden blæser. Huset er et ikke-ryger-hus og én hund er tilladt, så også familiens firbenede ven kan komme med på ferie.

Sengestørrelse: 1 dobbeltseng 180 x 200 cm + 1 dobbeltseng 160 x 200 cm + 4 enkeltsenge 80 x 200 cm.

Faciliteter

  • Opholdsrum

    • TV
      2
    • Linoleum-/laminatgulv
  • Soverum

    • Linoleum-/laminatgulv
    • Sovepladser
      8
    • Soverum
      4
    • Dobbeltseng
      2
    • Enkeltsenge
      4
  • Køkken

    • Linoleum-/laminatgulv
    • Kogeplader: El keramisk
    • Indbygningsovn
    • Mikroovn
    • Emhætte
    • Køleskab med sep. fryseboks
    • Separat fryser
      50
    • Opvaskemaskine
  • Baderum

    • Gulvvarme
    • Toilet
    • Bruseniche
    • Ekstra: Toilet
      1
    • Ekstra: Bruseniche
      1
    • Sauna
  • Objektinfo

    • TV-programmer: Danske
    • TV-programmer: Tyske
    • Internetadgang: WiFi
    • Internetadgang
    • Husareal
      127
    • Byggeår
      1993
    • Renoveret: Total
      2020
    • Højstol
      1
    • Barneseng
      1
    • Varme: Brændeovn
    • Varme: Varmepumpe
      1
    • Vaskemaskine
    • Tørretumbler
    • Værdiboks / Safe
    • Ikke ryger hus
    • Husdyr
      1
  • Objektinfo - ude

    • Afstand hav
      5 km
    • Afstand indkøb
      400 m
    • Grundareal
      1280
    • Gynge
    • Sandkasse
    • Havemøbler
    • Liggestole
    • Lukket terrasse
  • Faciliteter

    • Børnevenlig

Miniferie

Der tilbydes i øjeblikket ikke miniferie. Typisk skyldes dette at miniferie ikke er muligt i højsæsonen.

Priser og kalender

Kalender

Ankomst
Forrige Næste
  • april 2026
    mationtofr
    1412345
    156789101112
    1613141516171819
    1720212223242526
    1827282930
    19
  • maj 2026
    mationtofr
    18123
    1945678910
    2011121314151617
    2118192021222324
    2225262728293031
    23
   Se om emnet er ledigt på den valgte dato
Ledig
Optaget
   Ankomst mulig
Varighed

Pris

Periode
Ankomst
Afrejse
Varighed
1 uge
Personer
Op til 8 personer

Bemærk

Ankomst er ikke valgt.
Aftale- og lejebetingelser