Hyggeligt sommerhus med sauna og stor terrasse

Sommerhus - 6 personer - Hedevang - Houstrup - 6830 - Nr. Nebel

6 personer
Emne nr.: 320-178938
Hyggeligt sommerhus i Houstrup med sauna, brændeovn og stor terrasse på naturskøn grund.
  • Soverum 4
  • Boligareal 99 m²
  • Grundareal 2.100 m²
  • Husdyr 1
  • Tilbyder miniferie Ja
  • Afstand vand 4 km
  • Afstand indkøb 650 m
  • Sauna Ja
  • Internet Ja
  • Parabol/kabel TV Ja
  • Brændeovn Ja
  • Vaskemaskine Ja
  • Tørretumbler Ja
  • Opvaskemaskine Ja
  • Ikkeryger Ja
  • Energivenligt Ja

Beskrivelse

Lyse rum, praktisk indretning og familievenligt miljø

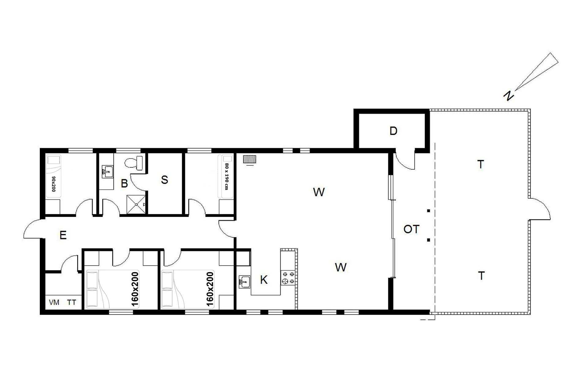
Dette hyggelige sommerhus ligger fredeligt på en dejligt naturgrund med græsplæne – oplagt til familier med børn. Huset byder på en god planløsning med fire soveværelser: to med dobbeltseng, ét med enkeltseng og ét med køjeseng. Alle rum fremstår lyse, venlige og funktionelle.

Hyggeligt opholdsstue, brændeovn og varmepumpe

Opholdsstuen rummer sofaområde, spiseplads og tv – med brændeovn som hyggelig varmekilde. Desuden bidrager en luft-til-luft varmepumpe til at holde strømomkostninger ned. Køkkenet er åbent og veludstyret med bl.a. opvaskemaskine, mikroovn og fryser. Store vinduespartier giver masser af dagslys og en afslappet stemning. Badeværelset er funktionelt og har bruseniche samt adgang til husets sauna.

Hyggelig terrasse og naturskøn grund med god plads

Fra stuen er der udgang til en stor træterrasse med delvis overdækning, liggestole og havemøbler – perfekt til udeliv hele dagen. Grunden er ideel til leg og afslapning i trygge omgivelser. Området omkring Houstrup byder på gode gåture og masser af natur lige uden for døren - og Henne Strand ligger kun 15 minutters kørsel derfra.

Sengestørrelse: 2 dobbeltsenge 160 x 200 cm  + 1 enkeltseng 90 x 200 cm + 1 køjeseng 80 x 190 cm

Vores gæsteanmeldelser Eksterne anmeldelser

3,0
Baseret på 1 vurdering
Vurderet d. 01-08-2021
5
(0)
4
(0)
3
(1)
2
(0)
1
(0)
Kommentarer
Ingen vurderinger har kommentarer.

Faciliteter

  • Opholdsrum

    • TV
      1
    • DVD-afspiller
      1
    • CD afspiller
      1
    • Gulvtæppe
  • Soverum

    • Gulvtæppe
    • Sovepladser
      7
    • Soverum
      4
    • Dobbeltseng
      2
    • Enkeltsenge
      1
    • Køjeseng
      2
  • Køkken

    • Klinkegulv
    • Komfur: El Keramisk m. ovn
    • Mikroovn
    • Emhætte
    • Køleskab
    • Separat fryser
      30
    • Opvaskemaskine
  • Baderum

    • Gulvvarme
    • Toilet
    • Bruseniche
    • Sauna
    • Babybadekar
  • Objektinfo

    • TV-programmer: Danske
    • TV-programmer: Tyske
    • Internetadgang: WiFi
    • Internetadgang
    • Husareal
      99
    • Byggeår
      1985
    • Højstol
      1
    • Barneseng
      1
    • Varme: Brændeovn
    • Varme: Varmepumpe
      1
    • Renoveret: Løbende moderniseret
    • Vaskemaskine
    • Tørretumbler
    • Ikke ryger hus
    • Husdyr
      1
    • Gratis Hallenbad
  • Objektinfo - ude

    • Afstand hav
      4 km
    • Afstand indkøb
      650 m
    • Grundareal
      2100
    • Gynge
    • Sandkasse
    • Havemøbler
    • Liggestole
    • Overdækket terrasse
  • Faciliteter

    • Børnevenlig

Miniferie

Der er begrænset mulighed for miniferie de næste 4 uger.

Priser og kalender

Kalender

Ankomst
Næste
  • februar 2026
    mationtofr
    51
    62345678
    79101112131415
    816171819202122
    9232425262728
    10
  • marts 2026
    mationtofr
    91
    102345678
    119101112131415
    1216171819202122
    1323242526272829
    143031
   Se om emnet er ledigt på den valgte dato
Ledig
Optaget
   Ankomst mulig
Varighed

Pris

Periode
Ankomst
Afrejse
Varighed
1 uge
Personer
Op til 6 personer

Bemærk

Ankomst er ikke valgt.
Aftale- og lejebetingelser