Hyggeligt sommerhus med stor naturgrund i Ho

Sommerhus - 6 personer - Vestervænget - Ho - 6857 - Blåvand

6 personer
Emne nr.: 328-593066
Hyggeligt sommerhus i Ho med stor naturgrund og kort afstand til stranden for afslapning hele familien.
  • Soverum 3
  • Badeværelser 1
  • Boligareal 86 m²
  • Grundareal 2.300 m²
  • Husdyr Ikke tilladt
  • Tilbyder miniferie Nej
  • Afstand vand 3.700 m
  • Afstand indkøb 6 km
  • Internet Ja
  • Brændeovn Ja
  • Vaskemaskine Ja
  • Opvaskemaskine Ja
  • Ikkeryger Ja
  • Energivenligt Ja

Beskrivelse

Trænger du til afslapning og hygge i et skønt naturområde? Så er sommerhuset på Vestervænget 1 i Ho et godt valg til ferien. 

Her kan du gå dejlige ture på stranden kun knap 4 km væk eller bare nyde roen på den store 2300 m2 naturgrund. 

Hygge for hele familien på Vestervænget 1

Det rustikke sommerhus i Ho har plads til op til 6 personer og er dermed egnet til familier eller mindre vennegrupper. Huset har 3 soveværelser - det ene med en enkeltseng, de 2 øvrige med dobbeltsenge, og som en ekstra fordel kan enkeltsengen trækkes ud til en dobbeltseng, så I får lidt mere soveplads.

I vintersæsonen kan du gøre dig det behageligt foran brændeovnen og nyde stemningen, mens varmepumpen sørger for indeklima og energieffektivitet. Gulvvarmen i badeværelset giver dig en god start på dagen.

Go' mad på nemmeste vis

Det lille køkken er udstyret med en opvaskemaskine, som tager opvasken for dig, og en 70-liters fryser står også til rådighed for dig, hvis du gerne vil fryse en større mængde mad.

Efter et godt måltid mad kan du lade aftenen klinge ud på terrassen, som til dels er overdækket. Grillen i haven indbyder til hyggelige grillaftener, mens havemøblerne giver dig mulighed for at nyde maden i det fri.

Aktiviteter for store og små

På den store grund kan I hygge jer med aktiviteter for alle aldersgrupper. Børnene kan have det sjovt på gyngen og i sandkassen, mens de voksne bruger det gratis internet for at holde kontakten med omverdenen og finde information om de næste udflugtsmål. 

Det lille feriehus i Ho indbyder dig og dine til at gå på opdagelse i omgivelserne eller ganske enkelt slappe af på terrassen. Skulle du have lyst til lidt shopping, er der indkøbsmuligheder ca. 6 km fra huset. 

Hold dine feriedage i dette sommerhus i Ho og oplev en god blanding af afslapning og natur. Uanset om du har brug for oplevelser eller ro, så er huset her et godt udgangspunkt for en fin ferie.

Faciliteter

  • Opholdsrum

    • Gulv: Klinker
    • Gulvvarme
    • Brændeovn
    • Fladskærms-TV
      1
  • Soverum

    • Gulv: Tæppe
    • Dobbeltsenge
      2
    • Køjesenge
      1
    • Sovepladser
      6
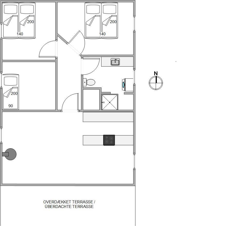
    • Soverum
      3
    • 1. soverum/sengestørrelser
      2x80x200
    • 2. soverum/sengestørrelser
      140x200
    • 3. soverum/sengestørrelser
      2x90x200
  • Køkken

    • Komfur: El m. ovn
    • Køleskab
    • Opvaskemaskine
    • Mikroovn
    • Separat fryser /L
      70
  • Baderum

    • Gulvvarme bad
    • Antal badeværelser
      1
  • Objektinfo - Inde

    • Areal: Hus m²
      86
    • Byggeår
      1988
    • Barnestol
      1
    • Ikke ryger hus
    • Gratis Internet
    • Personantal
      6
    • Renoveret
      2017
    • Danske TV-kanaler (Betalingskanaler)
    • Tyske tv-programmer
    • Varme: Elvarme
    • Varme: Varmepumpe luft til luft
    • Vaskemaskine
    • Jubilæumsmønt er udleveret
  • Objektinfo - ude

    • Afstand i meter: Hav
      3,7 km
    • Afstand i meter: Indkøb
      6 km
    • Grundens areal i m2
      2300
    • Gynge
    • Sandkasse
    • Grill
    • Havemøbler
    • Parasol
    • Terrasse: åben
    • Terrasse: Lukket
    • Terrasse: Overdækket
    • Naturgrund
    • Affald hentes:
      Tirsdag
    • Affald: Helårstømning
    • Skraldespand - Liter
      240
    • Legehus
  • Koncepter

    • Skiftedag: Lørdag
    • Varme: 24 timer f. ankomst

Priser og kalender

Kalender

Ankomst
Forrige Næste
  • juni 2026
    mationtofr
    231234567
    24891011121314
    2515161718192021
    2622232425262728
    272930
    28
  • juli 2026
    mationtofr
    2712345
    286789101112
    2913141516171819
    3020212223242526
    312728293031
    32
   Se om emnet er ledigt på den valgte dato
Ledig
Optaget
   Ankomst mulig
Varighed

Pris

Periode
Ankomst
Afrejse
Varighed
1 uge
Personer
Op til 6 personer

Bemærk

Ankomst er ikke valgt.
Aftale- og lejebetingelser