Hyggeligt sommerhus med sauna og vildmarksbad

Sommerhus - 6 personer - Tværvænget - Ho - 6857 - Blåvand

6 personer
Emne nr.: 328-282035
Hyggeligt sommerhus ved Ho med sauna, vildmarksbad og store terrasser til afslapning i naturen.
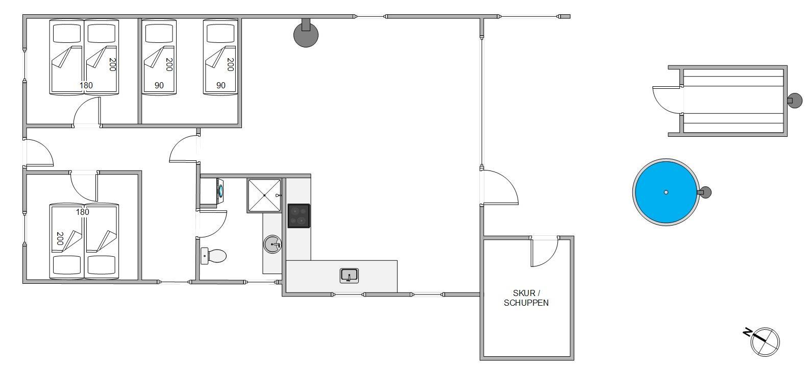
  • Soverum 3
  • Badeværelser 1
  • Boligareal 88 m²
  • Grundareal 2.577 m²
  • Husdyr 1
  • Tilbyder miniferie Nej
  • Afstand vand 5 km
  • Afstand indkøb 6 km
  • Sauna Ja
  • Highspeed internet Ja
  • Brændeovn Ja
  • Vaskemaskine Ja
  • Opvaskemaskine Ja
  • Ikkeryger Ja
  • Ladestander til elbil Ja
  • Energivenligt Ja

Beskrivelse

Er I på udkig efter et sommerhus til en afslappende familieferie i den Vestjyske natur? Så er dette sommerhus, med det skønne udeareal, måske noget for jer!

Sommerhuset, er blevet renoveret primo 2025, er beliggende i Ho nær Blåvand, og det har plads til 6 personer. Her får I en virkelig hyggelig indretning med blandt andet brændeovn og et stort udeareal med flere terrasser - og her midt mellem lyng og fyrretræer har I jeres egen udendørsafdeling med både udendørs sauna og vildmarksbad. 

Klassisk sommerhusferie med brændeovn og opvaskemaskine

Det hyggelige træhus på Tværvænget 10 sætter rammerne for en skøn sommerhusferie, midt i den grønne natur. Her kan I få et velfortjent pusterum med jeres nærmeste – langt væk fra den travle hverdag.

Sommerhusets hjerte er det kombinerede stue- og køkkenalrum. Her kan hele familien samles, til lækre feriemiddage rundt om spisebordet og hyggelige feriestunder foran brændeovnen. Køkkenet er udstyret med en opvaskemaskine, som tager sig af den værste oprydning for jer.

Stor naturgrund, flere terrasser, vildmarksbad og udesauna

Sommerhuset ligger på en mere end 2.500 kvadratmeter stor naturgrund, omgivet af høje træer, der skærmer grunden og sørger for læ og privatliv. Her midt i den Vestjyske natur kan I forkæle jer selv med en tur i saunaen eller i vildmarksbadet, der begge opvarmes med brænde. Hvem kunne ikke tænke sig at tilbringe en aften med wellness under stjernehimlen. Rundt om sommerhuset er der flere terrasser og hyggelige siddekroge – blandt andet en overdækket del. 

På de lune sommeraftener er det oplagt at flytte madlavningen udenfor og nyde en god middag fra grillen under åben himmel.

Fred, ro, natur og aktivitetsmuligheder i Ho

Ho er et roligt ferieområde, helt ideelt til børnefamilier – eller bare til jer, der gerne vil nyde ferien i fredfyldte omgivelser. Der er masser af flot natur i nærheden, som kan udforskes, og området byder også på flere aktivitetsmuligheder i form af golf, minigolf, en fiskesø og et badeland.

Fra Ho er der ikke mere end et par minutters kørsel til feriebyen Blåvand. Her finder I alt fra indkøbsmuligheder og spisesteder til caféer og souvenirbutikker. Fra centrum er der heller ikke langt til den flotte badestrand og Blåvandshuk Fyr.

I kan også tage børnene med en tur i Blåvand Zoo eller tage på et historisk besøg til det nærliggende bunkermuseum Tirpitz.

Faciliteter

  • Opholdsrum

    • Gulv: Træ
    • Brændeovn
    • Fladskærms-TV
      1
  • Soverum

    • Gulv: Træ
    • Dobbeltsenge
      2
    • Enkeltsenge
      2
    • Sovepladser
      6
    • Soverum
      3
    • 1. soverum/sengestørrelser
      180X200
    • 2. soverum/sengestørrelser
      180X200
    • 3. soverum/sengestørrelser
      2x90x200
  • Køkken

    • Komfur: El m. ovn
    • Køleskab
    • Opvaskemaskine
    • Mikroovn
  • Baderum

    • Gulvvarme bad
    • Antal badeværelser
      1
  • Objektinfo - Inde

    • Areal: Hus m²
      88
    • Byggeår
      1973
    • Husdyr tilladt
    • Husdyr antal, max
      1
    • Ikke ryger hus
    • Personantal
      6
    • Renoveret
      2025
    • Danske TV-kanaler (Betalingskanaler)
    • Tyske tv-programmer
    • Varme: Elvarme
    • Varme: Varmepumpe luft til luft
    • Vaskemaskine
    • Gratis fiber Internet
    • Chromecast
    • Jubilæumsmønt er udleveret
  • Objektinfo - ude

    • Afstand i meter: Hav
      5 km
    • Afstand i meter: Indkøb
      6 km
    • Grundens areal i m2
      2577
    • Havemøbler
    • Solvogne
    • Parasol
    • Terrasse: åben
    • Terrasse: Overdækket
    • Naturgrund
    • Affald hentes:
      Tirsdag
    • Affald: Helårstømning
    • Skraldespand - Liter
      140
    • Vildmarksbad: Antal pers
      4
    • Gasgrill
    • Ladestik til el-bil
    • Udesauna
  • Koncepter

    • Skiftedag: Fredag
    • Varme: 24 timer f. ankomst
  • Miniferie

    • Ja, tak - tillad miniferie

Priser og kalender

Kalender

Ankomst
Forrige Næste
  • maj 2026
    mationtofr
    18123
    1945678910
    2011121314151617
    2118192021222324
    2225262728293031
    23
  • juni 2026
    mationtofr
    231234567
    24891011121314
    2515161718192021
    2622232425262728
    272930
    28
   Se om emnet er ledigt på den valgte dato
Ledig
Optaget
   Ankomst mulig
Varighed

Pris

Periode
Ankomst
Afrejse
Varighed
1 uge
Personer
Op til 6 personer

Bemærk

Ankomst er ikke valgt.
Aftale- og lejebetingelser