Luksussommerhus nær Henne Strand og Vesterhavet

Sommerhus - 10 personer - Strandgodsvej - Henneby - 6854 - Henne Strand

10 personer
Emne nr.: 328-566692
Nyd luksus og aktiviteter i dette moderne sommerhus nær Henne Strand og Vesterhavet.
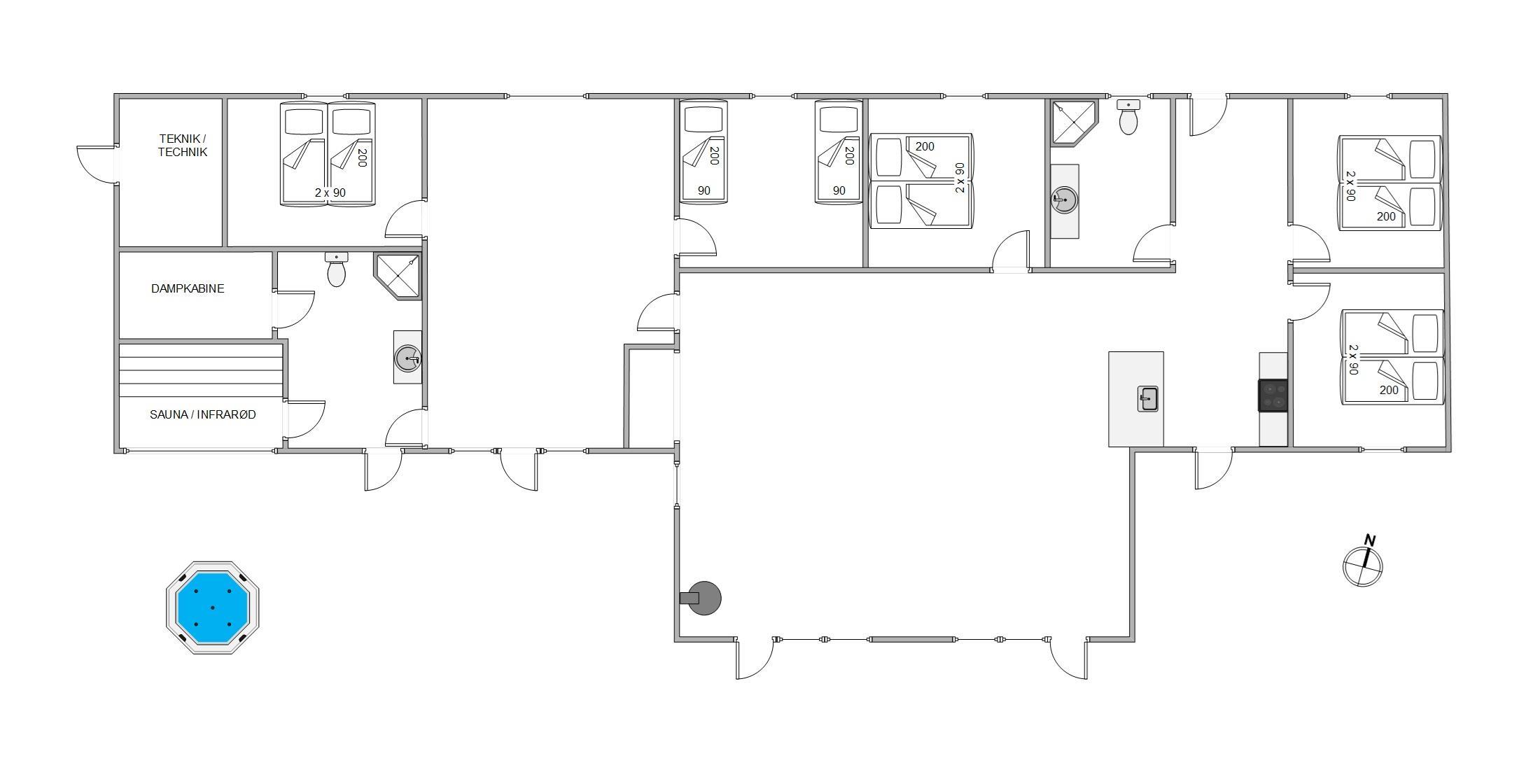
  • Soverum 5
  • Badeværelser 2
  • Boligareal 176 m²
  • Grundareal 1.772 m²
  • Husdyr Ikke tilladt
  • Tilbyder miniferie Nej
  • Afstand vand 3.500 m
  • Afstand indkøb 3 km
  • Spa Ja
  • Sauna Ja
  • Highspeed internet Ja
  • Brændeovn Ja
  • Aktivitetsrum Ja
  • Vaskemaskine Ja
  • Tørretumbler Ja
  • Opvaskemaskine Ja
  • Ikkeryger Ja
  • Ladestander til elbil Ja
  • Energivenligt Ja

Beskrivelse

Inviter familien eller vennerne med til en uforglemmelig ferie i dette fantastiske sommerhus på Strandgodsvej 18 i Henneby. Dette skønne sommerhus tilbyder alt, hvad hjertet kan begære for en afslappende og underholdende ferie. Her kan der bl.a. spilles bordtennis, børnene kan hoppe på trampolinen og udespaen kan nydes dagen lang. Slutrengøringen er obligatorisk, så I kan forlade sommerhuset uden bekymringer og med udelukkende gode minder i bagagen.

Luksus og samvær på Strandgodsvej 18

Sommerhuset, som er bygget i 2026, byder plads til på til 10 personer, og er dermed et ideelt 5+-stjernet ferieparadis til familieferier eller en udflugt med vennerne. Sommerhusets 2 badeværelser og 5 soveværelser er alle indrettet med gæsternes komfort i tankerne. Dette sommerhus er desuden allergivenligt, hvilket gør det til et godt valg for alle, som ønsker en bekymringsfri ferie.

Det flotte køkken indeholder alt, hvad I behøver for at forkæle hinanden med lækre måltider, herunder induktionskomfur, opvaskemaskine og en fryser på 180 liter, som gør det muligt at købe stort ind og opbevare lokale specialiteter, som I måtte ønske at bringe med hjem.

Stuen bliver det naturlige samlingssted, hvor I kan samles og nyde tiden sammen foran ilden i brændeovnen - mens I læner jer tilbage i sofaen og streamer jeres yndlingsserier via Chromecast. 

Med en energibesparende luft-til-vand varmepumpe er der gulvvarme i hele sommerhuset, som sikrer en behagelig temperatur året rundt. Har I elbil, kan I benytte ladestikket ved sommerhuset.

Aktiv underholdning - Wellnesstid med sauna

Dette moderne aktivitetshus har mange tilbud til aktive sjæle, for eksempel poolbillard og bordtennis, hvilket betyder at der altid er sjov og konkurrence i luften. Når I ønsker en afslappende stund med ren wellness, kan I lade jer forkæle i den luksuriøse sauna, den infrarøde sauna eller i den skønne dampkabine. 

Også udelivet kan nydes fuldt ud. Børnene vil elske at hoppe på trampolinen, mens de voksne kan nyde en kop kaffe på den overdækkede og afskærmede terrasse, som giver mulighed for at være udendørs uanset vejret.

Ferie i Henneby

Med kun 3,5 km til Vesterhavet og 3 km til den livlige butiksgade i Henne Strand er beliggenheden perfekt for dem, der ønsker nærhed til både strand og shopping. Her vil I være tæt på naturen, og er der ikke langt til Blåbjerg klitplantage, Filsø og naturligvis langs den smukke sandstrand langs Vesterhavet, hvor I kan tage på vandreture og opleve et rigt dyreliv og unikke landskaber. Henne Strand-området er også kendt for sine spektakulære solnedgange, der betager både lokale og besøgende hver aften.

Den charmerende bymidte i Henne Strand byder på et væld af butikker og caféer. Her kan I nyde en kop kaffe eller en is og gå på opdagelse i de små specialbutikker, der tilbyder alt fra lokalt kunsthåndværk til mode og souvenirs. Byens atmosfære er præget af afslappet kyststemning, og kan I koble helt af fra hverdagens stress.

Ingen ungdomsgrupper 

Faciliteter

  • Opholdsrum

    • Gulvvarme
    • Brændeovn
    • Fladskærms-TV
      2
    • Dock/Bluetooth enhed
    • Kork/Vinyl gulv
  • Soverum

    • Ekstra sovepl. alkove
      1
    • Gulvvarme
    • Dobbeltsenge
      5
    • Sovepladser
      10
    • Soverum
      5
    • Kork/Vinyl gulv
    • 1. soverum/sengestørrelser
      180X200
    • 2. soverum/sengestørrelser
      180X200
    • 3. soverum/sengestørrelser
      180X200
    • 4. soverum/sengestørrelser
      180X200
    • 5. soverum/sengestørrelser
      2x90x200
  • Køkken

    • Komfur: Induktion m. ovn
    • Køleskab
    • Opvaskemaskine
    • Mikroovn
    • Separat fryser /L
      180
  • Baderum

    • Sauna
    • Gulvvarme bad
    • Sauna, infrarød
    • Antal badeværelser
      2
  • Objektinfo - Inde

    • Allergivenligt hus
    • Areal: Hus m²
      176
    • Poolbillard
    • Bordtennis
    • Byggeår
      2026
    • Ikke ryger hus
    • Personantal
      10
    • Danske TV-kanaler (Betalingskanaler)
    • Tyske tv-programmer
    • Tørretumbler
    • Varme: Elvarme
    • Vaskemaskine
    • Gratis fiber Internet
    • Aktivitetshus
    • Varmepumpe luft til vand
    • Chromecast
    • Jubilæumsmønt er udleveret
  • Objektinfo - ude

    • Afstand i meter: Hav
      3,5 km
    • Afstand i meter: Indkøb
      3 km
    • Grundens areal i m2
      1772
    • Havemøbler
    • Solvogne
    • Parasol
    • Terrasse: åben
    • Terrasse: Afskærmet
    • Terrasse: Lukket
    • Terrasse: Overdækket
    • Redskabsrum
    • Naturgrund
    • Plænegrund
    • Affald hentes:
      Torsdag
    • Affald: Helårstømning
    • Skraldespand - Liter
      240
    • Trampolin
    • Udespa: antal pers.
      7
    • Gasgrill
    • Ladestik til el-bil
    • Udebruser (April - 1. november)
  • Koncepter

    • Skiftedag: Fredag
    • Varme: 24 timer f. ankomst
    • Vandaflæsning
  • Miniferie

    • Ja, tak - tillad miniferie

Priser og kalender

Kalender

Ankomst
Forrige Næste
  • juni 2026
    mationtofr
    231234567
    24891011121314
    2515161718192021
    2622232425262728
    272930
    28
  • juli 2026
    mationtofr
    2712345
    286789101112
    2913141516171819
    3020212223242526
    312728293031
    32
   Se om emnet er ledigt på den valgte dato
Ledig
Optaget
   Ankomst mulig
Varighed

Pris

Periode
Ankomst
Afrejse
Varighed
1 uge
Personer
Op til 10 personer

Bemærk

Ankomst er ikke valgt.
Aftale- og lejebetingelser