Luksussommerhus med sauna og havudsigt i Henne Strand

Sommerhus - 6 personer - Fasanvej - 6854 - Henne Strand

6 personer
Emne nr.: 328-294595
Luksussommerhus med sauna, spabad og havudsigt kun 250 m fra stranden i Henne Strand.
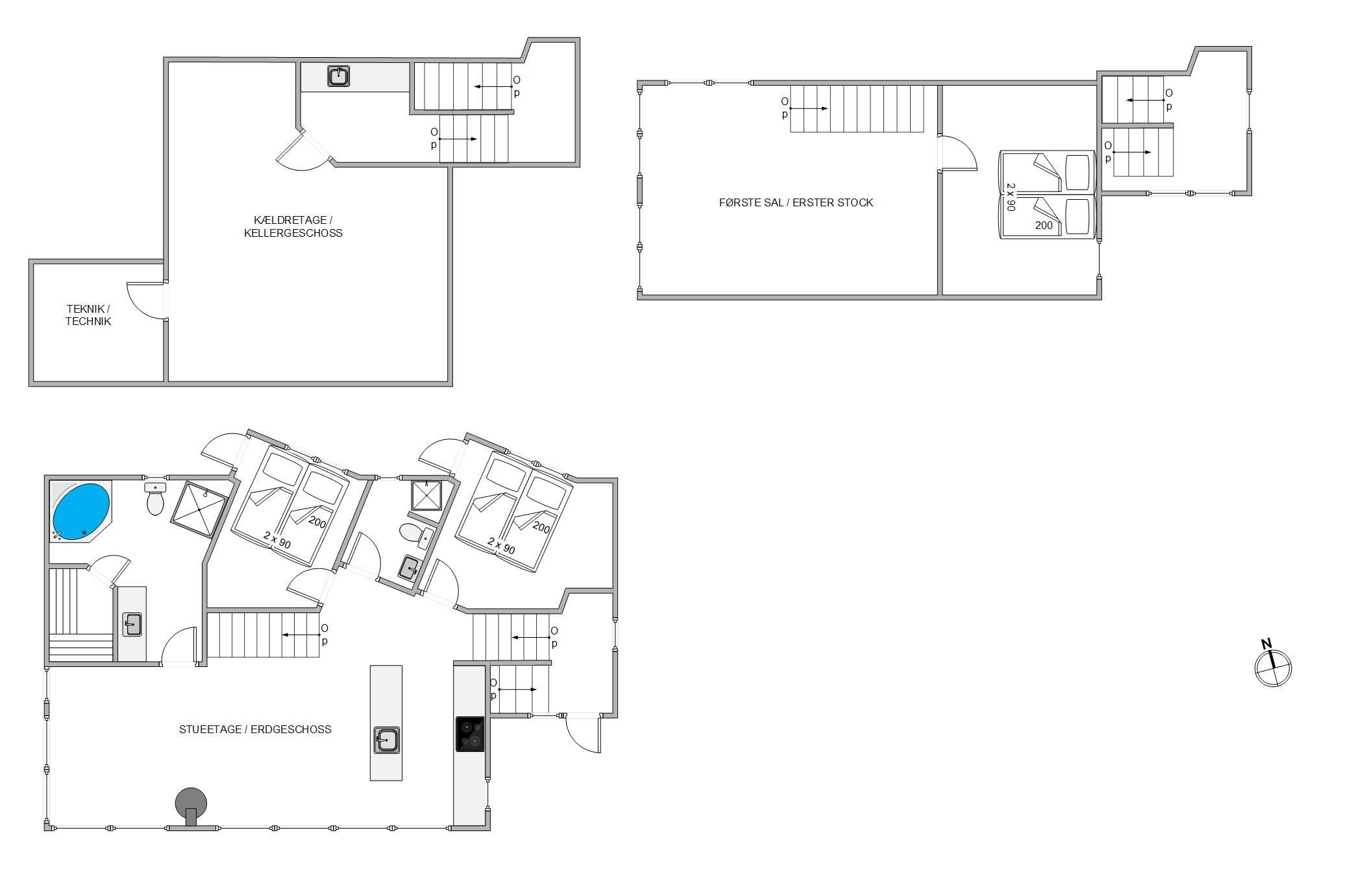
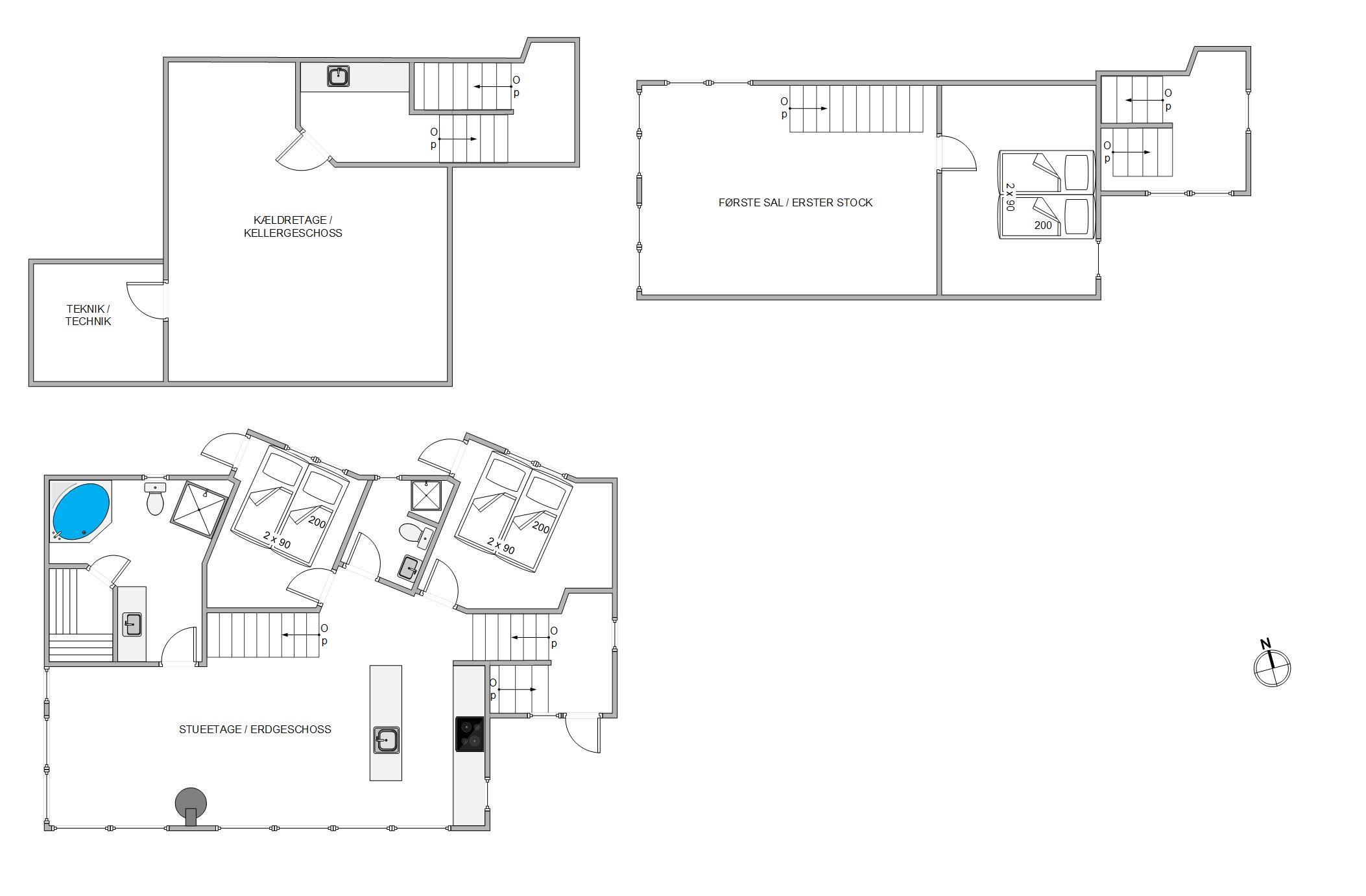
  • Soverum 3
  • Badeværelser 2
  • Boligareal 160 m²
  • Grundareal 1.093 m²
  • Husdyr 1
  • Tilbyder miniferie Nej
  • Afstand vand 250 m
  • Afstand indkøb 300 m
  • Spa Ja
  • Sauna Ja
  • Internet Ja
  • Brændeovn Ja
  • Vaskemaskine Ja
  • Tørretumbler Ja
  • Opvaskemaskine Ja
  • Ikkeryger Ja
  • Energivenligt Ja

Beskrivelse

På Fasanvej 10 i Henne Strand står dette fantastiske to-etagers luksussommerhus og venter på jer. Her får I hele den luksuriøse feriepakke: Lækker og moderne indretning, sauna og spabad, 250 meter til stranden og havudsigt fra terrassen. Bedre bliver det ikke!

Luksussommerhus med egen wellnessoase - sauna og spa

To etager og 160 m² ægte luksus, det er hvad, der venter jer her. Det moderne feriehus er spækket med lækre highlights, og den stilfulde og gennemførte indretning karakteriserer huset fra ende til anden. Her er kvalitet og stil absolutte nøgleord.

De lyse vægge, gulve og lofter og store vinduespartier sørger for en god og afslappende ferieatmosfære, og gaspejsen i den store spisestue spreder masser af hyggelig stemning på de kolde feriedage.

På første sal finder I en hyggelig stue med biopejs, og på den store sofa er der plads til alle - og gennem vinduesfronterne kan I se helt til havet. På det ene af to badeværelser har I også jeres helt egen wellnessoase med sauna og spabad. Hvad mere har man brug for?

Havudsigt, lækker terrasse og fantastisk beliggenhed

Fra første sal har I udgang til en hyggelig møbleret balkon, hvorfra I kan nyde havudsigten sammen med en friskbrygget kop kaffe eller en kold drink på en varm sommerdag. Fra nederste etage kommer I ud på den store terrasse, der næsten omgiver huset. Her er der lagt op til masser af hyggelige grillaftener og afslappende dage i liggestolene.

Beliggenheden er i særklasse, og ligesom I kan se havet fra huset, kan I høre de brusende bølger kalde fra terrassen. Med kun 250 meter til stranden bliver der helt sikkert tid til en strandudflugt eller to i løbet af ferien.

Henne Strand er kendetegnet ved sin summende ferieatmosfære og sine hyggelige forretninger og caféer, og fra feriehjemmet til byen er der kun små 300 meter, en lille sti fører over husets grund over til Musvågevej. Her kan der shoppes, spises lækker frokost og købes massevis af softice.

Vores gæsteanmeldelser Eksterne anmeldelser

3,5
Baseret på 2 vurderinger
Sidste vurdering fra d. 18-07-2021
5
(0)
4
(1)
3
(1)
2
(0)
1
(0)
Kommentarer
1 vurdering har kommentar på dansk.
2 voksne 0 børn 0 husdyr 7 overnatninger 2021 juli
Great location and well kept house

Faciliteter

  • Opholdsrum

    • CD afspiller
    • DVD-afspiller
      1
    • Gulv: Klinker
    • Gulvvarme
    • Radio
    • Åben pejs
    • Fladskærms-TV
      2
    • Gas Pejs
  • Soverum

    • Gulv: Klinker
    • Gulvvarme
    • Dobbeltsenge
      3
    • Sovepladser
      6
    • Soverum
      3
    • 1. soverum/sengestørrelser
      2x90x200
    • 2. soverum/sengestørrelser
      2x90x200
    • 3. soverum/sengestørrelser
      2x90x200
  • Køkken

    • Komfur: El m. ovn
    • Komfur: Induktion m. ovn
    • Køleskab m. frostboks
    • Opvaskemaskine
    • Mikroovn
  • Baderum

    • Sauna
    • Gulvvarme bad
    • Antal badeværelser
      2
    • Tømmespa, antal pers.
      2
  • Objektinfo - Inde

    • Areal: Hus m²
      160
    • Byggeår
      2012
    • Barneseng
      1
    • Barnestol
      1
    • Husdyr tilladt
    • Husdyr antal, max
      1
    • Ikke ryger hus
    • Gratis Internet
    • Personantal
      6
    • Danske TV-kanaler (Betalingskanaler)
    • Tyske tv-programmer
    • Tørretumbler
    • Varme: Elvarme
    • Varme: Jordvarme
    • Varme: Solvarme anlæg
    • Vaskemaskine
  • Objektinfo - ude

    • Afstand i meter: Hav
      250 m
    • Afstand i meter: Indkøb
      300 m
    • Grundens areal i m2
      1093
    • Grill
    • Havemøbler
    • Solvogne
    • Parkering: Carport
    • Terrasse: åben
    • Naturgrund
    • Panoramaudsigt
    • Affald hentes:
      Fredag
    • Affald: Helårstømning
    • Skraldespand - Liter
      240
  • Koncepter

    • Skiftedag: Lørdag
    • Varme: 24 timer f. ankomst
  • Miniferie

    • Ja, tak - tillad miniferie

Priser og kalender

Kalender

Ankomst
Næste
  • april 2026
    mationtofr
    1412345
    156789101112
    1613141516171819
    1720212223242526
    1827282930
    19
  • maj 2026
    mationtofr
    18123
    1945678910
    2011121314151617
    2118192021222324
    2225262728293031
    23
   Se om emnet er ledigt på den valgte dato
Ledig
Optaget
   Ankomst mulig
Varighed

Pris

Periode
Ankomst
Afrejse
Varighed
1 uge
Personer
Op til 6 personer

Bemærk

Ankomst er ikke valgt.
Aftale- og lejebetingelser