Hyggelig ferielejlighed med terrasse og internet

Sommerhus - 4 personer - Hennebysvej 26 J - App. - 6854 - Henne Strand

4 personer
Emne nr.: 320-705485
Lys og hyggelig ferielejlighed med sydvendt terrasse og internet i naturskønne Henne Strand.
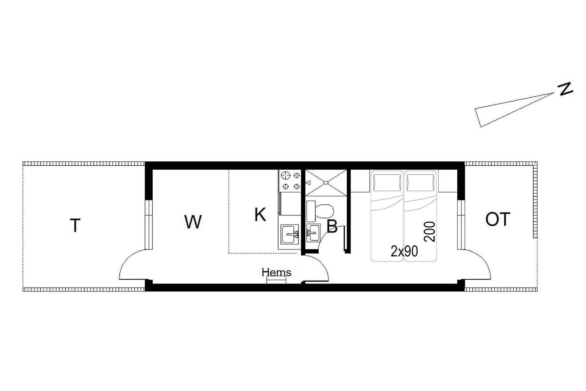
  • Soverum 1
  • Boligareal 27 m²
  • Husdyr 1
  • Tilbyder miniferie Ja
  • Afstand vand 2 km
  • Afstand indkøb 2 km
  • Internet Ja
  • Parabol/kabel TV Ja
  • Ikkeryger Ja

Beskrivelse

Dejligt og lyst indrettet ferielejlighed. Til lejligheden hører såvel sydvendt terrasse samt en åben terrasse med havemøbler. Køkkenet ligger i forbindelse med spisestuen. Lejligheden råder over et soverum med dobbeltseng. Der er en hems med 2 sovepladser. Ferielejligheden ligger i et naturområde med gode muligheder for vandreture. Lejligheden ligger endvidere tæt på golfbane, Vesterhavet og Henne Strand med mange indkøbsmuligheder. Der er gratis internet. I perioden fra påske til efterårsferien er der 200 m til campingpladsen, hvor der er lille købmandsbutik.

Sengestørrelse: 1 dobbeltseng med 2 madrasser 90 x 200 cm + 2 madrasser 70 x 200 cm

Vores gæsteanmeldelser Eksterne anmeldelser

3,0
Baseret på 2 vurderinger
Sidste vurdering fra d. 12-09-2021
5
(0)
4
(0)
3
(2)
2
(0)
1
(0)
Kommentarer
2 vurderinger har kommentarer på dansk.
2 voksne 0 børn 0 husdyr 7 overnatninger 2021 september
Lejligheden i sig selv var ok men badeværelset var meget lille og smalt
2 voksne 0 børn 1 husdyr 7 overnatninger 2021 august
Der mangle mange ting til at lave mad i det lille køkke

Faciliteter

  • Opholdsrum

    • TV
      1
    • CD afspiller
      1
    • Linoleum-/laminatgulv
  • Soverum

    • Linoleum-/laminatgulv
    • Sovepladser
      4
    • Soverum
      1
    • Dobbeltseng
      1
    • Hems
      1
  • Køkken

    • Linoleum-/laminatgulv
    • Komfur: El Keramisk m. ovn
    • Mikroovn
    • Miniovn
    • Køleskab med lille fryseboks
  • Baderum

    • Toilet
    • Bruseniche
  • Objektinfo

    • TV-programmer: Danske
    • TV-programmer: Tyske
    • Internetadgang: WiFi
    • Internetadgang
    • Husareal
      27
    • Byggeår
      2005
    • Ikke ryger hus
    • Husdyr
      1
  • Objektinfo - ude

    • Afstand hav
      2 km
    • Afstand indkøb
      2 km
    • Gynge
    • Havemøbler
    • Liggestole
    • Overdækket terrasse

Miniferie

Der er begrænset mulighed for miniferie de næste 4 uger.

Priser og kalender

Kalender

Ankomst
Næste
  • april 2026
    mationtofr
    1412345
    156789101112
    1613141516171819
    1720212223242526
    1827282930
    19
  • maj 2026
    mationtofr
    18123
    1945678910
    2011121314151617
    2118192021222324
    2225262728293031
    23
   Se om emnet er ledigt på den valgte dato
Ledig
Optaget
   Ankomst mulig
Varighed

Pris

Periode
Ankomst
Afrejse
Varighed
1 uge
Personer
Op til 4 personer

Bemærk

Ankomst er ikke valgt.
Aftale- og lejebetingelser