Fredeligt sommerhus med lukket have ved Henne Strand

Sommerhus - 4 personer - Kærvej - 6854 - Henne Strand

4 personer
Emne nr.: 320-452378
Skønt sommerhus i fredelige omgivelser med brændeovn, lukket have og plads til familie og hund i Henne Strand.
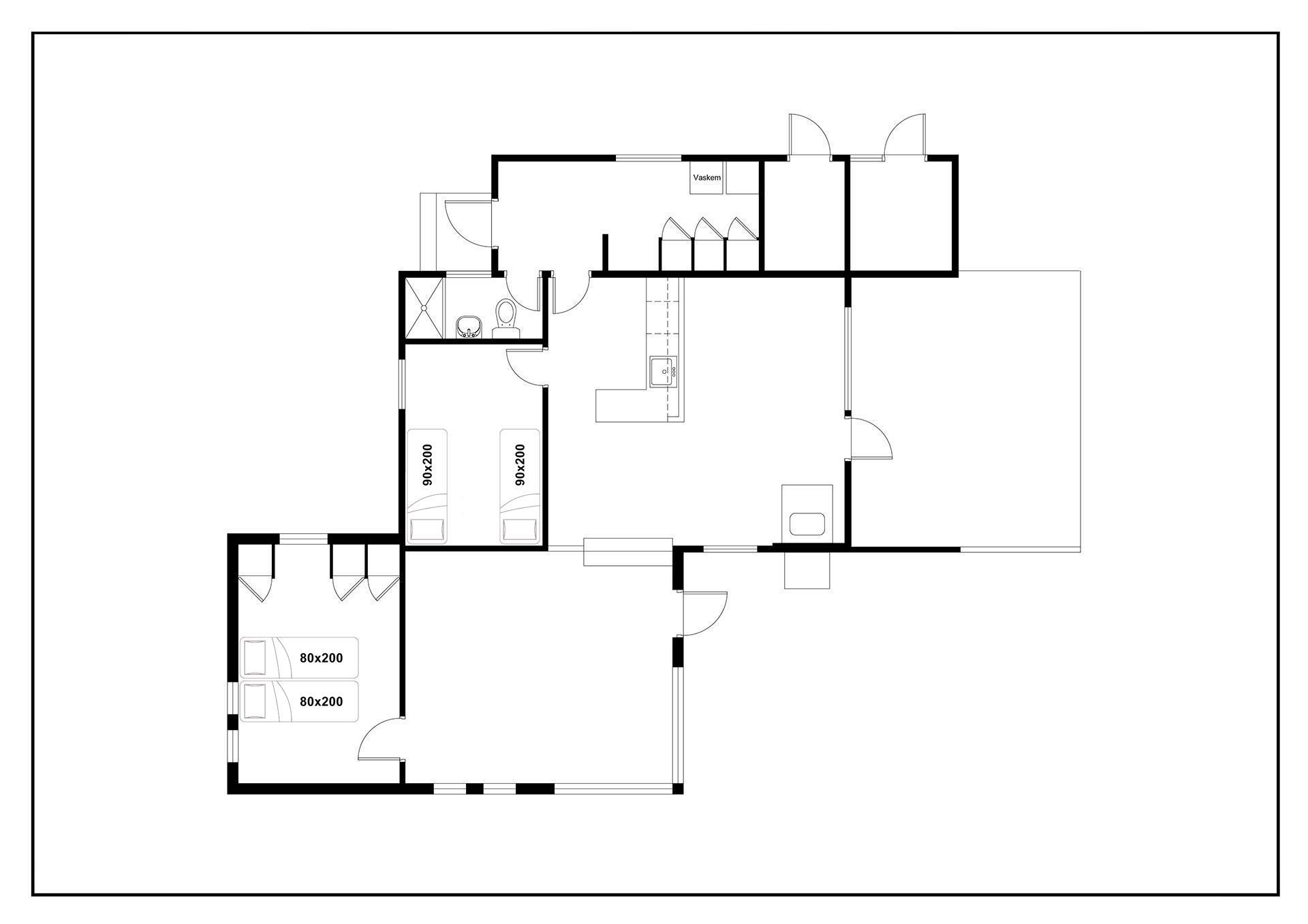
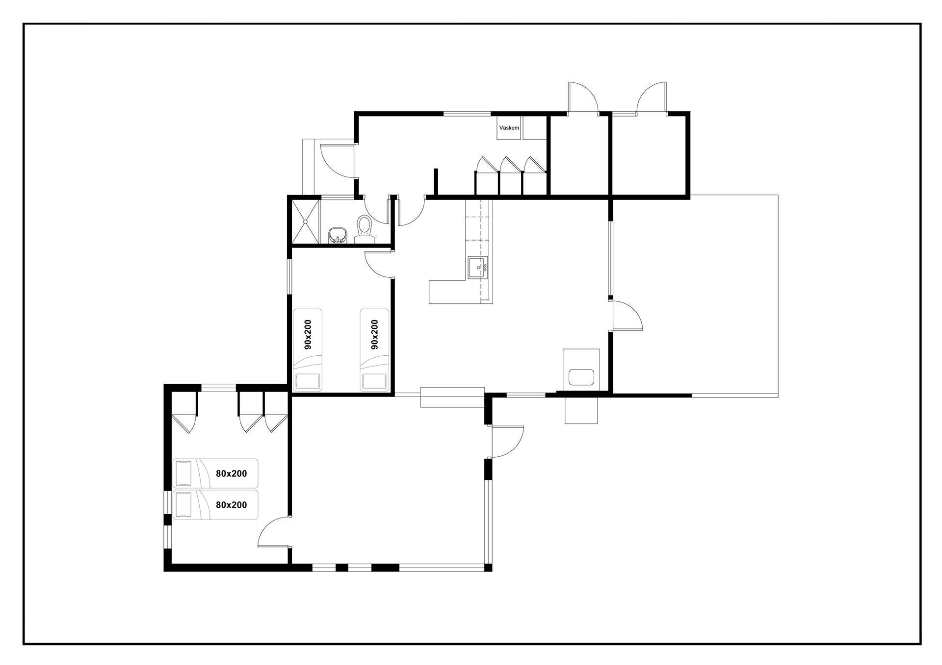
  • Soverum 2
  • Boligareal 93 m²
  • Grundareal 2.258 m²
  • Husdyr 1
  • Tilbyder miniferie Nej
  • Afstand vand 3 km
  • Afstand indkøb 2.500 m
  • Internet Ja
  • Parabol/kabel TV Ja
  • Brændeovn Ja
  • Vaskemaskine Ja
  • Opvaskemaskine Ja
  • Ikkeryger Ja
  • Energivenligt Ja

Beskrivelse

Leder I efter en fredelig pause midt i naturen?

Dette skønne sommerhus i Kærvej 24 er den perfekte ramme om en familieferie i Vestjylland for op til 4 personer og én hund. Med sine 93 m² og en tryg, indhegnet grund, kan hele familien slappe af – både to- og firbenede.

Hygge med brændeovn, lys og praktisk indretning

Stuen har store vinduespartier, som giver et lyst og åbent rum med masser af dagslys. På køligere aftener giver brændeovnen varme og stemning, mens en moderne varmepumpe sørger for komfort hele året.

Det åbne køkken rummer alt, hvad I har brug for – inkl. opvaskemaskine – så det er nemt at nyde måltiderne sammen uden besvær bagefter.

Der er to soveværelser: ét med dobbeltseng, og èt med to enkeltsenge – oplagt til børn eller medrejsende.

Sengestørrelse: 1 dobbeltseng med 2 madrasser 80 x 200 cm + 2 enkeltsenge 90 x 200 cm.

Badeværelset har gulvvarme, der sikrer en lun og behagelig start på dagen.

Lukket have, overdækket terrasse og børnevenligt uderum

Udenfor finder I en sikker, indhegnet have, hvor børn og hund trygt kan lege. På den overdækkede terrasse er der mulighed for at nyde frokost eller bare slappe af med en kop kaffe. En gynge i haven sørger for børnenes underholdning.

Cykelopbevaring og plads til det aktive liv

I det tilhørende depotrum er der god plads til opbevaring af op til to cykler – perfekt til dem, der ønsker at udforske området på to hjul.

Udforsk området omkring Kærvej 24 og Henne Strand

Området byder på naturskønne stier og varieret terræn, som starter lige ved døren – ideelt til aktive familier med hund og børn. Golfspillere kan tage en runde på den nærliggende bane, mens mountainbikere finder udfordringer i Blåbjerg Plantage.

Efter ca. 20 minutters gang når I Henne Strand og byens hyggelige centrum med indkøbsmuligheder, caféer og spisesteder.

Faciliteter

  • Opholdsrum

    • TV
      1
    • Trægulv
  • Soverum

    • Trægulv
    • Sovepladser
      4
    • Soverum
      2
    • Dobbeltseng
      1
    • Enkeltsenge
      2
  • Køkken

    • Trægulv
    • Kogeplader: El keramisk
    • Indbygningsovn
    • Emhætte
    • Køleskab med sep. fryseboks
    • Opvaskemaskine
  • Baderum

    • Gulvvarme
    • Toilet
    • Bruseniche
    • Ekstra: Toilet
      1
    • Ekstra: Bruseniche
      1
  • Objektinfo

    • TV-programmer: Danske
    • TV-programmer: Tyske
    • Internetadgang: WiFi
    • Internetadgang
    • Husareal
      93
    • Byggeår
      1969
    • Renoveret: Total
      2004
    • Renoveret: Delvis
      2026
    • Højstol
      1
    • Barneseng
      1
    • Varme: Brændeovn
    • Varme: Varmepumpe
      2
    • Vaskemaskine
    • Ikke ryger hus
    • Husdyr
      1
  • Objektinfo - ude

    • Afstand hav
      3 km
    • Afstand indkøb
      2,5 km
    • Grundareal
      2258
    • Gynge
    • Havemøbler
    • Liggestole
    • Overdækket terrasse
    • Udendørs bruser
  • Faciliteter

    • Børnevenlig

Priser og kalender

Kalender

Ankomst
Forrige Næste
  • juni 2026
    mationtofr
    231234567
    24891011121314
    2515161718192021
    2622232425262728
    272930
    28
  • juli 2026
    mationtofr
    2712345
    286789101112
    2913141516171819
    3020212223242526
    312728293031
    32
   Se om emnet er ledigt på den valgte dato
Ledig
Optaget
   Ankomst mulig
Varighed

Pris

Periode
Ankomst
Afrejse
Varighed
1 uge
Personer
Op til 4 personer

Bemærk

Ankomst er ikke valgt.
Aftale- og lejebetingelser