Hyggeligt sommerhus med spa og sauna i Henne Strand

Sommerhus - 6 personer - Ligustervej - 6854 - Henne Strand

6 personer
Emne nr.: 320-379789
Hyggeligt og renoveret sommerhus nær Henne Strand med spa, sauna og børnevenlige faciliteter.
  • Soverum 3
  • Boligareal 127 m²
  • Grundareal 1.921 m²
  • Husdyr 1
  • Tilbyder miniferie Nej
  • Afstand vand 800 m
  • Afstand indkøb 900 m
  • Sauna Ja
  • Internet Ja
  • Parabol/kabel TV Ja
  • Brændeovn Ja
  • Vaskemaskine Ja
  • Opvaskemaskine Ja
  • Ikkeryger Ja

Beskrivelse

Ikke langt fra stranden og Henne Strands hyggelige handelsliv finder man dette renoverede (2021) sommerhus med plads til 6 personer.

Lækkert nyt køkken og nyt badeværelse.
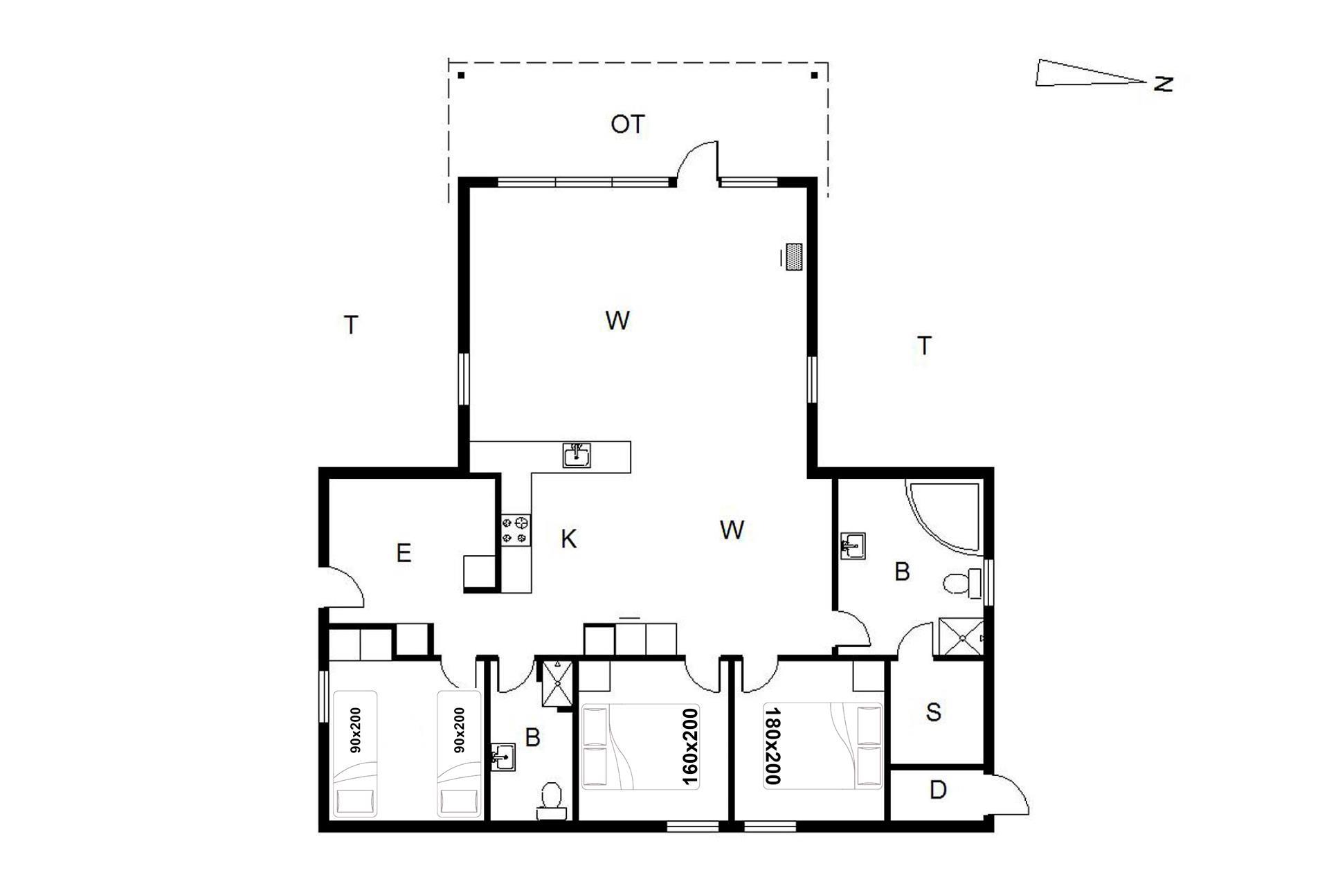
Sommerhuset på Ligustervej 6 har en lys og hyggelig atmosfære med lyse vægge og stort vinduesparti. Huset har gennemgået en gennemgribende renovering i 2021 med et nyt badeværelse, nyt køkken alrum og stor entre med god plads til sko og tøj. Køkkenet er i åben forbindelse med den stuen, så hele familien kan være samlet når maden tilberedes. Der er ekstra badeværelse med spa og sauna.

God træterrasse omkranser huset

En del af terrassen er overdækket, så man kan flytte ind under tag når duggen falder. Bag huset er der en høj klit, som giver læ på terrassen. Der er også tænkt på de små gæster. Der er både sandkasse og gynge.

Sengestørrelser: 1 Dobbeltseng: 180x200 cm, 1 Dobbeltseng: 160x200 cm, 2 Enkeltsenge: 90x200 cm.

Faciliteter

  • Opholdsrum

    • TV
      1
    • Linoleum-/laminatgulv
  • Soverum

    • Gulvtæppe
    • Sovepladser
      6
    • Soverum
      3
    • Dobbeltseng
      2
    • Enkeltsenge
      2
  • Køkken

    • Linoleum-/laminatgulv
    • Kogeplader: El keramisk
    • Indbygningsovn
    • Mikroovn
    • Emhætte
    • Køleskab med sep. fryseboks
    • Opvaskemaskine
  • Baderum

    • Gulvvarme
    • Toilet
    • Bruseniche
    • Ekstra: Toilet
      1
    • Ekstra: Bruseniche
      1
    • Sauna
  • Objektinfo

    • TV-programmer: Danske
    • TV-programmer: Tyske
    • Internetadgang: WiFi
    • Internetadgang
    • Husareal
      127
    • Byggeår
      1994
    • Renoveret: Delvis
      2021
    • Højstol
      1
    • Varme: Brændeovn
    • Vaskemaskine
    • Ikke ryger hus
    • Husdyr
      1
    • Gratis Hallenbad
  • Objektinfo - ude

    • Afstand hav
      800 m
    • Afstand indkøb
      900 m
    • Grundareal
      1921
    • Gynge
    • Sandkasse
    • Havemøbler
    • Liggestole
    • Overdækket terrasse
  • Faciliteter

    • Børnevenlig

Priser og kalender

Kalender

Ankomst
Næste
  • april 2026
    mationtofr
    1412345
    156789101112
    1613141516171819
    1720212223242526
    1827282930
    19
  • maj 2026
    mationtofr
    18123
    1945678910
    2011121314151617
    2118192021222324
    2225262728293031
    23
   Se om emnet er ledigt på den valgte dato
Ledig
Optaget
   Ankomst mulig
Varighed

Pris

Periode
Ankomst
Afrejse
Varighed
1 uge
Personer
Op til 6 personer

Bemærk

Ankomst er ikke valgt.
Aftale- og lejebetingelser