Hyggeligt sommerhus nær Henne Strand og Vesterhavet

Sommerhus - 6 personer - Storkenæbvej - 6854 - Henne Strand

6 personer
Emne nr.: 320-208510
Charmerende sommerhus tæt på Henne Strands hyggelige centrum og Vesterhavet med stor terrasse og sauna.
  • Soverum 4
  • Boligareal 115 m²
  • Grundareal 1.138 m²
  • Husdyr Ikke tilladt
  • Tilbyder miniferie Nej
  • Afstand vand 500 m
  • Afstand indkøb 800 m
  • Sauna Ja
  • Internet Ja
  • Parabol/kabel TV Ja
  • Brændeovn Ja
  • Vaskemaskine Ja
  • Opvaskemaskine Ja
  • Ikkeryger Ja
  • Energivenligt Ja

Beskrivelse

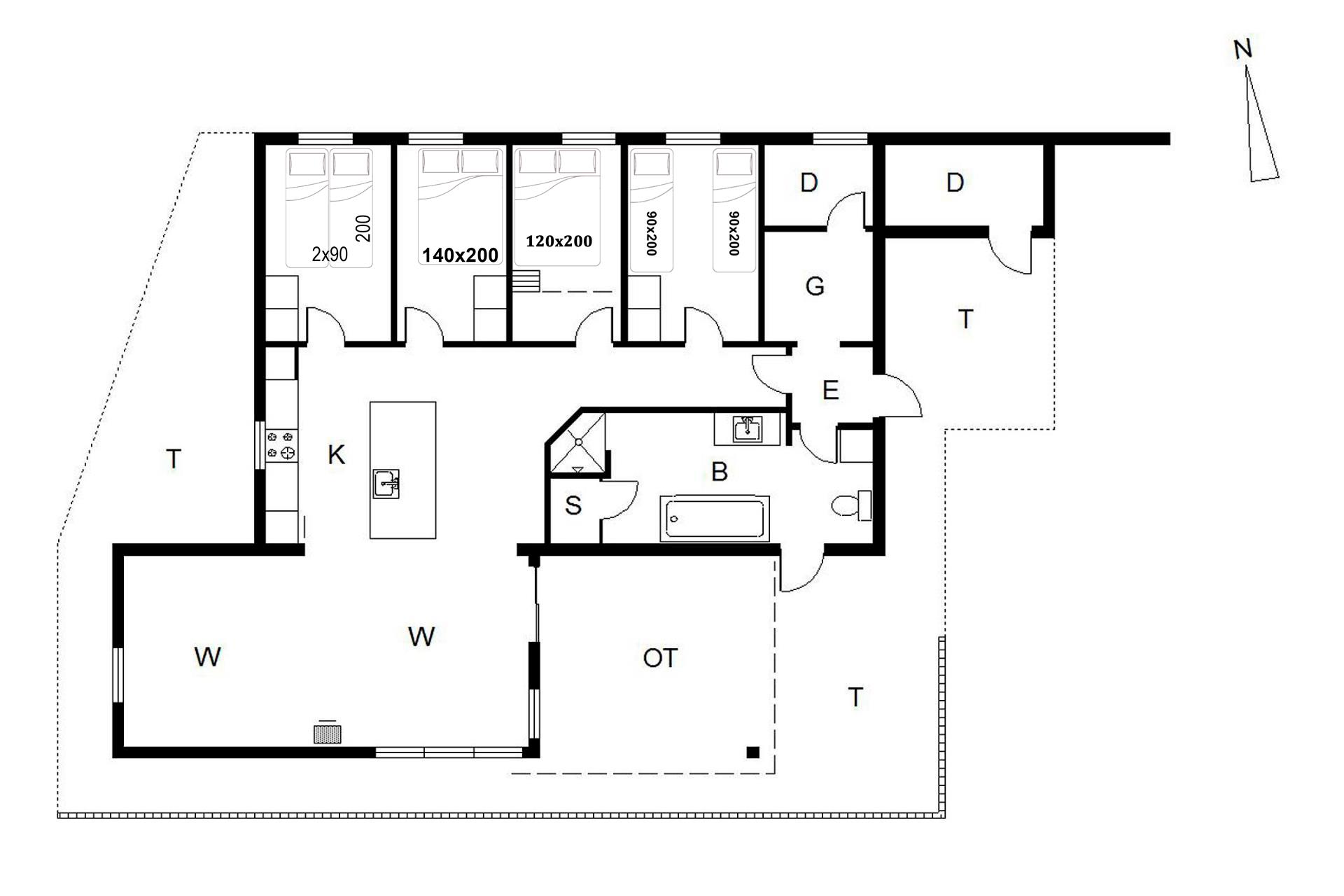
Storkenæbvej 3 – Henne Strand er beliggende i gåafstand til Henne Strand hyggelige handelsliv og restauranter. I kort afstand fra huset er der sti som går ned til Vesterhavet. Stort lækkert badeværelse og stor entre med plads til sko og overtøj. Stor hyggelig stue som er indrettet med gode møbler. Stort opholdsrum med loft til kip og stort vinduesparti
Man mærker den helt rigtige sommerhusstemning i dette hus. Der er også tænkt på det praktiske med vaskemaskine og opvaskemaskine, der er ligeledes energibesparende varmepumpe. Veludstyret køkken med stor fryser og mikroovn. Huset byder på 4 soverum, hvoraf den ene er børneværelse med TV, Hems og skrivebord.
Pragtfuld, ugeneret og børnevenlig naturgrund
Fremhæves skal den store sydvendt delvis overdækkede træterrasse som giver god mulighed for at nyde solen og stilheden. Omkring huset er der stor træterrasse så der er altid mulighed for at finde en lækrog. Der er også tænkt på de små gæster, så der er gynge på grunden. Udendørs bordtennis bord.

Sengestørrelser: 1 dobbeltseng med 2 madrasser 90 x 200 cm + 1 dobbeltseng 140 x 200 cm + 1 dobbeltseng 120 x 200 cm + 2 enkeltsenge 90 x 200 cm 

Faciliteter

  • Opholdsrum

    • TV
      1
    • Trægulv
  • Soverum

    • Gulvtæppe
    • Sovepladser
      7
    • Soverum
      4
    • Dobbeltseng
      3
    • Enkeltsenge
      1
    • Hems
      1
  • Køkken

    • Trægulv
    • Kogeplader: El keramisk
    • Indbygningsovn
    • Mikroovn
    • Emhætte
    • Køleskab med sep. fryseboks
    • Opvaskemaskine
  • Baderum

    • Gulvvarme
    • Toilet
    • Bruseniche
    • Badekar
    • Sauna
  • Objektinfo

    • Spillekonsol
      1
    • TV-programmer: Danske
    • TV-programmer: Tyske
    • Internetadgang: WiFi
    • Internetadgang
    • Husareal
      115
    • Byggeår
      1972
    • Renoveret: Total
      2019
    • Højstol
      1
    • Barneseng
      1
    • Varme: Brændeovn
    • Varme: Varmepumpe
      1
    • Vaskemaskine
    • Ikke ryger hus
  • Objektinfo - ude

    • Afstand hav
      500 m
    • Afstand indkøb
      800 m
    • Grundareal
      1138
    • Gynge
    • Havemøbler
    • Liggestole
    • Overdækket terrasse

Priser og kalender

Kalender

Ankomst
Forrige Næste
  • maj 2026
    mationtofr
    18123
    1945678910
    2011121314151617
    2118192021222324
    2225262728293031
    23
  • juni 2026
    mationtofr
    231234567
    24891011121314
    2515161718192021
    2622232425262728
    272930
    28
   Se om emnet er ledigt på den valgte dato
Ledig
Optaget
   Ankomst mulig
Varighed

Pris

Periode
Ankomst
Afrejse
Varighed
1 uge
Personer
Op til 6 personer

Bemærk

Ankomst er ikke valgt.
Aftale- og lejebetingelser