Hyggeligt feriehus med sauna nær Henne Strand

Sommerhus - 6 personer - Gyvelvej 5 A - 6854 - Henne Strand

6 personer
Emne nr.: 320-110727
Skønt feriehus med sauna og udestue nær Henne Strand, perfekt til børnefamilier og afslapning i rolige omgivelser.
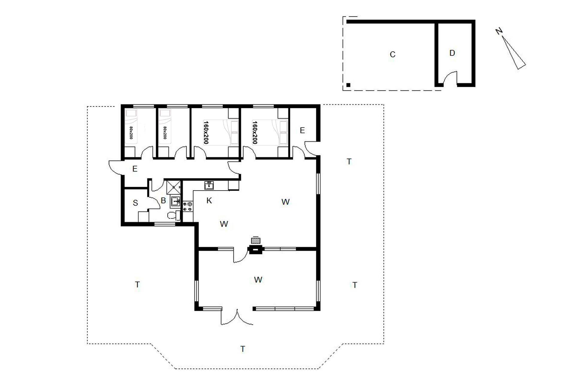
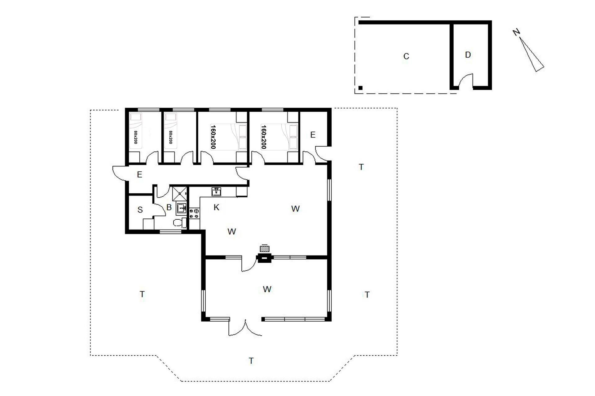
  • Soverum 4
  • Boligareal 115 m²
  • Grundareal 1.522 m²
  • Husdyr Ikke tilladt
  • Tilbyder miniferie Ja
  • Afstand vand 500 m
  • Afstand indkøb 200 m
  • Sauna Ja
  • Internet Ja
  • Parabol/kabel TV Ja
  • Brændeovn Ja
  • Vaskemaskine Ja
  • Opvaskemaskine Ja
  • Ikkeryger Ja
  • Energivenligt Ja

Beskrivelse

Dette dejlige feriehus med varmepumpe er beliggende på en skøn, børnevenlig naturgrund i rolige omgivelser ved Henne Strand. Feriehuset er løbende blevet renoveret. Køkkenet ligger i åben forbindelse med stuen, som er indrettet med gode møbler. Fra stuen er der udgang til dejlig udestue på 20 kvm. Chromecast er installeret. Flot nyere badeværelse. Huset ligger centralt med kun få minutters gang til stranden og Henne Strands centrum.

Sengestørrelse: 2 dobbeltsenge 160 x 200 cm + 2 enkeltsenge 80 x 200 cm.

Vores gæsteanmeldelser Eksterne anmeldelser

4,0
Baseret på 1 vurdering
Vurderet d. 28-05-2021
5
(0)
4
(1)
3
(0)
2
(0)
1
(0)
Kommentarer
Ingen vurderinger har kommentarer.

Faciliteter

  • Opholdsrum

    • TV
      1
    • DVD-afspiller
      1
    • CD afspiller
      1
    • Gulvvarme
    • Gulvtæppe
    • Klinkegulv - opholdsrum
  • Soverum

    • Gulvtæppe
    • Sovepladser
      6
    • Soverum
      4
    • Dobbeltseng
      2
    • Enkeltsenge
      2
  • Køkken

    • Klinkegulv
    • Gulvvarme
    • Komfur: El Keramisk m. ovn
    • Mikroovn
    • Emhætte
    • Køleskab med sep. fryseboks
    • Opvaskemaskine
  • Baderum

    • Gulvvarme
    • Toilet
    • Bruseniche
    • Sauna
    • Babybadekar
    • Puslepude / Puslebord
  • Objektinfo

    • TV-programmer: Danske
    • TV-programmer: Tyske
    • Internetadgang: WiFi
    • Internetadgang
    • Udsigt: Klitter
    • Husareal
      115
    • Byggeår
      1987
    • Renoveret: Delvis
      2018
    • Højstol
      1
    • Barneseng
      1
    • Varme: Brændeovn
    • Varme: Varmepumpe
      1
    • Renoveret: Løbende moderniseret
    • Vaskemaskine
    • Værdiboks / Safe
    • Ikke ryger hus
  • Objektinfo - ude

    • Afstand hav
      500 m
    • Afstand indkøb
      200 m
    • Grundareal
      1522
    • Gynge
    • Sandkasse
    • Havemøbler
    • Liggestole
  • Faciliteter

    • Børnevenlig

Miniferie

Der er begrænset mulighed for miniferie de næste 4 uger.

Priser og kalender

Kalender

Ankomst
Næste
  • april 2026
    mationtofr
    1412345
    156789101112
    1613141516171819
    1720212223242526
    1827282930
    19
  • maj 2026
    mationtofr
    18123
    1945678910
    2011121314151617
    2118192021222324
    2225262728293031
    23
   Se om emnet er ledigt på den valgte dato
Ledig
Optaget
   Ankomst mulig
Varighed

Pris

Periode
Ankomst
Afrejse
Varighed
1 uge
Personer
Op til 6 personer

Bemærk

Ankomst er ikke valgt.
Aftale- og lejebetingelser