Alternative emner
Hyggeligt sommerhus med anneks nær hav og skov
Sommerhus - 4 personer - Egelunden - Helberskov - 9560 - Hadsund
4 personer
Emne nr.: 121-45-4136
Hyggeligt sommerhus med anneks nær skov og kun 250 meter fra havet, perfekt til en rolig naturferie.
- Soverum 3
- Badeværelser 1
- Boligareal 65 m²
- Grundareal 1.250 m²
- Husdyr 2
- Tilbyder miniferie Ja
- Afstand vand 430 m
- Afstand indkøb 2.240 m
- Internet Ja
- Parabol/kabel TV Ja
- Vaskemaskine Ja
- Opvaskemaskine Ja
- Ikkeryger Ja
- Energivenligt Ja
Beskrivelse
Hyggeligt sommerhus med anneks – kun 250 meter fra havet.
Dette charmerende sommerhus med tilhørende anneks ligger på en smuk naturgrund omkranset af skov, hvor roen sænker sig, så snart I ankommer. Den nære placering ved havet gør det let at tage en frisk morgendukkert eller gå en dejlig tur langs vandet.
Et oplagt valg for jer, der drømmer om fred, natur og autentisk sommerhusstemning tæt på kysten.
Indretning
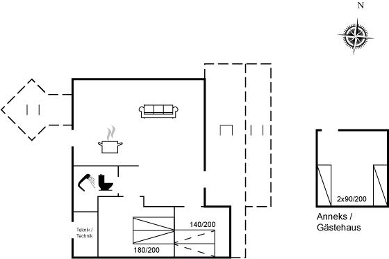
Sommerhuset egner sig til 4 personer. Ferieboligen er på 65 m² og er bygget i 1972. I 2025 gennemgik ferieboligen en delvis renovering. Det er tilladt at medbringe 2 husdyr. Ferieboligen er udstyret med energibesparende luft til luft varmepumpe. Ferieboligen har vaskemaskine. Frysekapacitet på 20 liter.
Udenfor
Ferieboligen er beliggende på en 1250 m² stor naturgrund. Der er 430 m til havet. Der er 1420 m til fjorden. Nærmeste forretning er beliggende i en afstand af 2240 m. Til ferieboligen hører åbent terrasseareal. Desuden er der overdækket terrasse. Grill til rådighed. Parkering ved ferieboligen.
Soveforhold
Der er i alt 3 soveværelser. Sovepladserne fordeler sig på: 2 sovepladser i dobbeltseng. 2 sovepladser i enkeltsenge. 2 sovepladser i sovesofa (dobbelt). 2 af disse sovepladser befinder sig i anneks.
Køkken
Køkkenet er udstyret med 1 køleskab. Der er 4 keramiske kogeplader, varmluftovn, mikrobølgeovn samt opvaskemaskine.
Toilet og bad
Der er 1 badeværelse med bruseniche og 1 toilet.
Multimedier
I ferieboligen er der 1 TV.1 Chromecast. TV via internet. Der er mindst 4 danske kanaler. 1-3 svenske kanaler. 1-3 norske kanaler. 1-3 engelske kanaler. Der er trådløst internet til rådighed.
Værd at vide
Ingen udlejning til ungdomsgrupper, hvor alle er 15-25 år. Rygning ikke tilladt. Ved overtrædelse af forbuddet opkræves et gebyr på minimum DKK 3.000,-.
Indretning
Sommerhuset egner sig til 4 personer. Ferieboligen er på 65 m² og er bygget i 1972. I 2025 gennemgik ferieboligen en delvis renovering. Det er tilladt at medbringe 2 husdyr. Ferieboligen er udstyret med energibesparende luft til luft varmepumpe. Ferieboligen har vaskemaskine. Frysekapacitet på 20 liter.
Udenfor
Ferieboligen er beliggende på en 1250 m² stor naturgrund. Der er 430 m til havet. Der er 1420 m til fjorden. Nærmeste forretning er beliggende i en afstand af 2240 m. Til ferieboligen hører åbent terrasseareal. Desuden er der overdækket terrasse. Grill til rådighed. Parkering ved ferieboligen.
Soveforhold
Der er i alt 3 soveværelser. Sovepladserne fordeler sig på: 2 sovepladser i dobbeltseng. 2 sovepladser i enkeltsenge. 2 sovepladser i sovesofa (dobbelt). 2 af disse sovepladser befinder sig i anneks.
Køkken
Køkkenet er udstyret med 1 køleskab. Der er 4 keramiske kogeplader, varmluftovn, mikrobølgeovn samt opvaskemaskine.
Toilet og bad
Der er 1 badeværelse med bruseniche og 1 toilet.
Multimedier
I ferieboligen er der 1 TV.1 Chromecast. TV via internet. Der er mindst 4 danske kanaler. 1-3 svenske kanaler. 1-3 norske kanaler. 1-3 engelske kanaler. Der er trådløst internet til rådighed.
Værd at vide
Ingen udlejning til ungdomsgrupper, hvor alle er 15-25 år. Rygning ikke tilladt. Ved overtrædelse af forbuddet opkræves et gebyr på minimum DKK 3.000,-.
Faciliteter
-
Adgang til ferieboligen
-
Nøgleboks med kode
-
-
Bemærk
-
Ingen ungdomsgrupper efter anmodning
-
Rygning er forbudt
-
-
Indretning
-
Antal voksne inkl. 4-11 år4
-
Bebygget areal65 m²
-
Byggeår1972
-
Feriebolig
-
Frysekapacitet (antal liter)20
-
Husdyr2
-
Renoveringsår2025
-
Varmepumpe
-
Varmepumpe luft til luft
-
Vaskemaskine1
-
-
Køkken
-
Antal keramiske kogeplader4
-
Køleskab1
-
Mikrobølgeovn1
-
Opvaskemaskine1
-
Varmluftovn1
-
-
Multimedier
-
> 3 danske kanaler
-
0-3 engelske kanaler
-
0-3 norske kanaler
-
0-3 svenske kanaler
-
Antal tv'er1
-
Chromecast1
-
Trådløst internet
-
TV igennem
-
-
Soveforhold
-
Anneks (antal sovepladser)
-
Antal soveværelser3
-
Dobbeltseng (antal sovepladser)2
-
Enkeltseng (antal sovepladser)2
-
Soveplads ikke i soveværelset
-
Sovesofa, dobbelt (antal sovepladser)2
-
-
Toilet og bad
-
Antal badeværelser1
-
Antal toiletter1
-
Brusekabine
-
-
Udenfor
-
Butik2,2 km
-
Fjord1,4 km
-
Grill1
-
Hav430 m
-
Natursted
-
Overdækket terrasse
-
Parkeringsplads ved huset
-
Størrelse af grunden1250 m²
-
Terrasse
-
Miniferie
Der er mulighed for miniferie hele året.
Priser og kalender
Kalender
Varighed
Pris
Periode
- Ankomst
- Afrejse
- Varighed
- 1 uge
Personer
Op til 4 personer
Bemærk
Ankomst er ikke valgt.