Alternative emner
Rummeligt feriehus ved fjorden i Odsherred
Sommerhus - 18 personer - Toldervej - Havnsø - 4591 - Føllenslev
18 personer
Emne nr.: 130-E19149
Oplev det lyse og rummelige feriehus ved fjorden i Odsherred, perfekt til afslapning og naturoplevelser.
- Soverum 8
- Badeværelser 3
- Boligareal 320 m²
- Grundareal 922 m²
- Husdyr 3
- Tilbyder miniferie Ja
- Afstand vand 200 m
- Afstand indkøb 2 km
- Internet Ja
- Gode fiskeforhold Ja
- Vaskemaskine Ja
- Tørretumbler Ja
- Opvaskemaskine Ja
- Ikkeryger Ja
- Ladestander til elbil Ja
Beskrivelse
Tilbring nogle skønne dage i dette charmerende og rummelige feriehus tæt ved vandet.
En gammel gård er blevet transformeret til dette moderne og meget lyse feriehus, som derfor byder på masser af plads. Her kan I virkelig gå ned i gear og glemme alt om hverdagen. Start dagen med en dukkert i fjorden 200 meter væk og tilbered derefter en lækker morgenmad i husets veludstyrede køkken. Tag maden med ud på terrassen og nyd den til morgensolen og den friske luft fra fjorden. I løbet af dagen kan I sole jer fra liggestolene på terrassen eller tilbringe et par afslappende timer ved vandet, og som afslutning på en skøn feriedag kan I holde en hyggelig grillaften efterfulgt af en spændende film på den store fladskærm i opholdsstuen.
Fjorden ligger som sagt lige for døren, så huset er et fantastisk udgangspunkt for masser af dukkerter, friske gåture langs vandet uanset årstid og endda gode fiskemuligheder - så husk at pakke fiskestangen!
Huset ligger i det smukke område ved Odsherred, som indbyder til at tage på opdagelse - i bilen, på cykel eller til fods. Hvis I gerne vil på en spændende dagstur, så kan I sejle med færgen fra Havnsø til de idylliske øer Nekselø eller Sejerø. De smukke landskaber ved Isefjorden er også inden for rækkevidde.
Feriebolig
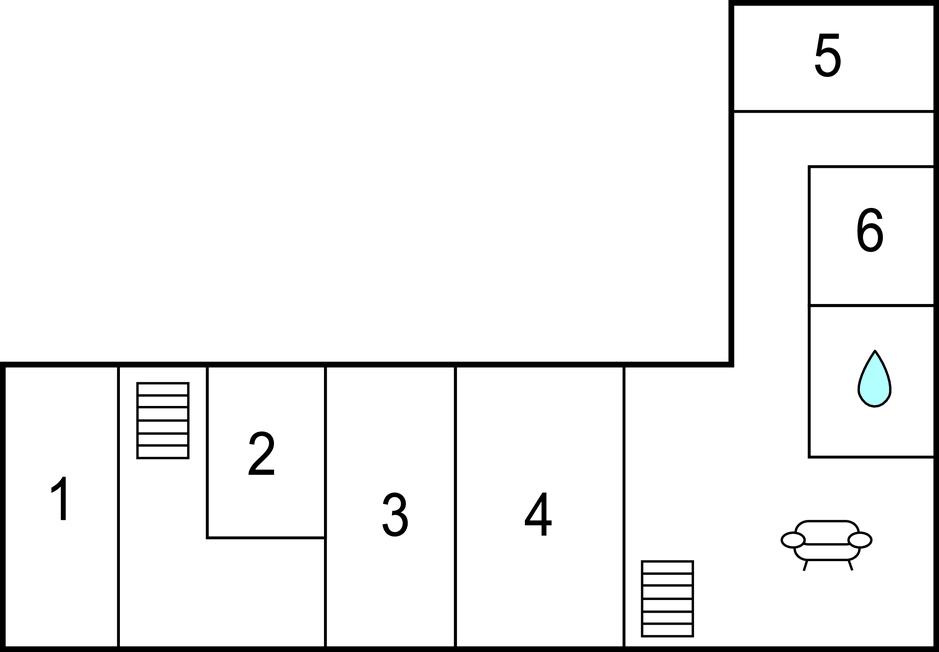
Soveværelse (nr. 1) - 2 Sovepladser. (Dobbeltseng(e)).
Soveværelse (nr. 2) - 2 Sovepladser. (Dobbeltseng(e)).
Soveværelse (nr. 3) - 2 Sovepladser. (Dobbeltseng(e)).
Soveværelse (nr. 4) - 2 Sovepladser. (Dobbeltseng(e)).
Soveværelse (nr. 5) - 2 Sovepladser. (Dobbeltseng(e)).
Soveværelse (nr. 6) - 2 Sovepladser. (Dobbeltseng(e)).
Soveværelse (nr. 7) - 2 Sovepladser. (Dobbeltseng(e)).
Soveværelse (nr. 8) - 2 Sovepladser. (Dobbeltseng(e)).
Opholdsstue - 2 Sovepladser. (Sofa, madras eller lignende).
Spisestue
Køkken
Badeværelse (nr. 1) - WC. Varmt og koldt vand. Bruser
Badeværelse (nr. 2) - WC. Varmt og koldt vand. Bruser
Badeværelse (nr. 3) - WC. Varmt og koldt vand. Bruser
Terrasse el. lignende - Åben terrasse
En gammel gård er blevet transformeret til dette moderne og meget lyse feriehus, som derfor byder på masser af plads. Her kan I virkelig gå ned i gear og glemme alt om hverdagen. Start dagen med en dukkert i fjorden 200 meter væk og tilbered derefter en lækker morgenmad i husets veludstyrede køkken. Tag maden med ud på terrassen og nyd den til morgensolen og den friske luft fra fjorden. I løbet af dagen kan I sole jer fra liggestolene på terrassen eller tilbringe et par afslappende timer ved vandet, og som afslutning på en skøn feriedag kan I holde en hyggelig grillaften efterfulgt af en spændende film på den store fladskærm i opholdsstuen.
Fjorden ligger som sagt lige for døren, så huset er et fantastisk udgangspunkt for masser af dukkerter, friske gåture langs vandet uanset årstid og endda gode fiskemuligheder - så husk at pakke fiskestangen!
Huset ligger i det smukke område ved Odsherred, som indbyder til at tage på opdagelse - i bilen, på cykel eller til fods. Hvis I gerne vil på en spændende dagstur, så kan I sejle med færgen fra Havnsø til de idylliske øer Nekselø eller Sejerø. De smukke landskaber ved Isefjorden er også inden for rækkevidde.
Feriebolig
Soveværelse (nr. 1) - 2 Sovepladser. (Dobbeltseng(e)).
Soveværelse (nr. 2) - 2 Sovepladser. (Dobbeltseng(e)).
Soveværelse (nr. 3) - 2 Sovepladser. (Dobbeltseng(e)).
Soveværelse (nr. 4) - 2 Sovepladser. (Dobbeltseng(e)).
Soveværelse (nr. 5) - 2 Sovepladser. (Dobbeltseng(e)).
Soveværelse (nr. 6) - 2 Sovepladser. (Dobbeltseng(e)).
Soveværelse (nr. 7) - 2 Sovepladser. (Dobbeltseng(e)).
Soveværelse (nr. 8) - 2 Sovepladser. (Dobbeltseng(e)).
Opholdsstue - 2 Sovepladser. (Sofa, madras eller lignende).
Spisestue
Køkken
Badeværelse (nr. 1) - WC. Varmt og koldt vand. Bruser
Badeværelse (nr. 2) - WC. Varmt og koldt vand. Bruser
Badeværelse (nr. 3) - WC. Varmt og koldt vand. Bruser
Terrasse el. lignende - Åben terrasse
Vores gæsteanmeldelser Eksterne anmeldelser
Faciliteter
-
Aktiviteter
-
Kroket
-
Kubb/vikingespil
-
Petanquekugler
-
-
Bad
-
WC. Varmt og koldt vand
-
-
Bemærk
-
Udl. ikke til ungdomsgrupper
-
Udlejes kun til ferieophold
-
-
Diverse
-
Antal babysenge1
-
Antal babystole1
-
Antal gratis børn (< 4 år)1
-
Antal husdyr3
-
Antal solvogne2
-
Byggemateriale: Sten
-
Byggeår1877
-
ECO, Oplader til elkøretøjer
-
Forbrugsomkostninger excl.
-
Helårsisoleret
-
Kæledyr Ja3
-
Renoveret2022
-
Selvbetjent check-in
-
Støvsuger
-
Tidl. landejendom320 m²
-
Tørretumbler
-
Vaskemaskine
-
-
El artikler
-
2 TV
-
Chromecast
-
Internet (trådløst)
-
-
I nærheden
-
Afs. til nærmeste vand/badning200 m
-
Afstand til alt. vand/badning2 km
-
Afstand til fiskemulighed200 m
-
Afstand til indkøb2 km
-
Golfbane10 km
-
Nærmeste by12 km
-
Nærmeste restaurant2 km
-
-
Indendørs
-
Røgalarm
-
-
Indendørs aktiv.
-
Indendørs spil
-
-
Koncepter
-
Lystfiskerhus
-
Røgfrit hus
-
Store ferieboliger
-
Tæt på havet
-
Økoophold
-
-
Køkken
-
El-plader4 kogeplader
-
Emhætte
-
Fryser80 l
-
Kaffemaskine
-
Køkkenet har v/k vand
-
Køleskab
-
Mikroovn
-
Opvaskemaskine
-
Ovn2
-
-
Udendørs
-
Gratis p-plads på grunden5
-
Grill
-
Havemøbler
-
Ladestander til elbil
-
Naturgrund922 m²
-
Åben grund
-
Miniferie
Der er begrænset mulighed for miniferie hele året, typisk uden for højsæsonen.
Priser og kalender
Kalender
Varighed
Pris
Periode
- Ankomst
- Afrejse
- Varighed
- 1 uge
Personer
Op til 18 personer
Bemærk
Ankomst er ikke valgt.