Alternative emner
Rummeligt sommerhus med pool og vildmarksbad
Sommerhus - 24 personer - Gærupvej - 6280 - Højer
24 personer
Emne nr.: 121-29-5514
Oplev et smukt og rummeligt sommerhus med vildmarksbad og indendørs pool nær Højer og Tønder.
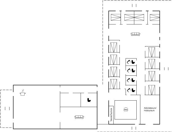
- Soverum 12
- Badeværelser 4
- Boligareal 490 m²
- Grundareal 16.800 m²
- Husdyr 2
- Tilbyder miniferie Ja
- Afstand vand 8 km
- Afstand indkøb 3 km
- Swimmingpool inde Ja
- Sauna Ja
- Internet Ja
- Aktivitetsrum Ja
- Vaskemaskine Ja
- Tørretumbler Ja
- Opvaskemaskine Ja
- Ikkeryger Ja
- Energivenligt Ja
Beskrivelse
Et flot og indbydende sommerhus med god plads. Huset ligger i landlige og naturskønne omgivelser på en meget stor grund tæt på byerne Højer og Tønder. Til huset hører et stort terrasseareal med havemøbler og et skønt 5-pers. vildmarksbad, som kan benyttes både sommer og vinter. Desuden findes der en udendørs sauna.
Indretning
Denne tidligere landejendom egner sig til 24 personer. Ferieboligen er på 490 m², er i 2 plan, og er bygget i 1900. I 2021 gennemgik ferieboligen en renovering. Det er tilladt at medbringe 2 husdyr. Ferieboligen er udstyret med energibesparende varmepumpe. Hele ferieboligen har gulvvarme. Ferieboligen har vaskemaskine. Tørretumbler. Frysekapacitet på 500 liter. Til de små er der 2 stk. barnestole. Puslebord.
Udenfor
Ferieboligen er beliggende på en 16800 m² stor naturgrund. Der er 8000 m til Vadehavet. Der er en sø i en afstand af 20000 m. Nærmeste forretning er beliggende i en afstand af 3000 m. Der er en golfbane i en afstand af 15000 m. Til ferieboligen hører 150 m² terrasseareal. Beachvolley. Udendørs sauna. Grill til rådighed. Parkering ved ferieboligen.
Swimmingpool
I den indendørs swimmingpool er der mulighed for leg og hyggeligt samvær. Swimmingpoolen måler op til 4 m i bredden, 5 m i længden og den er op til 1,3 m dyb. Vandet er mellem 24 og 28° C varmt. Der er gulvvarme i swimmingpoolområdet.
Aktivitetsrum
I aktivitetsrummet er der følgende udstyr: Billard. Poolbord. Bordtennis. Dart.
Soveforhold
Der er i alt 12 soveværelser. Sovepladserne fordeler sig på: 24 sovepladser i dobbeltsenge.
Køkken
Køkkenet er udstyret med 2 køleskabe. Der er 8 induktionskogeplader, 2 varmluftovne, mikrobølgeovn samt opvaskemaskine.
Toilet og bad
Der er 4 badeværelser med bruseniche og 5 toiletter, heraf 1 gæstetoilet. Der er gulvvarme på 4 badeværelser. Der er gulvvarme på gæstetoilettet.
Spa
Der er mulighed for afslapning i det udendørs vildmarkskar til 5 personer.
Multimedier
I ferieboligen er der 3 Smart-TV. Chromecast (1-3 danske kanaler). Radio.1 Bluetooth-højtaler. Mindst 4 tyske kanaler. Der er trådløst internet til rådighed.
Værd at vide
Huset ligger i nærheden af et landbrug. Ingen udlejning til ungdomsgrupper, hvor alle er 15-25 år. Rygning ikke tilladt. Ved overtrædelse af forbuddet opkræves et gebyr på minimum DKK 3.000,-.
Indretning
Denne tidligere landejendom egner sig til 24 personer. Ferieboligen er på 490 m², er i 2 plan, og er bygget i 1900. I 2021 gennemgik ferieboligen en renovering. Det er tilladt at medbringe 2 husdyr. Ferieboligen er udstyret med energibesparende varmepumpe. Hele ferieboligen har gulvvarme. Ferieboligen har vaskemaskine. Tørretumbler. Frysekapacitet på 500 liter. Til de små er der 2 stk. barnestole. Puslebord.
Udenfor
Ferieboligen er beliggende på en 16800 m² stor naturgrund. Der er 8000 m til Vadehavet. Der er en sø i en afstand af 20000 m. Nærmeste forretning er beliggende i en afstand af 3000 m. Der er en golfbane i en afstand af 15000 m. Til ferieboligen hører 150 m² terrasseareal. Beachvolley. Udendørs sauna. Grill til rådighed. Parkering ved ferieboligen.
Swimmingpool
I den indendørs swimmingpool er der mulighed for leg og hyggeligt samvær. Swimmingpoolen måler op til 4 m i bredden, 5 m i længden og den er op til 1,3 m dyb. Vandet er mellem 24 og 28° C varmt. Der er gulvvarme i swimmingpoolområdet.
Aktivitetsrum
I aktivitetsrummet er der følgende udstyr: Billard. Poolbord. Bordtennis. Dart.
Soveforhold
Der er i alt 12 soveværelser. Sovepladserne fordeler sig på: 24 sovepladser i dobbeltsenge.
Køkken
Køkkenet er udstyret med 2 køleskabe. Der er 8 induktionskogeplader, 2 varmluftovne, mikrobølgeovn samt opvaskemaskine.
Toilet og bad
Der er 4 badeværelser med bruseniche og 5 toiletter, heraf 1 gæstetoilet. Der er gulvvarme på 4 badeværelser. Der er gulvvarme på gæstetoilettet.
Spa
Der er mulighed for afslapning i det udendørs vildmarkskar til 5 personer.
Multimedier
I ferieboligen er der 3 Smart-TV. Chromecast (1-3 danske kanaler). Radio.1 Bluetooth-højtaler. Mindst 4 tyske kanaler. Der er trådløst internet til rådighed.
Værd at vide
Huset ligger i nærheden af et landbrug. Ingen udlejning til ungdomsgrupper, hvor alle er 15-25 år. Rygning ikke tilladt. Ved overtrædelse af forbuddet opkræves et gebyr på minimum DKK 3.000,-.
Vores gæsteanmeldelser Eksterne anmeldelser
Faciliteter
-
Adgang til ferieboligen
-
Nøgleboks med kode
-
-
Aktivitetsrum
-
Aktivitetsrum
-
Billard
-
Bordtennis
-
Dart
-
Poolbord
-
-
Bemærk
-
Aktivitetshus
-
Ingen ungdomsgrupper efter anmodning
-
Rygning er forbudt
-
-
Indretning
-
2 niveauer
-
Antal voksne inkl. 4-11 år24
-
Bebygget areal490 m²
-
Byggeår1900
-
Frysekapacitet (antal liter)500
-
Gulvvarme
-
Husdyr2
-
Højstol2
-
Puslebord
-
Renovering2021
-
Tidligere gård
-
Tørretumbler1
-
Varmepumpe
-
Vaskemaskine1
-
-
Køkken
-
Antal induktionskogeplader8
-
Køleskab2
-
Mikrobølgeovn1
-
Opvaskemaskine1
-
Varmluftovn2
-
-
Multimedier
-
> 3 tyske kanaler
-
0-3 danske kanaler
-
Antal tv'er3
-
Bluetooth -højttaler1
-
Chromecast1
-
Radio
-
Smart-Tv3
-
Trådløst internet
-
-
Soveforhold
-
Antal soveværelser12
-
Dobbeltseng (antal sovepladser)24
-
-
Spa
-
Hot tub5
-
-
Swimmingpool
-
Gulvvarme
-
Indendørs swimmingpool
-
Svømmebassinets bredde4
-
Svømmebassinets dybde1,3
-
Svømmebassinets længde5
-
-
Toilet og bad
-
Antal badeværelser4
-
Antal gæstebadeværelser1
-
Antal toiletter5
-
Brusekabine
-
Gulvvarme4
-
Gulvvarme1
-
-
Udenfor
-
Beach volley
-
Butik3 km
-
Golfbane15 km
-
Grill1
-
Natursted
-
Parkeringsplads ved huset
-
Størrelse af grunden16800 m²
-
Sø20 km
-
Terrasse150 m²
-
Udendørs sauna
-
Vadehavet8 km
-
Miniferie
Der er begrænset mulighed for miniferie hele året, typisk uden for højsæsonen.
Priser og kalender
Kalender
Varighed
Pris
Periode
- Ankomst
- Afrejse
- Varighed
- 1 uge
Personer
Op til 24 personer
Bemærk
Ankomst er ikke valgt.