Rummeligt sommerhus med pool og spa nær Højer

Sommerhus - 26 personer - Kirstine Svendsdattervej - 6280 - Højer

26 personer
Emne nr.: 121-29-5085
Stort, renoveret sommerhus med pool, spa og aktivitetsrum nær Højer, perfekt til familiefester.
  • Soverum 10
  • Badeværelser 4
  • Boligareal 550 m²
  • Grundareal 2.000 m²
  • Husdyr 3
  • Tilbyder miniferie Ja
  • Afstand vand 7 km
  • Afstand indkøb 4.300 m
  • Spa Ja
  • Sauna Ja
  • Internet Ja
  • Aktivitetsrum Ja
  • Vaskemaskine Ja
  • Tørretumbler Ja
  • Opvaskemaskine Ja
  • Ikkeryger Ja
  • Energivenligt Ja

Beskrivelse

Et stort og rummeligt sommerhus beliggende i et naturskønt område i den lille by Østerby -tæt på byerne Højer og Tønder. På grunden findes en udendørs swimmingpool, som kan benyttes fra den 01.05 til den 30.09 samt en 9-pers. udendørs spa, som kan benyttes hele året rundt. Alt i alt er dette sommerhus den perfekte base for flere generationers sammenkomster og ferieoplevelser.

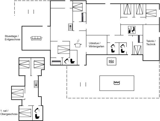
Indretning
Sommerhuset egner sig til 26 personer. Ferieboligen er på 550 m², er i 2 plan, og er bygget i 1890. I 2021 gennemgik ferieboligen en renovering. Det er tilladt at medbringe 3 husdyr. Ferieboligen er udstyret med energibesparende varmepumpe. Der er gulvvarme i stuen. Ferieboligen har vaskemaskine. Tørretumbler. Frysekapacitet på 30 liter.

Udenfor
Ferieboligen er beliggende på en 2000 m² stor naturgrund. Der er 7000 m til havet. Nærmeste forretning er beliggende i en afstand af 4300 m. Til ferieboligen hører 250 m² terrasseareal. Parkering ved ferieboligen.

Swimmingpool
Swimmingpoolen måler op til 4 m i bredden, .

Aktivitetsrum
I aktivitetsrummet er der følgende udstyr: Billard.

Soveforhold
Der er i alt 10 soveværelser. Sovepladserne fordeler sig på: 20 sovepladser i dobbeltsenge. 6 sovepladser i køjesenge.

Køkken
Køkkenet er udstyret med 2 køleskabe. Der er 8 keramiske kogeplader, 2 varmluftovne, mikrobølgeovn samt opvaskemaskine.

Toilet og bad
Der er 4 badeværelser med bruseniche og 4 toiletter. Der er gulvvarme på 3 badeværelser. I saunaen er der mulighed for afslapning.

Spa
Der er mulighed for afslapning i udendørs standvandsspa til 9 personer.

Multimedier
I ferieboligen er der 1 Smart-TV. Der er 1-3 danske kanaler. Mindst 4 tyske kanaler. Der er trådløst internet til rådighed.

Værd at vide
Ingen udlejning til ungdomsgrupper, hvor alle er 15-25 år. Rygning ikke tilladt. Ved overtrædelse af forbuddet opkræves et gebyr på minimum DKK 3.000,-. Det er ikke tilladt at medbringe eget musikanlæg, soundboks, boomblaster m.m. Affyring af fyrværkeri er ikke tilladt nytårsaften.

Vores gæsteanmeldelser Eksterne anmeldelser

2,7
Baseret på 3 vurderinger
Sidste vurdering fra d. 11-03-2025
5
(0)
4
(0)
3
(2)
2
(1)
1
(0)
Kommentarer
3 vurderinger har kommentarer på dansk.
12 voksne 2 børn 2 husdyr 3 overnatninger 2025 marts
Mange forskellige niveauer i huset. Trapper op og ned
17 voksne 0 børn 0 husdyr 4 overnatninger 2024 april
Selve boligen og værelser var OK til prisen. Men dårligt udstyret køkken. Ikke nok vinglas. Ingen plader til den nederste ovn. Kun én lille billig og meget dårlig 8 koppers kaffemaskine til et hus til 24 pers. Ingen The kande. Ingen forhæng i 3 af brusekabinerne, så der er vand på hele gulvet. Meget beskidt og ulækker grill.
9 voksne 0 børn 0 husdyr 4 overnatninger 2024 april
Overordnet et fint sommerhus. Dog virkelig slidt køkken, med en del mangler. Fx. -er der to ovne, men der er kun plader det passer i den ene ovn men ikke i den anden. - Laminaten på køkkenfronterne samt bordpladen har været udsat for vand over længere tid, hvorfor det har slået rig og er ved at falde af flere steder. - Stuerne er fyld med tissemyrer og selvom protein er dejligt, at det ikke hvad vi ønksede som selskab til vores måltider. - Lækker at der var billard. Det var dog svært at ramme kuglerne, da alle køerne var skæve. - Vi fik aldrig fundet ud af hvordan vi tændte for varmen i hovedhuset.
3,8
Generelt:
3,3
Service på stedet:
4,0
Værdi for pengene:
3,7
Beliggenhed:
4,2
2 eksterne anmeldelser
4,5
Generelt:
4
Service på stedet:
5
Værdi for pengene:
4
Beliggenhed:
5
4,5
Generelt:
4
Service på stedet:
5
Værdi for pengene:
5
Beliggenhed:
4

Faciliteter

  • Adgang til ferieboligen

    • Nøgleboks med kode
  • Aktivitetsrum

    • Aktivitetsrum
    • Billard
  • Bemærk

    • Ingen ungdomsgrupper efter anmodning
    • Rygning er forbudt
  • Indretning

    • 2 niveauer
    • Antal voksne inkl. 4-11 år
      26
    • Bebygget areal
      550 m²
    • Byggeår
      1890
    • Feriebolig
    • Frysekapacitet (antal liter)
      30
    • Gulvvarme
    • Husdyr
      3
    • Renovering
      2021
    • Tørretumbler
      1
    • Varmepumpe
    • Vaskemaskine
      1
  • Køkken

    • Antal keramiske kogeplader
      8
    • Køleskab
      2
    • Mikrobølgeovn
      1
    • Opvaskemaskine
      1
    • Varmluftovn
      2
  • Multimedier

    • > 3 tyske kanaler
    • 0-3 danske kanaler
    • Antal tv'er
      1
    • Download
      200
    • Smart-Tv
      1
    • Trådløst internet
    • Upload
      200
  • Soveforhold

    • Antal soveværelser
      10
    • Dobbeltseng (antal sovepladser)
      20
    • Køjeseng (antal sovepladser)
      6
  • Spa

    • Udendørs forfyldt spabad (antal personer)
      9
  • Swimmingpool

    • Vores dør swimmingpool bred
      4
  • Toilet og bad

    • Antal badeværelser
      4
    • Antal toiletter
      4
    • Brusekabine
    • Gulvvarme
      3
    • Sauna
  • Udenfor

    • Butik
      4,3 km
    • Hav
      7 km
    • Natursted
    • Parkeringsplads ved huset
    • Størrelse af grunden
      2000 m²
    • Terrasse
      250 m²

Miniferie

Der er begrænset mulighed for miniferie hele året, typisk uden for højsæsonen.

Priser og kalender

Kalender

Ankomst
Næste
  • februar 2026
    mationtofr
    51
    62345678
    79101112131415
    816171819202122
    9232425262728
    10
  • marts 2026
    mationtofr
    91
    102345678
    119101112131415
    1216171819202122
    1323242526272829
    143031
   Se om emnet er ledigt på den valgte dato
Ledig
Optaget
   Ankomst mulig
Varighed

Pris

Periode
Ankomst
Afrejse
Varighed
1 uge
Personer
Op til 26 personer

Bemærk

Ankomst er ikke valgt.
Aftale- og lejebetingelser