Charmerende sommerhus tæt på Grenå Strand

Sommerhus - 8 personer - Kaprifolievej - 8500 - Grenå

8 personer
Emne nr.: 125-8516
Charmerende sommerhus tæt på Grenå Strand med spabad, stor terrasse og børnevenlig have.
  • Soverum 3
  • Badeværelser 2
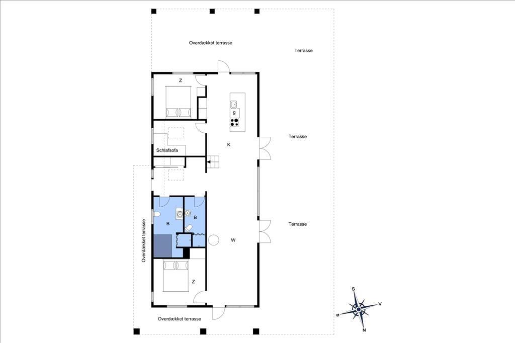
  • Boligareal 120 m²
  • Grundareal 1.200 m²
  • Husdyr Ikke tilladt
  • Tilbyder miniferie Nej
  • Afstand vand 700 m
  • Afstand indkøb 1 km
  • Spa Ja
  • Highspeed internet Ja
  • Parabol/kabel TV Ja
  • Vaskemaskine Ja
  • Tørretumbler Ja
  • Opvaskemaskine Ja
  • Ikkeryger Ja
  • Ladestander til elbil Ja

Beskrivelse

Velkommen indenfor

En ferieperle tæt på havet. Forestil dig at træde ind i et smukt og lyst ferieparadis, hvor hver detalje er skabt til afslapning og hyggelige stunder. Dette skønne sommerhus fra 2008 emmer af charme med sine hvidmalede vægge og lofter, lyse klinkegulve og bløde trægulve i soveværelserne, der inviterer til bare tæer og morgenkaffe i roligt tempo. Hjertet af huset er det stilfulde køkken med kogeø – her kan du tilberede feriens lækre måltider, mens snakken går, og duften af friskbagt brød spreder sig i rummet. Køkkenet smelter naturligt sammen med den rummelige stue, hvor store vinduer lukker lyset ind og skaber en skøn atmosfære. Her kan du synke ned i de bløde møbler med en god bog, nyde en filmaften foran Tv’et med både danske og tyske kanaler eller lade børnene dyste i et spil på PlayStation 2. Efter en dag fuld af oplevelser venter der ren selvforkælelse i husets badeværelser. Det største er udstyret med et lækkert, nedsænket spabad, hvor du kan lade boblerne løsne spændingerne i kroppen, mens gulvvarmen luner dine fødder. Det andet badeværelse byder også på varme fliser og en skøn bruseniche. Praktisk er der naturligvis også tænkt på – en rummelig entré med både vaskemaskine og tørretumbler gør det nemt at håndtere feriens små gøremål.

Husets sovepladser er fordelt, så både voksne og børn kan finde deres favoritsted at sove. To hyggelige soveværelser med dobbeltsenge, et mindre værelse med en behagelig dobbelt sovesofa samt en charmerende hems, hvor der venter to ekstra sovepladser – perfekt til familiens eventyrlystne børn. Til de små feriegæster er der både høj stol og barneseng til rådighed. Og selvfølgelig er der trådløst internet, så I kan dele feriens bedste øjeblikke med dem derhjemme.

Nyd livet udenfor

Natur, leg og afslapning under åben himmel. Når solen skinner, er husets store terrasse det perfekte samlingspunkt. Her kan I nyde lange morgenmåltider under den overdækkede del, grille på de lune aftener og lade børnene lege i sandkassen og haven, mens I slapper af i de komfortable havemøbler. Når mørket falder på, kan ny nyde lysene i træerne og et køligt glas mens dagens oplevelser tænkes igennem.

Kun 700 meter fra huset venter en af Jyllands bedste badestrande, der har blåt flag og hvad dertil hører. Perfekt til både morgenløb i Vandkanten, solrige strand dage og aftenture med lyden af bølgerne som baggrundsmusik.

Kom tæt på de lokale oplevelser

Tæt på ferieoplevelser for hele familien. Feriehuset ligger i et børnevenligt område, hvor oplevelserne står i kø. Kun 10 minutters gang væk finder I det fascinerende Kattegatcenter, hvor I kan komme tæt på hajer, pingviner, sæler og havets forunderlige verden. Grenaa Lystbådehavn lokker med maritim stemning, gode restauranter og hyggelige stunder og krabbefiskeri ved vandet.

En kort køretur bringer jer til Djurs Sommerland, der er Nordens største forlystelsespark. Her venter fart og sjov venter og Djurs Sommerland har det med at finde på en ny aktivitet, hvert år. Du kan også besøge Skandinavisk Dyrepark, hvor der bor både isbjørne og brunbjørne, historiske, gamle og smukke købstad Ebeltoft, Nationalpark Mols Bjerge med sin storslåede natur eller tag en tur til Ree Park og oplev vilde dyr fra hele verden. Og skulle en regnvejrsdag melde sig, så venter Randers Regnskov kun en times kørsel væk, hvor I kan gå på opdagelse i tropiske junglestemninger. Hele Djursland byder på meget - Slotte, kultur, historie og mad og vin i lange baner.

Her er alt, hvad hjertet kan begære af ferieoplevelser – og et sommerhus, der danner den perfekte ramme om dem.


Rumindretning

  • Soveværelse
    • Dobbeltseng - 140x200
  • Soveværelse
    • Dobbeltseng - 140x200
  • Sovehems
    • Enkelt madras - 80x200
    • Enkelt madras - 80x200

Vores gæsteanmeldelser Eksterne anmeldelser

2,0
Baseret på 1 vurdering
Vurderet d. 16-07-2023
5
(0)
4
(0)
3
(0)
2
(1)
1
(0)
Kommentarer
1 vurdering har kommentar på dansk.
4 voksne 3 børn 0 husdyr 7 overnatninger 2023 juli
Ikke i forhold til beskrivelsen af huset, Sengene var ikke dobbeltsenge som beskrevet, Den ene seng med stål ramme knirker og er ganske forfærdelig at sove i, dyner og puder under al kritik til nogle af sovepladserne… Havemøbler med hynder som slet ikke passer til stolene, kun en solseng, dører der binder og svære at lukke, larmer om natten, Ventilator i badeværelse 2 virkede ikke og det bevirkede meget fugt i rummet. Hængekøje på terrasse ganske farlig 2 børn faldt ned og slog ryggen på stativet, ikke fejet på terrasse og krukker fyldte med ukrudt Der var utæthed ved skorsten, da det regnede, vi måtte sætte balje under, dette kom service medarbejder og tilså. Ingen skrællekniv i huset og ikke ekstra bestik… Rengøring mangelfuld, støv og fnuller i hjørner og under senge og hemsen måtte gøres ren, før nogen havde lyst til at sove her… Playstation virker ikke Terrasse brædder i dårlig stand

Faciliteter

  • Hus Info

    • 2 x Bruser
    • 2 x WC
    • Antal voksne
      8
    • Byggeår
      2008
    • Grundareal / Naturgrund
      1200 m²
    • Husareal
      120 m²
    • Indendørs spabad
  • Afstande

    • Afstand golfbane
      6 km
    • Afstand hav
      700 m
    • Afstand indkøb / Helårsbutik
      1 km
    • Afstand kyst
      700 m
    • Afstand lufthavn
      25 km
    • Afstand restaurant
      700 m
    • Afstand strand / Sandstrand
      700 m
    • Afstand svømmehal
      3 km
  • Energi / Opvarmning

    • Centralvarme
  • Hårde hvidevarer

    • Elkedel
    • Emhætte
    • Kogeplader
      4 stk
    • Køleskab med frys
    • Mikroovn
    • Opvaskemaskine
    • Ovn
    • Strygebræt
    • Strygejern
    • Tørretumbler
    • Vaskemaskine
  • Multimedier

    • Chromecast
    • Dansk tv
      Min. gratis DR kanaler, TV2
    • Gratis Wi-Fi - Over 20 Mbit
    • Kabel-TV
    • Norsk TV
      NDR,
    • Spillekonsol
      Playstation 2
    • Svensk TV
      SVT1,
    • TV
    • Tysk TV
      Min. ZDF
  • Ekstra

    • Barnestol
    • Børnevenlig
    • Golfferie
  • Udenfor

    • Carport
      4 m²
    • Havemøbler
    • Overdækket terrasse
      15 m²
    • Parkering på grunden
    • Sandkasse
    • Åben terrasse
      60 m²
  • Diverse

    • 4 x Flise-/klinkegulv
    • 4 x Træ-/parketgulv
    • 8 x Gulvvarme
    • Sovesofa dobbelt
      140x200
  • Regler

    • Husdyr ikke tilladt
    • Opladning af elbil tilladt / Lader til elbil forefindes (Type 2-stik, medbring kabel)
    • Rygning ikke tilladt
  • Pris inklusiv

    • Slutrengøring inkl.
  • GAMMEL

    • CD
    • DVD
    • Radio

Priser og kalender

Kalender

Ankomst
Forrige Næste
  • juni 2026
    mationtofr
    231234567
    24891011121314
    2515161718192021
    2622232425262728
    272930
    28
  • juli 2026
    mationtofr
    2712345
    286789101112
    2913141516171819
    3020212223242526
    312728293031
    32
   Se om emnet er ledigt på den valgte dato
Ledig
Optaget
   Ankomst mulig
Varighed

Pris

Periode
Ankomst
Afrejse
Varighed
1 uge
Personer
Op til 8 personer

Bemærk

Ankomst er ikke valgt.
Aftale- og lejebetingelser