Alternative emner
Charmerende sommerhus nær strand og by i Skagen
Sommerhus - 10 personer - Sønderhede - Gl. Skagen - 9990 - Skagen
10 personer
Emne nr.: 121-10-1104
Charmerende sommerhus i Gl. Skagen med stor naturgrund og tæt på strand og byliv.
- Soverum 5
- Badeværelser 2
- Boligareal 120 m²
- Grundareal 2.500 m²
- Husdyr Ikke tilladt
- Tilbyder miniferie Ja
- Afstand vand 500 m
- Afstand indkøb 400 m
- Internet Ja
- Brændeovn Ja
- Vaskemaskine Ja
- Tørretumbler Ja
- Opvaskemaskine Ja
- Ikkeryger Ja
- Energivenligt Ja
Beskrivelse
Et fantastisk sommerhus beliggende i Gl. Skagen - tæt på solnedgangspladsen, de hyggelige restauranter og ikke mindst den dejlige badestrand. Fra huset er der heller ikke langt ind til Skagen by med sit charmerende havnemiljø.
Til huset hører dejlige terrasser, hvor man kan nyde timer i det fri med en god bog eller hyggeligt samvær.
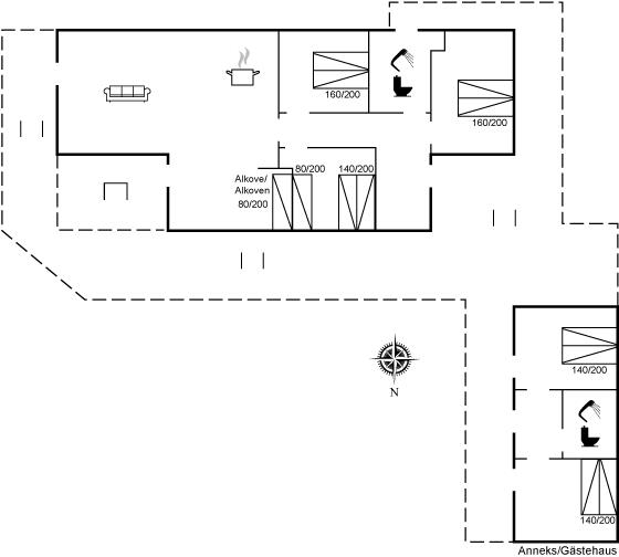
Der findes et anneks på grunden, som er indrettet med 2 soveværelser og badeværelse. Dette er med til at gøre huset særdeles velegnet til såvel 1 som 2 familier eller flere par, som ønsker at tilbringe en fælles ferie i skønne omgivelser.
Indretning
Sommerhuset egner sig til 10 personer. Ferieboligen er på 120 m² og er bygget i 2022. Det er ikke tilladt at medbringe husdyr. Ferieboligen er udstyret med 1 energivenlig luft til luft varmepumpe. Ferieboligen er udstyret med energibesparende varmepumpe. Ferieboligen har vaskemaskine. Tørretumbler. Frysekapacitet på 60 liter. Der er desuden brændeovn.
Udenfor
Ferieboligen er beliggende på en 2500 m² stor naturgrund. Der er 500 m til havet. Nærmeste forretning er beliggende i en afstand af 400 m. Til ferieboligen hører åbent terrasseareal. Desuden er der overdækket terrasse. Gynge. Udendørs bruser. Grill til rådighed. Parkering ved ferieboligen.
Soveforhold
Der er i alt 5 soveværelser. Sovepladserne fordeler sig på: 10 sovepladser i dobbeltsenge.1 soveplads i køjeseng. 1 soveplads i alkove. 4 af disse sovepladser befinder sig i et anneks og 1 af dem befinder sig i opholdsstuen.
Køkken
Køkkenet er udstyret med 1 køleskab. Der er 4 induktionskogeplader, varmluftovn samt opvaskemaskine.
Toilet og bad
Der er 2 badeværelser med bruseniche og 2 toiletter. Der er gulvvarme på 1 badeværelse.
Multimedier
I ferieboligen er der 1 Smart-TV. Ingen TV-kanaler - kun streaming. Der er trådløst internet til rådighed.
Værd at vide
Ingen udlejning til ungdomsgrupper, hvor alle er 15-25 år. Rygning ikke tilladt. Ved overtrædelse af forbuddet opkræves et gebyr på minimum DKK 3.000,-.
Indretning
Sommerhuset egner sig til 10 personer. Ferieboligen er på 120 m² og er bygget i 2022. Det er ikke tilladt at medbringe husdyr. Ferieboligen er udstyret med 1 energivenlig luft til luft varmepumpe. Ferieboligen er udstyret med energibesparende varmepumpe. Ferieboligen har vaskemaskine. Tørretumbler. Frysekapacitet på 60 liter. Der er desuden brændeovn.
Udenfor
Ferieboligen er beliggende på en 2500 m² stor naturgrund. Der er 500 m til havet. Nærmeste forretning er beliggende i en afstand af 400 m. Til ferieboligen hører åbent terrasseareal. Desuden er der overdækket terrasse. Gynge. Udendørs bruser. Grill til rådighed. Parkering ved ferieboligen.
Soveforhold
Der er i alt 5 soveværelser. Sovepladserne fordeler sig på: 10 sovepladser i dobbeltsenge.1 soveplads i køjeseng. 1 soveplads i alkove. 4 af disse sovepladser befinder sig i et anneks og 1 af dem befinder sig i opholdsstuen.
Køkken
Køkkenet er udstyret med 1 køleskab. Der er 4 induktionskogeplader, varmluftovn samt opvaskemaskine.
Toilet og bad
Der er 2 badeværelser med bruseniche og 2 toiletter. Der er gulvvarme på 1 badeværelse.
Multimedier
I ferieboligen er der 1 Smart-TV. Ingen TV-kanaler - kun streaming. Der er trådløst internet til rådighed.
Værd at vide
Ingen udlejning til ungdomsgrupper, hvor alle er 15-25 år. Rygning ikke tilladt. Ved overtrædelse af forbuddet opkræves et gebyr på minimum DKK 3.000,-.
Vores gæsteanmeldelser Eksterne anmeldelser
Faciliteter
-
Adgang til ferieboligen
-
Nøgleboks med kode
-
-
Bemærk
-
Ingen håndværkere efter anmodning
-
Ingen ungdomsgrupper efter anmodning
-
Rygning er forbudt
-
-
Indretning
-
Antal voksne inkl. 4-11 år10
-
Bebygget areal120 m²
-
Brændeovn1
-
Byggeår2022
-
Feriebolig
-
Frysekapacitet (antal liter)60
-
Tørretumbler1
-
Varmepumpe
-
Varmepumpe luft til luft
-
Vaskemaskine1
-
-
Køkken
-
Antal induktionskogeplader4
-
Køleskab1
-
Opvaskemaskine1
-
Varmluftovn1
-
-
Multimedier
-
Antal tv'er1
-
Download1000
-
Ingen tv-kanaler - kun streaming
-
Smart-Tv1
-
Trådløst internet
-
Upload1000
-
-
Soveforhold
-
Alkove (antal sovepladser)1
-
Anneks (antal sovepladser)
-
Antal soveværelser5
-
Dobbeltseng (antal sovepladser)10
-
Køjeseng (antal sovepladser)1
-
Soveplads ikke i soveværelset
-
-
Toilet og bad
-
Antal badeværelser2
-
Antal toiletter2
-
Brusekabine
-
Gulvvarme1
-
-
Udenfor
-
Butik400 m
-
Grill1
-
gynge
-
Hav500 m
-
Natursted
-
Overdækket terrasse
-
Parkeringsplads ved huset
-
Størrelse af grunden2500 m²
-
Terrasse
-
Udendørs bruser
-
Miniferie
Der er begrænset mulighed for miniferie hele året, typisk uden for højsæsonen.
Priser og kalender
Kalender
Varighed
Pris
Periode
- Ankomst
- Afrejse
- Varighed
- 1 uge
Personer
Op til 10 personer
Bemærk
Ankomst er ikke valgt.