Sommerhus ved Vesterhavet med unik havudsigt

Sommerhus - 6 personer - Storkedalen - Furreby - 9480 - Løkken

6 personer
Emne nr.: 122-LK1868
Hyggeligt sommerhus i Furreby med havudsigt og direkte adgang til stranden ved Vesterhavet.
  • Soverum 3
  • Badeværelser 1
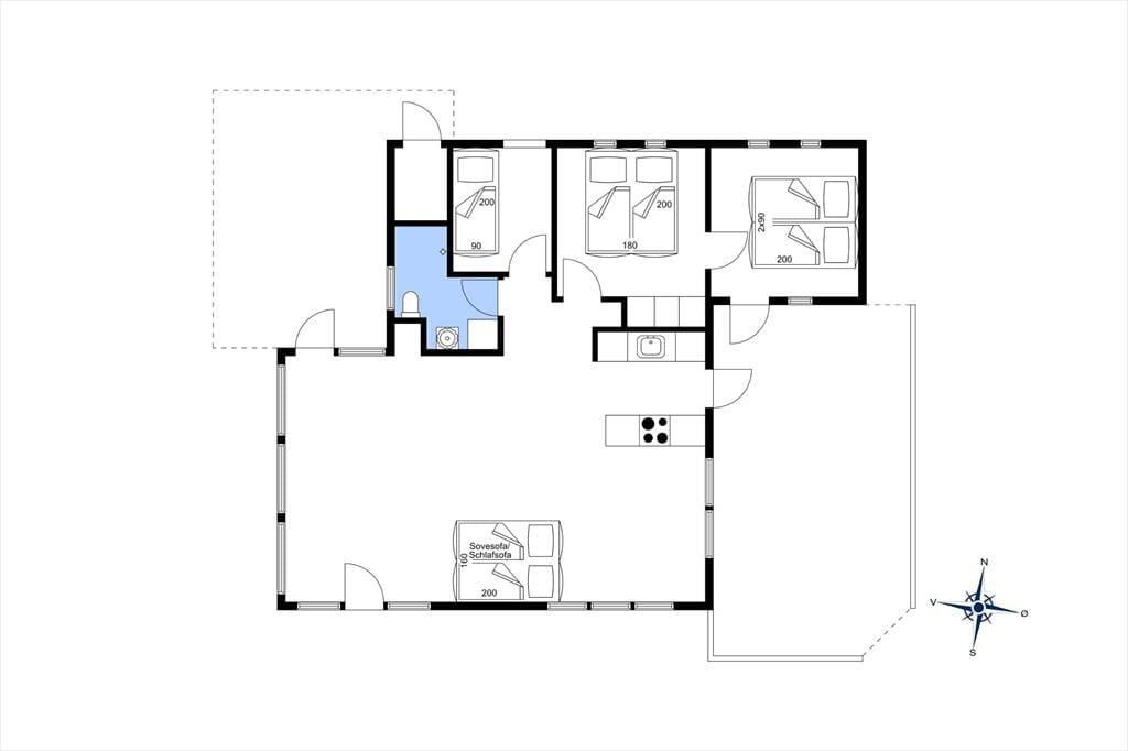
  • Boligareal 75 m²
  • Grundareal 1.300 m²
  • Husdyr Ikke tilladt
  • Tilbyder miniferie Ja
  • Afstand vand 25 m
  • Afstand indkøb 1.650 m
  • Highspeed internet Ja
  • Udsigt til vand Ja
  • Aircondition Ja
  • Vaskemaskine Ja
  • Tørretumbler Ja
  • Opvaskemaskine Ja
  • Ikkeryger Ja
  • Energivenligt Ja

Beskrivelse

Furreby lige nord for Løkken er et skønt sted at holde ferie – ikke mindst, når det foregår her i dette hyggelige sommerhus, der ligger i første parket til Vesterhavet.

Velkommen indenfor
Det er svært at bo meget nærmere stranden end dette, for det er kun en skrænt, der adskiller sommerhusgrunden fra stranden. Derfor får I en ret unik mulighed for at nyde synet af Vesterhavets blå bølger, når I hygger jer inden døre – og rent arkitektonisk er der naturligvis taget hensyn til havudsigten, for sommerhusets stue er udstyret med store vinduer fra gulv til loft. Når I ellers kan løsrive jer fra det smukke syn, er der en fladskærm med Apple TV i stuen, og hvis I kan lide at kokkerere, er det hyggeligt at stå og kræse om maden i det åbne køkken. Et badeværelse hører også med til planløsningen foruden tre soveværelser.

Nyd livet udenfor
Det føles virkelig eksklusivt at holde ferie lige ud til kysten. Hvis I tilbringer dagen på den vestvendte terrasse, danner Vesterhavet det smukkeste bagtæppe for driverlivet, og mellem hybenbuskene ved kanten af grunden står en bænk, som er det ideelle sted at opleve solnedgangen. Det er nu også dejligt at sidde på østsiden af sommerhuset, hvor en afskærmet terrasse er placeret – og hvis I slet ikke vil sidde, men løbe og lege, er der god plads til fysiske udfoldelser på grundens græsplæne.

Kom tæt på de lokale oplevelser
Giver solskinsvejret jer lyst til en badetur, behøver der ikke at være langt fra tanke til handling, når I bor lige ved stranden. Man behøver dog ikke at være badenymfe for at holde en strandferie her: Skrænterne tiltrækker også mange paraglidere, og de historieinteresserede kan se nærmere på de mange bunkers, der ligger spredt i sandet som minder fra 2. Verdenskrig. Furreby er et fredeligt sommerhusområde, og samtidig er der kort afstand til Løkkens livligere feriestemning og gode udvalg af spisesteder og butikker. Skal der virkelig være gang i den, kan I tage i Action House, hvor I kan køre gokart, spille lasergame og meget mere.

Husk, at du altid kan låne trækvogne, barnestole og barnesenge hos os i Løkken. Du kan hente dem direkte på bureauet og returnere dem til os igen, når din ferie er vel overstået.

Vores gæsteanmeldelser Eksterne anmeldelser

4,0
Baseret på 2 vurderinger
Sidste vurdering fra d. 27-07-2025
5
(1)
4
(0)
3
(1)
2
(0)
1
(0)
Kommentarer
1 vurdering har kommentar på dansk.
4 voksne 0 børn 0 husdyr 7 overnatninger 2025 juli
En fantastisk sommerhus med dejligt udsigt masser af ro omkring en

Faciliteter

  • Hus Info

    • Antal voksne
      6
    • Bruser
    • Byggeår
      1969
    • Grundareal
      1300 m²
    • Havudsigt
    • Husareal
      75 m²
    • Renoveringsår
      2008
    • Udsigt over landskab
    • WC
  • Afstande

    • Afstand indkøb / Helårsbutik
      1,7 km
    • Afstand strand / Sandstrand
      25 m
  • Energi / Opvarmning

    • 3 x Elvarme
    • Varmepumpe / Med køl
  • Hårde hvidevarer

    • Elkedel
    • Kaffemaskine
    • Kogeplader
    • Køleskab med frys
    • Mikroovn
    • Opvaskemaskine
    • Ovn
    • Tørretumbler
    • Vaskemaskine
  • Multimedier

    • Apple TV
    • Dansk tv
    • Gratis Wi-Fi - Over 20 Mbit
    • Norsk TV
    • Svensk TV
    • TV
    • Tysk TV
  • Udenfor

    • Grill
    • Havemøbler
    • Liggestole
      2
    • Parasol
    • Parkering på grunden
    • Terrasse
  • Diverse

    • Afmærkede vandreruter i nærheden
    • Dobbeltseng 1x180x200
    • Dobbeltseng 2x90x200
    • Enkeltseng 1x90x200
    • Gulvvarme
    • Sovesofa dobbelt
      1x160x200 cm
  • Regler

    • Husdyr ikke tilladt
    • Opladning af elbil ikke tilladt
    • Rygning ikke tilladt
  • Pris inklusiv

    • Slutrengøring inkl.

Miniferie

Der er mulighed for miniferie i udvalgte perioder af året.

Priser og kalender

Kalender

Ankomst
Næste
   Se om emnet er ledigt på den valgte dato
Ledig
Optaget
   Ankomst mulig
Varighed
Personer

Pris

Periode
Ankomst
Afrejse
Varighed
1 uge
Personer
Ingen personer er valgt

Bemærk

Ankomst er ikke valgt.
Der er ikke valgt personer.
Aftale- og lejebetingelser