Stor feriebolig med aktiviteter og vildmarkskar på Fur

Sommerhus - 22 personer - Nederby - 7884 - Fur

22 personer
Emne nr.: 121-32-6046
Oplev Fur Gamle Sparekasse med plads til mange, aktiviteter, vildmarkskar og nærhed til fjord og havn.
  • Soverum 6
  • Badeværelser 3
  • Boligareal 311 m²
  • Grundareal 1.730 m²
  • Husdyr Ikke tilladt
  • Tilbyder miniferie Ja
  • Afstand vand 500 m
  • Afstand indkøb 1 km
  • Spa Ja
  • Internet Ja
  • Parabol/kabel TV Ja
  • Aktivitetsrum Ja
  • Vaskemaskine Ja
  • Tørretumbler Ja
  • Opvaskemaskine Ja
  • Ikkeryger Ja
  • Energivenligt Ja

Beskrivelse

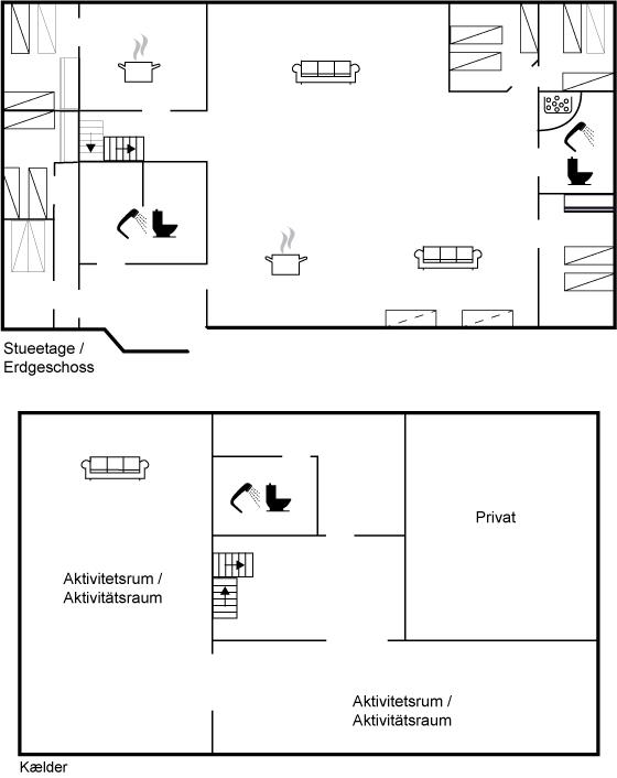
Fur Gamle Sparekasse Glæd dig til en skøn ferie i dette herlige sommerhus på Fur. Den tidligere Sparekasse er ideelt til dejlige feriedage for flere generationer eller familier. Ferieboligen er beliggende på en 1730 m2 stor grund og huset er på 311 m2, samt kælder/aktivitetsrum på 120 m2. Der er 500 m til fjorden og 1000 m til havnen, hvor der er en Dagli’Brugs og en kro, samt andre små butikker. Til ferieboligen hører åben og overdækket terrasse med vildmarkskar. Til børnene er der gynge, sandkasse, legetårn, rutsjebane og fodboldbane. Der er bålsted og kulgrill til rådighed. Parkering ved ferieboligen og 50m til en ladestander. Sommerhuset er ideelt til 22 personer samt 2 børn op til 3 år. Det er ikke tilladt at medbringe husdyr. Ferieboligen er udstyret med energibesparende luft til luft varmepumpe, der er vaskemaskine og tørretumbler samt frysekapacitet på 100 liter. Der er i alt 6 soveværelser. Der er sovepladser i dobbeltseng, 14 sovepladser i enkeltsenge, 6 sovepladser i køjesenge. Der er desuden 2 sovepladser på sovesofaerne i stuen. Til de små er der 2 stk. barnestole og 2 barnesenge. Sovepladserne fordeler sig på følgende måde: Soveværelse 1: 2 enkeltsenge, 1 køjeseng, 1 barneseng Soveværelse 2: 3 enkeltsenge Soveværelse 3: 3 enkeltsenge Soveværelse 4: 3 enkeltsenge, 1 køjeseng Soveværelse 5: 3 enkeltsenge, 1 køjeseng Soveværelse 6: 1 dobbeltseng, 1 barneseng I aktivitetsrummet er der følgende udstyr: Poolbord, dart, bordfodbold. I bygningen med forbindelse til vildmarkskar er der bordtennis. Der er 2 køkkener udstyret med 1 køleskab hver. Der er 4 elkogeplader. Der er 4 induktionskogeplader. 2 varmluftovne, mikrobølgeovn samt 2 opvaskemaskiner. Der er 3 badeværelser, alle med bruseniche og toilet. På det ene badeværelse er der et spabad. Der er gulvvarme på 2 af badeværelserne. I ferieboligen findes 2 Smart-TV, 1 Chromecast, radio og Playstation4. Der er mindst 4 danske, 1-3 svenske, 1-3 norske og 1-3 tyske kanaler. Der er trådløst internet til rådighed.



Værd at vide
Ingen udlejning til ungdomsgrupper, hvor alle er 15-25 år. Rygning ikke tilladt. Ved overtrædelse af forbuddet opkræves et gebyr på minimum DKK 3.000,-.

Vores gæsteanmeldelser Eksterne anmeldelser

5,0
Baseret på 3 vurderinger
Sidste vurdering fra d. 13-07-2025
5
(3)
4
(0)
3
(0)
2
(0)
1
(0)
Kommentarer
2 vurderinger har kommentarer på dansk.
18 voksne 0 børn 0 husdyr 7 overnatninger 2025 juli
alt ok.
11 voksne 5 børn 0 husdyr 7 overnatninger 2025 april
Et meget dejligt hus med fint udstyr og meget velfungerende for en familie i alle aldersklasser
4,9
Generelt:
5,0
Service på stedet:
5,0
Værdi for pengene:
4,8
Beliggenhed:
5,0
2 eksterne anmeldelser
4,8
Generelt:
5
Service på stedet:
5
Værdi for pengene:
4
Beliggenhed:
5
5,0
Generelt:
5
Service på stedet:
5
Værdi for pengene:
5
Beliggenhed:
5
Generel:
Vi er en stor familie på 20 pers. og alle var enige om, det var et pragtfuldt hus, med plads til os alle, med masser af aktivitets muligheder

Faciliteter

  • Adgang til ferieboligen

    • Nøgleboks med kode
  • Aktivitetsrum

    • Aktivitetsrum
    • Bordfodbold
    • Bordtennis
    • Dart
    • Poolbord
  • Bemærk

    • Aktivitetshus
    • Ingen ungdomsgrupper efter anmodning
    • Rygning er forbudt
  • Indretning

    • Antal børn (0-3 år)
      2
    • Antal voksne inkl. 4-11 år
      22
    • Bebygget areal
      311 m²
    • Byggeår
      1979
    • Feriebolig
    • Frysekapacitet (antal liter)
      100
    • Højstol
      2
    • Renoveringsår
      2017
    • Tørretumbler
      1
    • Varmepumpe
    • Varmepumpe luft til luft
    • Vaskemaskine
      1
  • Køkken

    • Antal elektriske kogeplader
      4
    • Antal induktionskogeplader
      4
    • Køleskab
      2
    • Mikrobølgeovn
      1
    • Opvaskemaskine
      2
    • Varmluftovn
      2
  • Multimedier

    • > 3 danske kanaler
    • 0-3 norske kanaler
    • 0-3 svenske kanaler
    • 0-3 tyske kanaler
    • Antal tv'er
      2
    • Chromecast
      1
    • Download
      300
    • Playstation 4
    • Radio
    • Smart-Tv
      2
    • Trådløst internet
    • Upload
      300
  • Soveforhold

    • Antal soveværelser
      6
    • Barneseng
      2
    • Dobbeltseng (antal sovepladser)
      2
    • Enkeltseng (antal sovepladser)
      14
    • Køjeseng (antal sovepladser)
      6
    • Soveplads ikke i soveværelset
    • Sovesofa, enkelt (antal sovepladser)
      2
  • Spa

    • Hot tub
      8
    • Indendørs spabad (antal personer)
      1
  • Toilet og bad

    • Antal badeværelser
      3
    • Antal toiletter
      3
    • Brusekabine
    • Gulvvarme
      2
  • Udenfor

    • Anlagt have
    • Butik
      1 km
    • Bålplads
    • Fjord
      500 m
    • Glide
    • Golfbane
      15 km
    • Grill
      1
    • Legeplads
      1000
    • Legetårn
    • Overdækket terrasse
    • Parkeringsplads ved huset
    • Sandkasse
    • Størrelse af grunden
      1730 m²
    • Swing
    • Terrasse

Miniferie

Der er begrænset mulighed for miniferie hele året, typisk uden for højsæsonen.

Priser og kalender

Kalender

Ankomst
Næste
   Se om emnet er ledigt på den valgte dato
Ledig
Optaget
   Ankomst mulig
Varighed

Pris

Periode
Ankomst
Afrejse
Varighed
1 uge
Personer
Op til 22 personer

Bemærk

Ankomst er ikke valgt.
Aftale- og lejebetingelser