Alternative emner
Hyggeligt sommerhus med aktiviteter og vildmarksbad
Sommerhus - 14 personer - Fædammevej - 7884 - Fur
14 personer
Emne nr.: 121-32-6044
Hyggeligt stråtækt sommerhus på Fur med vildmarksbad, aktivitetsrum og stor naturgrund, perfekt til afslapning og leg.
- Soverum 5
- Badeværelser 6
- Boligareal 302 m²
- Grundareal 3.348 m²
- Husdyr 6
- Tilbyder miniferie Ja
- Afstand vand 800 m
- Afstand indkøb 4 km
- Internet Ja
- Parabol/kabel TV Ja
- Aktivitetsrum Ja
- Udsigt til vand Ja
- Vaskemaskine Ja
- Tørretumbler Ja
- Opvaskemaskine Ja
- Ikkeryger Ja
- Ladestander til elbil Ja
- Energivenligt Ja
Beskrivelse
Hyggeligt stråtækt sommerhus på Fur.
Ferieboligen er indrettet i en tidligere landejendom med lyse rum og moderne faciliteter. Her er alle muligheder for en sjov og afslappende ferie med aktivitetsrum, vildmarksbad, shelter, en have til leg og spil og en smuk natur omkring huset.
Indretning
Denne tidligere landejendom egner sig til 14 personer samt 3 børn op til 3 år. Ferieboligen er på 302 m², er i 2 plan, og er bygget i 1900. I 2009 gennemgik ferieboligen en renovering. Det er tilladt at medbringe 6 husdyr. Ferieboligen er udstyret med 1 energivenlig luft til luft varmepumpe og 1 energivenlig luft til vand varmepumpe. Ferieboligen har vaskemaskine. Tørretumbler. Frysekapacitet på 160 liter. Til de små er der 3 stk. barnestole. Puslebord.
Udenfor
Ferieboligen er beliggende på en 3348 m² stor naturgrund. Der er 800 m til fjorden. Nærmeste forretning er beliggende i en afstand af 4000 m. Til ferieboligen hører 150 m² terrasseareal. Desuden er der 8 m² overdækket terrasse. Der er redskabsrum. Gynge. Sandkasse. Bålsted. Shelter. Udendørs bruser. Grill til rådighed. Der er installeret stik til opladning af elbil. Type 2 stik. Med 11 kW ladeeffekt. Parkering ved ferieboligen.
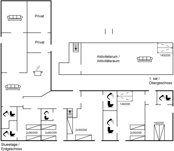
Aktivitetsrum
I aktivitetsrummet er der følgende udstyr: Billard. Poolbord. Dart. Bordfodbold.
Soveforhold
Der er i alt 5 soveværelser. Sovepladserne fordeler sig på: 2 sovepladser i dobbeltseng. 8 sovepladser i enkeltsenge. 6 sovepladser i sovesofa (enkelt). 2 af disse sovepladser befinder sig i stuen og 2 i aktivitetsrummet. Derudover er der 3 stk. barnesenge.
Køkken
Køkkenet er udstyret med 1 køleskab. Der er 5 keramiske kogeplader, varmluftovn, mikrobølgeovn samt opvaskemaskine.
Toilet og bad
Der er 6 badeværelser med bruseniche og 6 toiletter. Der er gulvvarme på 6 badeværelser.
Spa
Der er mulighed for afslapning i det udendørs vildmarkskar til 6 personer.
Multimedier
I ferieboligen findes 7 TV, hvoraf de 5 er Smart-TV. 7 Chromecasts. Radio. Der er mindst 4 danske kanaler. Mindst 4 tyske kanaler. Der er trådløst internet til rådighed.
Værd at vide
Ingen udlejning til ungdomsgrupper, hvor alle er 15-25 år. Rygning ikke tilladt. Ved overtrædelse af forbuddet opkræves et gebyr på minimum DKK 3.000,-.
Indretning
Denne tidligere landejendom egner sig til 14 personer samt 3 børn op til 3 år. Ferieboligen er på 302 m², er i 2 plan, og er bygget i 1900. I 2009 gennemgik ferieboligen en renovering. Det er tilladt at medbringe 6 husdyr. Ferieboligen er udstyret med 1 energivenlig luft til luft varmepumpe og 1 energivenlig luft til vand varmepumpe. Ferieboligen har vaskemaskine. Tørretumbler. Frysekapacitet på 160 liter. Til de små er der 3 stk. barnestole. Puslebord.
Udenfor
Ferieboligen er beliggende på en 3348 m² stor naturgrund. Der er 800 m til fjorden. Nærmeste forretning er beliggende i en afstand af 4000 m. Til ferieboligen hører 150 m² terrasseareal. Desuden er der 8 m² overdækket terrasse. Der er redskabsrum. Gynge. Sandkasse. Bålsted. Shelter. Udendørs bruser. Grill til rådighed. Der er installeret stik til opladning af elbil. Type 2 stik. Med 11 kW ladeeffekt. Parkering ved ferieboligen.
Aktivitetsrum
I aktivitetsrummet er der følgende udstyr: Billard. Poolbord. Dart. Bordfodbold.
Soveforhold
Der er i alt 5 soveværelser. Sovepladserne fordeler sig på: 2 sovepladser i dobbeltseng. 8 sovepladser i enkeltsenge. 6 sovepladser i sovesofa (enkelt). 2 af disse sovepladser befinder sig i stuen og 2 i aktivitetsrummet. Derudover er der 3 stk. barnesenge.
Køkken
Køkkenet er udstyret med 1 køleskab. Der er 5 keramiske kogeplader, varmluftovn, mikrobølgeovn samt opvaskemaskine.
Toilet og bad
Der er 6 badeværelser med bruseniche og 6 toiletter. Der er gulvvarme på 6 badeværelser.
Spa
Der er mulighed for afslapning i det udendørs vildmarkskar til 6 personer.
Multimedier
I ferieboligen findes 7 TV, hvoraf de 5 er Smart-TV. 7 Chromecasts. Radio. Der er mindst 4 danske kanaler. Mindst 4 tyske kanaler. Der er trådløst internet til rådighed.
Værd at vide
Ingen udlejning til ungdomsgrupper, hvor alle er 15-25 år. Rygning ikke tilladt. Ved overtrædelse af forbuddet opkræves et gebyr på minimum DKK 3.000,-.
Vores gæsteanmeldelser Eksterne anmeldelser
Faciliteter
-
Adgang til ferieboligen
-
Nøgleboks med kode
-
-
Aktivitetsrum
-
Aktivitetsrum
-
Billard
-
Bordfodbold
-
Dart
-
Poolbord
-
-
Bemærk
-
Aktivitetshus
-
Ingen håndværkere efter anmodning
-
Ingen ungdomsgrupper efter anmodning
-
Rygning er forbudt
-
-
Indretning
-
2 niveauer
-
Antal børn (0-3 år)3
-
Antal voksne inkl. 4-11 år14
-
Bebygget areal302 m²
-
Byggeår1900
-
Frysekapacitet (antal liter)160
-
Husdyr6
-
Højstol3
-
Puslebord
-
Renovering2009
-
Tidligere gård
-
Tørretumbler1
-
Varmepumpe
-
Varmepumpe luft til luft
-
Varmepumpe luft til vand
-
Vaskemaskine1
-
-
Køkken
-
Antal keramiske kogeplader5
-
Køleskab1
-
Mikrobølgeovn1
-
Opvaskemaskine1
-
Varmluftovn1
-
-
Multimedier
-
> 3 danske kanaler
-
> 3 tyske kanaler
-
Antal tv'er7
-
Chromecast7
-
Download200
-
Radio
-
Smart-Tv5
-
Trådløst internet
-
Upload200
-
-
Soveforhold
-
Antal soveværelser5
-
Barneseng3
-
Dobbeltseng (antal sovepladser)2
-
Enkeltseng (antal sovepladser)8
-
Soveplads ikke i soveværelset
-
Sovesofa, enkelt (antal sovepladser)6
-
-
Spa
-
Hot tub6
-
-
Toilet og bad
-
Antal badeværelser6
-
Antal toiletter6
-
Brusekabine
-
Gulvvarme6
-
-
Udenfor
-
Butik4 km
-
Bålplads
-
Elbil hjemmeoplader
-
Fjord800 m
-
Grill1
-
gynge
-
KW udgangseffekt11
-
Ladestik type 2
-
Natursted
-
Overdækket terrasse8 m²
-
Parkeringsplads ved huset
-
Redskabsskur
-
Sandkasse
-
Shelter1
-
Størrelse af grunden3348 m²
-
Terrasse150 m²
-
Udendørs bruser
-
-
Udsigt
-
Udsigt over indløbet fra pladsen
-
Miniferie
Der er begrænset mulighed for miniferie hele året, typisk uden for højsæsonen.
Priser og kalender
Kalender
Varighed
Pris
Periode
- Ankomst
- Afrejse
- Varighed
- 1 uge
Personer
Op til 14 personer
Bemærk
Ankomst er ikke valgt.