Hyggelig gård med festsal og naturudsigt

Hytte - 18 personer - Fur Kirkevej - 7884 - Fur

18 personer
Emne nr.: 121-32-6011
Hyggelig, gammel gård med festsal og smuk natur tæt på fjorden.
  • Soverum 8
  • Badeværelser 3
  • Boligareal 365 m²
  • Grundareal 17.000 m²
  • Husdyr 1
  • Tilbyder miniferie Ja
  • Afstand vand 100 m
  • Afstand indkøb 500 m
  • Internet Ja
  • Parabol/kabel TV Ja
  • Brændeovn Ja
  • Udsigt til vand Ja
  • Vaskemaskine Ja
  • Tørretumbler Ja
  • Opvaskemaskine Ja
  • Ikkeryger Ja

Beskrivelse

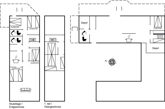
Hyggelig, gammel gård i to etager med flot beliggenhed. Til gården hører en staldbygning, som er indrettet med en stor stue, der kan benyttes som festsal med plads til ca. 40 spisende gæster. Der er et køkken i hvert hus.

Indretning
Sommerhuset egner sig til 18 personer samt 1 barn op til 3 år. Ferieboligen er på 365 m² og er bygget i 1920. Ferieboligen er løbende renoveret. Det er tilladt at medbringe 1 husdyr. Ferieboligen har vaskemaskine. Tørretumbler. Frysekapacitet på 100 liter. Der er desuden brændeovn. Til de små er der 2 stk. barnestole.

Udenfor
Ferieboligen er beliggende på en 17000 m² stor naturgrund. Der er 100 m til fjorden. Nærmeste forretning er beliggende i en afstand af 500 m. Til ferieboligen hører 130 m² terrasseareal. Desuden er der 10 m² overdækket terrasse. Der er redskabsrum. Gynge. Discgolf. Der er 2 grill (til kul) til rådighed. Parkering ved ferieboligen.

Aktivitetsrum
Pool-/billardbord. Dart. Bordfodbold.

Soveforhold
Der er i alt 8 soveværelser. Sovepladserne fordeler sig på: 10 sovepladser i dobbeltsenge. 7 sovepladser i enkeltsenge. 2 sovepladser i køjeseng. Derudover er der 1 stk. barneseng.

Køkken
Køkkenet er udstyret med 2 køleskabe. Der er 8 keramiske kogeplader, 2 varmluftovne, mikrobølgeovn samt 2 opvaskemaskiner.

Toilet og bad
Der er 3 badeværelser med bruseniche og 3 toiletter. Der er gulvvarme på 3 badeværelser.

Multimedier
I ferieboligen er der 1 TV. DVD-afspiller. Video. Radio. Stereoanlæg. CD-afspiller. Der er mindst 4 danske kanaler. 1-3 svenske kanaler. 1-3 norske kanaler. Mindst 4 tyske kanaler. Der er trådløst internet til rådighed.

Værd at vide
Ingen udlejning til ungdomsgrupper, hvor alle er 15-25 år. Rygning ikke tilladt. Ved overtrædelse af forbuddet opkræves et gebyr på minimum DKK 3.000,-.

Vores gæsteanmeldelser Eksterne anmeldelser

4,7
Baseret på 27 vurderinger
Sidste vurdering fra d. 04-11-2025
5
(20)
4
(7)
3
(0)
2
(0)
1
(0)
Kommentarer
7 vurderinger har kommentarer på dansk.
12 voksne 0 børn 0 husdyr 3 overnatninger 2025 oktober
Eneste lille minus. Skuffer i køkkenet trænger til oprydning og sortering. Nogle glas trænger til udskiftning og der mangler vinglas
12 voksne 0 børn 0 husdyr 3 overnatninger 2025 august
God plads. 2 store badeværelser og et mindre.
18 voksne 0 børn 1 husdyr 7 overnatninger 2025 april
Dejligt stort opholdsrum. Køkkenet velassorteret.
4,7
Generelt:
4,6
Service på stedet:
4,6
Værdi for pengene:
4,6
Beliggenhed:
4,8
6 eksterne anmeldelser
3,5
Generelt:
3
Service på stedet:
3
Værdi for pengene:
5
Beliggenhed:
3
5,0
Generelt:
5
Service på stedet:
5
Værdi for pengene:
5
Beliggenhed:
5
4,0
Generelt:
4
Service på stedet:
4
Værdi for pengene:
3
Beliggenhed:
5
5,0
Generelt:
5
Service på stedet:
5
Værdi for pengene:
5
Beliggenhed:
5
5,0
Generelt:
5
Service på stedet:
5
Værdi for pengene:
5
Beliggenhed:
5
Generel:
Det er et rigtig skønt sted og holde ferie, tæt på vandet
4,8
Generelt:
5
Service på stedet:
5
Værdi for pengene:
4
Beliggenhed:
5

Faciliteter

  • Adgang til ferieboligen

    • Nøgleboks med kode
  • Aktivitetsrum

    • Bordfodbold
    • Dart
    • Poolbord
  • Bemærk

    • Ingen ungdomsgrupper efter anmodning
    • Rygning er forbudt
  • Indretning

    • Antal børn (0-3 år)
      1
    • Antal voksne inkl. 4-11 år
      18
    • Bebygget areal
      365 m²
    • Brændeovn
      1
    • Byggeår
      1920
    • Feriebolig
    • Frysekapacitet (antal liter)
      100
    • Husdyr
      1
    • Højstol
      2
    • Tørretumbler
      1
    • Vaskemaskine
      1
  • Køkken

    • Antal keramiske kogeplader
      8
    • Køleskab
      2
    • Mikrobølgeovn
      1
    • Opvaskemaskine
      2
    • Varmluftovn
      2
  • Multimedier

    • > 3 danske kanaler
    • > 3 tyske kanaler
    • 0-3 norske kanaler
    • 0-3 svenske kanaler
    • Antal tv'er
      1
    • CD afspiller
    • Download
      50
    • DVD
      1
    • Radio
    • Stereo sæt
    • Trådløst internet
    • Upload
      50
    • Video
  • Soveforhold

    • Antal soveværelser
      8
    • Barneseng
      1
    • Dobbeltseng
      10
    • Enkeltseng
      7
    • Køjeseng
      2
    • Sengeloft
  • Toilet og bad

    • Antal badeværelser
      3
    • Antal toiletter
      3
    • Brusekabine
    • Gulvvarme
      3
  • Udenfor

    • Butik
      500 m
    • Fjord
      100 m
    • Grill
      2
    • Natursted
    • Overdækket terrasse
      10 m²
    • Parkeringsplads ved huset
    • Redskabsskur
    • Størrelse af grunden
      17000 m²
    • Swing
    • Terrasse
      130 m²
  • Udsigt

    • Udsigt over indløbet fra pladsen
    • Udsigt til fjorden fra sommerhuset

Miniferie

Der er begrænset mulighed for miniferie hele året, typisk uden for højsæsonen.

Priser og kalender

Kalender

Ankomst
Næste
   Se om emnet er ledigt på den valgte dato
Ledig
Optaget
   Ankomst mulig
Varighed

Pris

Periode
Ankomst
Afrejse
Varighed
1 uge
Personer
Op til 18 personer

Bemærk

Ankomst er ikke valgt.
Aftale- og lejebetingelser