Skudehavnshus med udsigt og lukket terrasse

Sommerhus - 7 personer - Skudehavnen - 8400 - Ebeltoft

7 personer
Emne nr.: 090-54802
Charmerende skudehavnshus i Ebeltoft med panoramaudsigt og lukket terrasse ved lystbådehavnen.
  • Soverum 2
  • Badeværelser 1
  • Boligareal 76 m²
  • Husdyr 2
  • Tilbyder miniferie Ja
  • Afstand vand 20 m
  • Afstand indkøb 830 m
  • Highspeed internet Ja
  • Brændeovn Ja
  • Udsigt til vand Ja
  • Opvaskemaskine Ja
  • Ikkeryger Ja

Beskrivelse

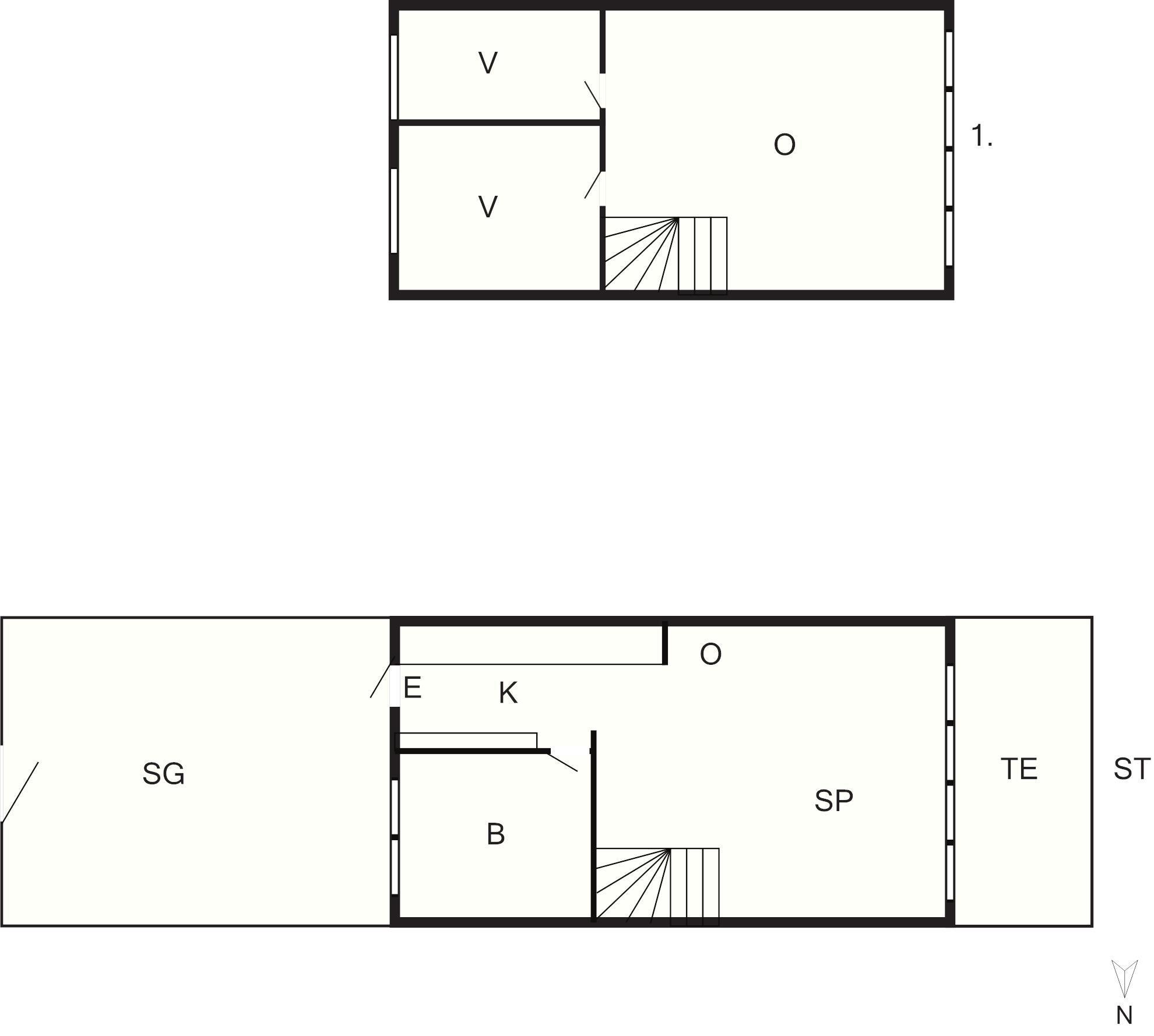
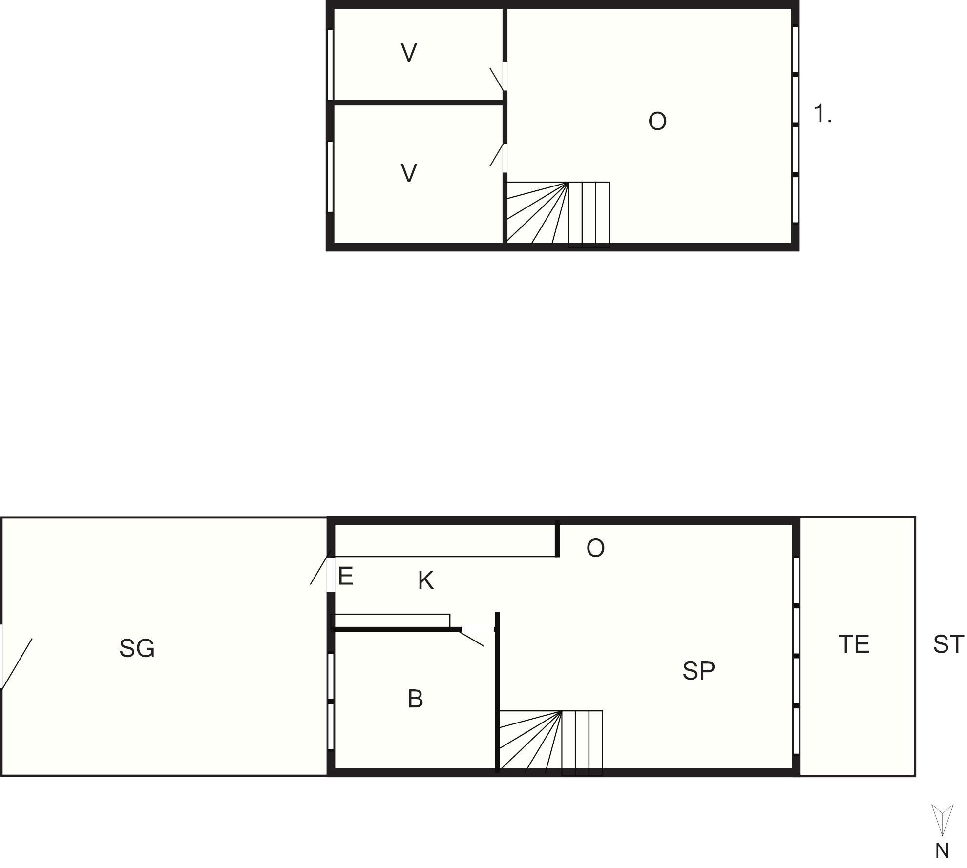
Skudehavnshus i den karakteristiske røde farve og den unikke beliggenhed lige på havnen i Ebeltoft. 2-etagers sommerhus med åbent køkken i forbindelse med spisestuen og med direkte udgang til terrassen, hvor I kan nyde lystbådehavnens hyggelige stemning. Opholdsstue med mulighed for at hygge sig indendørs med evt. tv og leg.

På terrassen kan I følge livet på og omkring havnen. Der er et studie for sig selv, så tag jer god tid til at sidde der i fred og ro og følge livet omkring jer. Beliggenhed åbner også mange muligheder for at nyde områdets mange spisemuligheder og bystemningen lige rundt om hjørnet. Udlejes ikke til ungdoms- og håndværkergrupper.

1 Opholdsstue: (1O), brændeovn, Chromecast, tv
2 Soveværelser: (1DS)+(2K)
1 Hems: (2O)
Køkken: El-komfur, køle-frys, kaffemaskine, opvaskemask.
Bad/wc: Wc, håndvask, bruser
1 Udeareal: Havemøbler, kulgrill, Lukket terasse, Terrasse
Og: El-varme, Lejlighed 38 m2, panoramaudsigt over vand

Nøgleinformation
  • Nøglen til ferieboligen er til rådighed fra kl. 16:00 på indflytningsdagen.
  • Nøglen udleveres ved huset.
  • Dette hus er udstyret med smart lock

Vores gæsteanmeldelser Eksterne anmeldelser

3,3
Baseret på 4 vurderinger
Sidste vurdering fra d. 23-06-2024
5
(0)
4
(1)
3
(3)
2
(0)
1
(0)
Kommentarer
1 vurdering har kommentar på dansk.
2 voksne 0 børn 1 husdyr 3 overnatninger 2024 juni
Køjesenge ikke egnet til voksne - meget smalle !
3,9
Møblering:
3,7
Anbefalelsesværdig:
4,2
Generelt med børn:
4,2
Generelt uden børn:
3,8
Eksterne anmeldelser
Ingen detaljerede eksterne anmeldelser

Faciliteter

  • Afstand

    • Bank
      1,1 km
    • Bus
      1,1 km
    • Golf
      1,1 km
    • Indkøb
      830 m
    • Kyst
      20 m
    • Lufthavn
      13,5 km
    • Posthus
      915 m
    • Restaurant
      350 m
    • Strand
      340 m
    • Ved
      500 m
  • Bad

    • Bruser
    • Håndvask
    • WC
  • Diverse

    • Antal badeværelser
      1
    • Antal soveværelser
      2
    • Boligareal
      76 m²
    • Byggeår
      1978
    • Husdyr tilladt
    • Højhastighedsinternet
    • Ikke ryger
    • Internet
    • Lukket terrasse
    • Renoveret
      2023
    • Udsigt over vand
  • Indendørs

    • Chromecast
    • Pejs / brændeovn
    • TV
  • Køkken

    • El-komfur
    • Kaffemaskine
    • Køle-frys
    • Opvaskemask.
  • Udendørs

    • Bademuligheder fra bro
    • Bademuligheder fra sandstrand
    • Havemøbler
    • Lukket terasse
    • Terrasse
    • Trækulgrill

Miniferie

Der er begrænset mulighed for miniferie hele året, typisk uden for højsæsonen.

Priser og kalender

Kalender

Ankomst
Næste
  • maj 2026
    mationtofr
    18123
    1945678910
    2011121314151617
    2118192021222324
    2225262728293031
    23
  • juni 2026
    mationtofr
    231234567
    24891011121314
    2515161718192021
    2622232425262728
    272930
    28
   Se om emnet er ledigt på den valgte dato
Ledig
Optaget
   Ankomst mulig
Varighed

Pris

Periode
Ankomst
Afrejse
Varighed
1 uge
Personer
Op til 7 personer

Bemærk

Ankomst er ikke valgt.
Aftale- og lejebetingelser