Stilfuldt feriehus med panoramaudsigt ved Ebeltoft

Sommerhus - 6 personer - Rolfvej - Dråby - 8400 - Ebeltoft

6 personer
Emne nr.: 048-84255
Nyd panoramaudsigt og fred i dette stilfulde feriehus ved Ebeltoft med sauna og stor naturgrund.
  • Soverum 2
  • Badeværelser 1
  • Boligareal 124 m²
  • Grundareal 1.400 m²
  • Husdyr Ikke tilladt
  • Tilbyder miniferie Ja
  • Afstand vand 2 km
  • Afstand indkøb 2 km
  • Sauna Ja
  • Highspeed internet Ja
  • Udsigt til vand Ja
  • Indhegnet område Ja
  • Aircondition Ja
  • Vaskemaskine Ja
  • Opvaskemaskine Ja
  • Ikkeryger Ja
  • Energivenligt Ja

Beskrivelse

Velkommen indenfor

Kom indenfor i dette lyse og stilfulde feriehus som ligger højt og med panoramaudsigt over fjorden ved Ebeltoft. Her er plads til op til seks glade gæster. Huset er født i 2011, fordelt på to etager, og byder på behagelige to soveværelser, et hyggeligt køkken-alrum og en lys stue – med hygge og udsyn, der næsten gør naturen til en del af indretningen. Med alkove og badeværelse og infrarød sauna passer rammerne perfekt til både samvær og afslapning, mens varmepumpen sørger for komfort hele vejen rundt.

Nyd livet udenfor

Tag ud i haven, hvor jeres lille feriehimmel folder sig ud på hele 1.400 m² naturgrund – grøn, rummelig og fuld af muligheder. Her kan børnene boltre sig, mens de voksne måske allerede har sat kaffen frem på terrassen. Det er nemt at lade skuldrene falde, når duften af grill og lyden af natur er dine nærmeste naboer. Er vejret til det, kan du måske endda finde en plet i solen til læsning eller bare stille udfoldet nydelse. Alt er klar til en rolig stund under åben himmel – og så er der blot 2 km til både strand og lokale faciliteter, hvis spontane eventyr trækker.

Kom tæt på de lokale oplevelser

Med base her får I både fred og nærhed til alt det bedste på Djursland. Fra huset er der omkring 2 km til stranden, kysten, indkøb og restauranter – og kun 3,5 km til nærmeste svømmehal. Vil I have lidt mere eventyr, byder Djursland på charmerende Ebeltoft med brostensgader, glasværk og hygge, grønne vandreture i Mols Bjerge eller spændende oplevelser i forlystelsesparker og museer. Så sæt kurs mod både storbystemning i Aarhus, dyreliv og sjove familieudflugter – ferien her er alt andet end rutine.




Rumindretning

  • Soveværelse
    • Dobbeltseng - 160x200
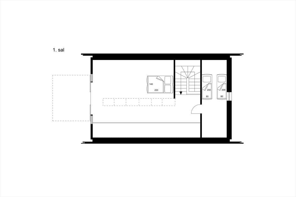
  • Soveværelse
    • Enkelt seng - 80x200
    • Enkelt seng - 80x200
  • Alkove
    • Dobbeltseng - 140x200

Faciliteter

  • Hus Info

    • Antal etager i lejemålet
      2
    • Antal voksne
      6
    • Bruser
    • Byggeår
      2011
    • Grundareal / Naturgrund
      1400 m²
    • Havudsigt
    • Husareal
      124 m²
    • Sauna
    • WC
  • Afstande

    • Afstand golfbane
      2 km
    • Afstand hav
      2 km
    • Afstand indkøb / Helårsbutik
      2 km
    • Afstand kyst
      2 km
    • Afstand restaurant
      2 km
    • Afstand strand / Sandstrand
      2 km
    • Afstand svømmehal
      3,5 km
  • Energi / Opvarmning

    • Varmepumpe / Med køl
      2 stk
  • Hårde hvidevarer

    • Elkedel
    • Emhætte
    • Kaffemaskine
    • Komfur
    • Køleskab med frys
      60 liters fryser
    • Mikroovn
    • Opvaskemaskine
    • Ovn
    • Strygebræt
    • Strygejern
    • Vaskemaskine
  • Multimedier

    • Chromecast
    • Dansk tv
    • Gratis Wi-Fi - Over 100 Mbit
    • TV
      Du ser
    • Tysk TV
  • Ekstra

    • Barnestol
    • Golfferie
  • Udenfor

    • Grill
      Trækulgrill
    • Havemøbler
    • Liggestole
    • Lukket have/grund
    • Overdækket terrasse
      10 m²
    • Parasol
      2
    • Parkering på grunden
    • Åben terrasse
  • Diverse

    • 4 x Gulvvarme
    • Afmærkede vandreruter i nærheden
  • Regler

    • Husdyr ikke tilladt
    • Opladning af elbil ikke tilladt
    • Rygning ikke tilladt
  • Pris inklusiv

    • Slutrengøring inkl.

Miniferie

Der er begrænset mulighed for miniferie hele året, typisk uden for højsæsonen.

Priser og kalender

Kalender

Ankomst
Forrige Næste
  • juni 2026
    mationtofr
    231234567
    24891011121314
    2515161718192021
    2622232425262728
    272930
    28
  • juli 2026
    mationtofr
    2712345
    286789101112
    2913141516171819
    3020212223242526
    312728293031
    32
   Se om emnet er ledigt på den valgte dato
Ledig
Optaget
   Ankomst mulig
Varighed

Pris

Periode
Ankomst
Afrejse
Varighed
1 uge
Personer
Op til 6 personer

Bemærk

Ankomst er ikke valgt.
Aftale- og lejebetingelser