Hyggelig ferielejlighed tæt på strand og indkøb

Sommerhus - 6 personer - Fyrvej 26, 14 st - 6857 - Blåvand

6 personer
Emne nr.: 328-274231
Hyggelig ferielejlighed i Blåvand med brændeovn, terrasse og kort afstand til strand og indkøb.
  • Soverum 3
  • Badeværelser 1
  • Boligareal 61 m²
  • Husdyr Ikke tilladt
  • Tilbyder miniferie Nej
  • Afstand vand 500 m
  • Afstand indkøb 400 m
  • Highspeed internet Ja
  • Brændeovn Ja
  • Opvaskemaskine Ja
  • Ikkeryger Ja
  • Energivenligt Ja

Beskrivelse

Til en ferie for op til 6 personer er denne fine ferielejlighed på Fyrvej 26, 14 st i Blåvand et oplagt valg. I denne hyggelige ferielejlighed kan I samle vennegruppen eller familien til en skøn ferie tæt på havet. Fra ferielejligheden har I nemlig kun 500 meter til Vesterhavets brede strande og brusende bølger. Derudover er der kun 400 meter til den nærmeste indkøbsmulighed.

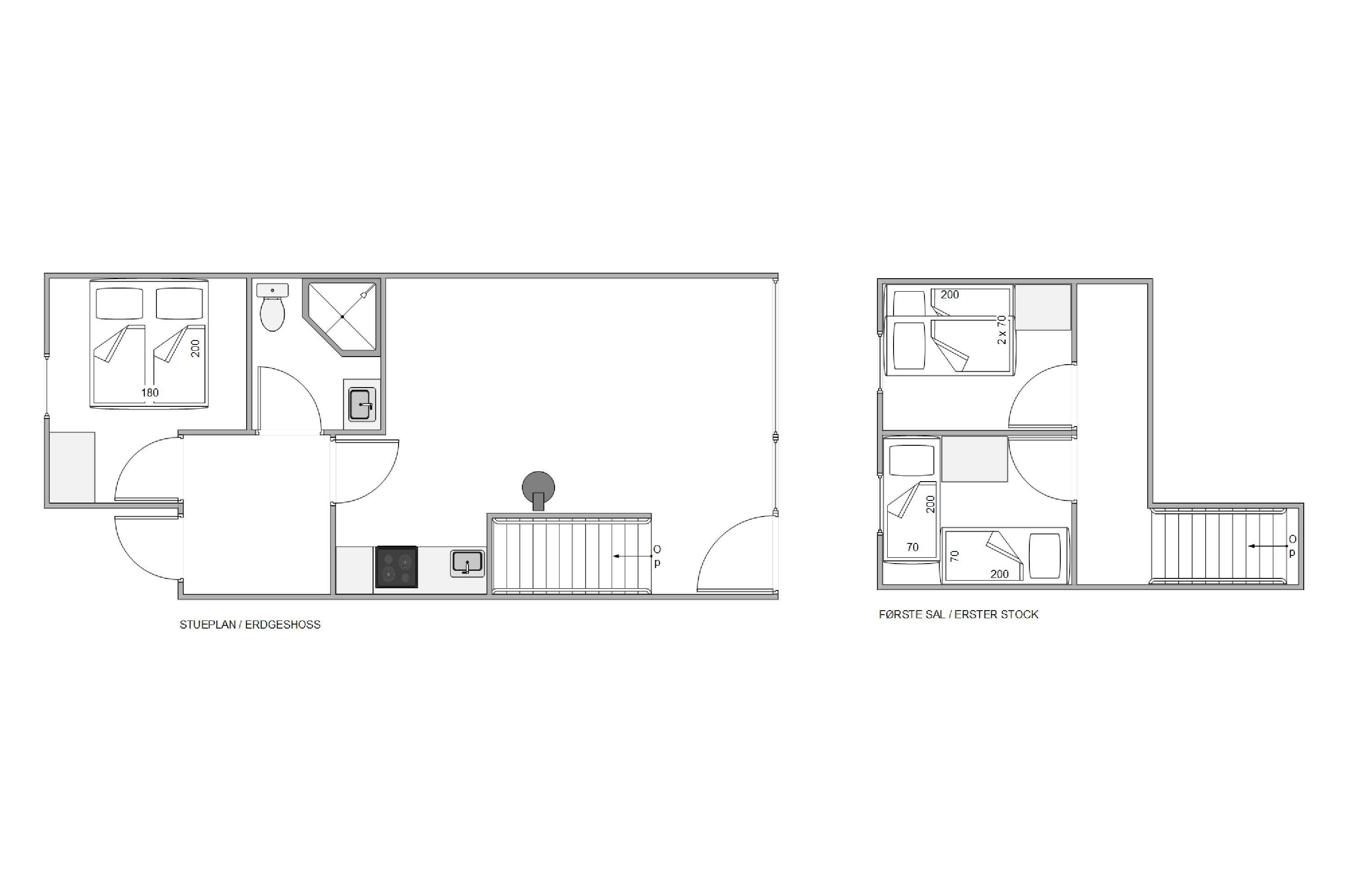
Lys indretning med brændeovn i 2 plan

Den 61 kvadratmeter store ferielejlighed byder på en lys indretning i 2 plan. I stueplan venter jer det hyggelige alrum, hvor køkken, stue og spiseplads forenes, og som kommer til at danne rammen om mange hyggelige feriestunder. I køkkenet har I desuden en opvaskemaskine, der klarer opvasken for jer efter madlavningen.

I alrummet venter jer en brændeovn, der med sin knitren og varme sætter prikken over i’et og fuldender den hyggelige feriestemning. Derudover er der en energivenlig varmepumpe i feriehuset, der sørger for, at I har et godt indeklima på ferien.

I stueplan finder I derudover badeværelset, der er udstyret med gulvvarme, samt et soveværelse, der er indrettet med en dobbeltseng. De resterende sovepladser finder I på førstesalen, hvor der er et soveværelse med etageseng og et soveværelse med 2 enkeltsenge.

Terrasse med havemøbler og grill – fælles legeplads til børnene

Fra ferielejlighedens alrum kan I træde ud på den åbne, delvist overdækkede terrasse. Her står der havemøbler klar til jer, som I kan sætte jer godt til rette i. Mens I slapper af i solen på terrassen, kan børnene lege på den fælles legeplads.

Som aftenen så småt begynder at nærme sig, kan I tænde op i grillen og tilberede en lækker middag, som I kan samles til på terrassen og nyde med et godt glas vin til.

Kort afstand til strand og indkøb

Ferielejligheden på Fyrvej 26, 14 st ligger på en skøn beliggenhed i Blåvand, og herfra har I altså hverken langt til strand eller indkøb. Til stranden er der kun 500 meter, og I kan derfor hurtigt gå til Vesterhavets smukke, brede sandstrande og brusende bølger, som er værd at besøge hele året rundt.

Jeres nærmeste indkøbsmulighed finder I desuden kun 400 meter fra jeres ferieadresse. Af indkøbsmuligheder byder Blåvand på både supermarkeder og specialbutikker. Derudover er der også flere skønne spisesteder til de dage, hvor I vil springe madlavningen over.

Vores gæsteanmeldelser Eksterne anmeldelser

4,0
Baseret på 1 vurdering
Vurderet d. 21-04-2025
5
(0)
4
(1)
3
(0)
2
(0)
1
(0)
Kommentarer
Ingen vurderinger har kommentarer.

Faciliteter

  • Opholdsrum

    • Gulv: Klinker
    • Radio
    • Brændeovn
    • Fladskærms-TV
      1
  • Soverum

    • Gulv: Tæppe
    • Dobbeltsenge
      1
    • Enkeltsenge
      2
    • Køjesenge
      1
    • Sovepladser
      6
    • Soverum
      3
    • 1. soverum/sengestørrelser
      2x90x200
    • 2. soverum/sengestørrelser
      90x200+80x190
    • 3. soverum/sengestørrelser
      2x90x200 køje
  • Køkken

    • Komfur: El m. ovn
    • Køleskab m. frostboks
    • Opvaskemaskine
    • Mikroovn
  • Baderum

    • Gulvvarme bad
    • Antal badeværelser
      1
  • Objektinfo - Inde

    • Areal: Hus m²
      61
    • Byggeår
      1986
    • Ikke ryger hus
    • Personantal
      6
    • Renoveret
      2019
    • Danske TV-kanaler (Betalingskanaler)
    • Tyske tv-programmer
    • Varme: Elvarme
    • Varme: Varmepumpe luft til luft
    • Gratis fiber Internet
    • Jubilæumsmønt er udleveret
  • Objektinfo - ude

    • Afstand i meter: Hav
      500 m
    • Afstand i meter: Indkøb
      400 m
    • Sandkasse
    • Havemøbler
    • Parasol
    • Terrasse: åben
    • Terrasse: Overdækket
    • Plænegrund
    • Affald hentes:
      Fælles
    • Affald: Helårstømning
    • Gasgrill
  • Koncepter

    • Varme: 24 timer f. ankomst
    • Skiftedag: Søndag
    • Ferielejlighed
  • Miniferie

    • Ja, tak - tillad miniferie

Priser og kalender

Kalender

Ankomst
Forrige Næste
  • april 2026
    mationtofr
    1412345
    156789101112
    1613141516171819
    1720212223242526
    1827282930
    19
  • maj 2026
    mationtofr
    18123
    1945678910
    2011121314151617
    2118192021222324
    2225262728293031
    23
   Se om emnet er ledigt på den valgte dato
Ledig
Optaget
   Ankomst mulig
Varighed

Pris

Periode
Ankomst
Afrejse
Varighed
1 uge
Personer
Op til 6 personer

Bemærk

Ankomst er ikke valgt.
Aftale- og lejebetingelser