Hyggeligt feriehus med sauna nær stranden

Sommerhus - 7 personer - Arvidvej - Bjerregård - 6960 - Hvide Sande

7 personer
Emne nr.: 328-878909
Hyggeligt feriehus i Bjerregård med lukket terrasse, sauna og tæt på stranden – perfekt til familieferien.
  • Soverum 4
  • Badeværelser 1
  • Boligareal 93 m²
  • Grundareal 1.200 m²
  • Husdyr 2
  • Tilbyder miniferie Nej
  • Afstand vand 500 m
  • Afstand indkøb 1.500 m
  • Sauna Ja
  • Highspeed internet Ja
  • Parabol/kabel TV Ja
  • Brændeovn Ja
  • Vaskemaskine Ja
  • Opvaskemaskine Ja
  • Ikkeryger Ja
  • Energivenligt Ja

Beskrivelse

Her har I muligheden for at holde ferie i et virkeligt hyggeligt feriehus på Arvidvej 144 i Bjerregård. Sommerhuset har en fin delvist overdækket og helt lukket terrasse, hvilket er helt perfekt, hvis du har småbørn eller din firbenede ven med på ferien. I feriehuset er der en hyggelig brændeovn, som sætter prikken over i'et til feriestemningen.

Feriehus med lukket terrasse

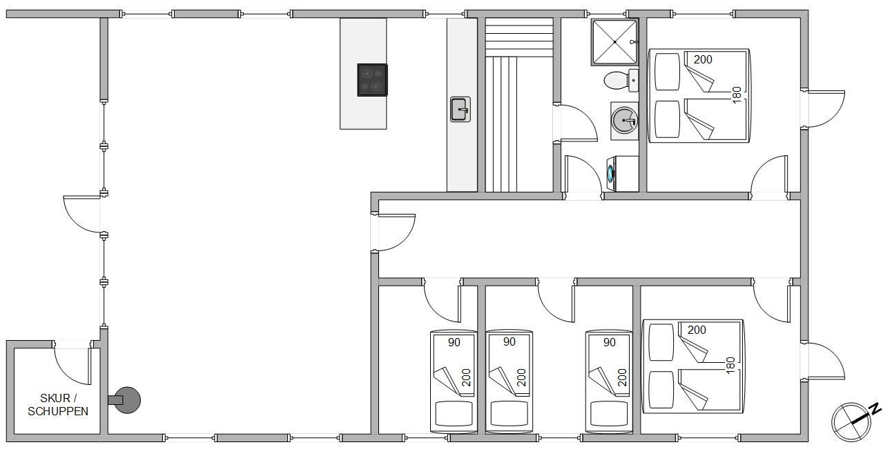
Dette hyggelige og løbende vedligeholdte feriehus, er perfekt til den store familie. Feriehuset har plads til 7 personer i 4 gode soveværelser med trælaminat, hvoraf 2 er indrettet med dobbeltsenge og terrassedøre. De sidste værelser er indrettet med enkeltsenge.

Her er badeværelse med gulvvarme, bruser og sauna. Og som et ekstra plus er der vaskemaskine i feriehuset, så I, hvis nødvendigt, kan vaske lidt tøj eller håndklæder i løbet af ferien.

Den hyggelige stue har pæne og komfortable møbler, brændeovn og står i åben forbindelse med køkkenet. Stuen har vinduespartier fra gulv til loft, som skaber et godt lysindfald i rummet. Desuden har sommerhuset en energibesparende varmepumpe, som I kan benytte jer af.

Fra stuen er der udgang til den delvist overdækkede og helt lukkede terrasse. Her er naturligvis havemøbler, liggestole og grill til rådighed, så I kan nyde den friske havluft fra terrassen. Børnene kan få tiden til at gå på naturgrunden, som både er udstyret med gyngestativ og sandkasse.

Feriehus med god beliggenhed på Arvidvej 144

På begge sider af Arvidvej findes store hedeområder, som er perfekte til lange vandreture. Dette feriehus ligger kun et par minutters gang fra heden og også i kort afstand af stranden, som ligger 500 meter herfra.

En lille køretur mod syd bringer jer til fuglereservatet Tipperne, som absolut er et besøg værd for alle natur- og fugleinteresserede. Det kan også anbefales at besøge havnebyen Hvide Sande eller badebyen Søndervig, hvor I kan finde et udvalg af butikker, restauranter, caféer - og vigtigst af alt, ishuse.

Faciliteter

  • Opholdsrum

    • DVD-afspiller
      1
    • Gulv: Trælaminat
    • Radio
    • Brændeovn
    • Fladskærms-TV
      1
  • Soverum

    • Gulv: Trælaminat
    • Dobbeltsenge
      2
    • Enkeltsenge
      3
    • Sovepladser
      7
    • Soverum
      4
    • 1. soverum/sengestørrelser
      90x200
    • 2. soverum/sengestørrelser
      2x90x200
    • 3. soverum/sengestørrelser
      180X200
    • 4. soverum/sengestørrelser
      180X200
  • Køkken

    • Komfur: El m. ovn
    • Køleskab
    • Opvaskemaskine
    • Mikroovn
    • Separat fryser /L
      70
  • Baderum

    • Sauna
    • Gulvvarme bad
    • Antal badeværelser
      1
  • Objektinfo - Inde

    • Areal: Hus m²
      93
    • Byggeår
      1984
    • Barneseng
      1
    • Barnestol
      1
    • Husdyr tilladt
    • Husdyr antal, max
      2
    • Ikke ryger hus
    • Personantal
      7
    • Renoveret
      2024
    • Tyske tv-programmer
    • Varme: Elvarme
    • Varme: Varmepumpe luft til luft
    • Vaskemaskine
    • Satellit (tyske kanaler samt et par danske)
    • Gratis fiber Internet
    • Jubilæumsmønt er udleveret
  • Objektinfo - ude

    • Afstand i meter: Hav
      500 m
    • Afstand i meter: Indkøb
      1,5 km
    • Grundens areal i m2
      1200
    • Gynge
    • Sandkasse
    • Grill
    • Havemøbler
    • Solvogne
    • Parasol
    • Terrasse: Lukket
    • Terrasse: Overdækket
    • Redskabsrum
    • Naturgrund
    • Affald hentes:
      Onsdag
    • Affald: Helårstømning
    • Skraldespand - Liter
      360
  • Koncepter

    • Skiftedag: Lørdag

Priser og kalender

Kalender

Ankomst
Forrige Næste
  • april 2026
    mationtofr
    1412345
    156789101112
    1613141516171819
    1720212223242526
    1827282930
    19
  • maj 2026
    mationtofr
    18123
    1945678910
    2011121314151617
    2118192021222324
    2225262728293031
    23
   Se om emnet er ledigt på den valgte dato
Ledig
Optaget
   Ankomst mulig
Varighed

Pris

Periode
Ankomst
Afrejse
Varighed
1 uge
Personer
Op til 7 personer

Bemærk

Ankomst er ikke valgt.
Aftale- og lejebetingelser