Luksussommerhus nær Vesterhavet med spa og sauna

Sommerhus - 10 personer - Bjerregårdsvej - Bjerregård - 6960 - Hvide Sande

10 personer
Emne nr.: 328-464752
Luksuriøst sommerhus ved Vesterhavet med aktivitetsrum, udespa, sauna og plads til hunde.
  • Soverum 4
  • Badeværelser 2
  • Boligareal 155 m²
  • Grundareal 1.202 m²
  • Husdyr 2
  • Tilbyder miniferie Nej
  • Afstand vand 200 m
  • Afstand indkøb 1.700 m
  • Sauna Ja
  • Highspeed internet Ja
  • Brændeovn Ja
  • Vaskemaskine Ja
  • Tørretumbler Ja
  • Opvaskemaskine Ja
  • Ikkeryger Ja
  • Energivenligt Ja

Beskrivelse

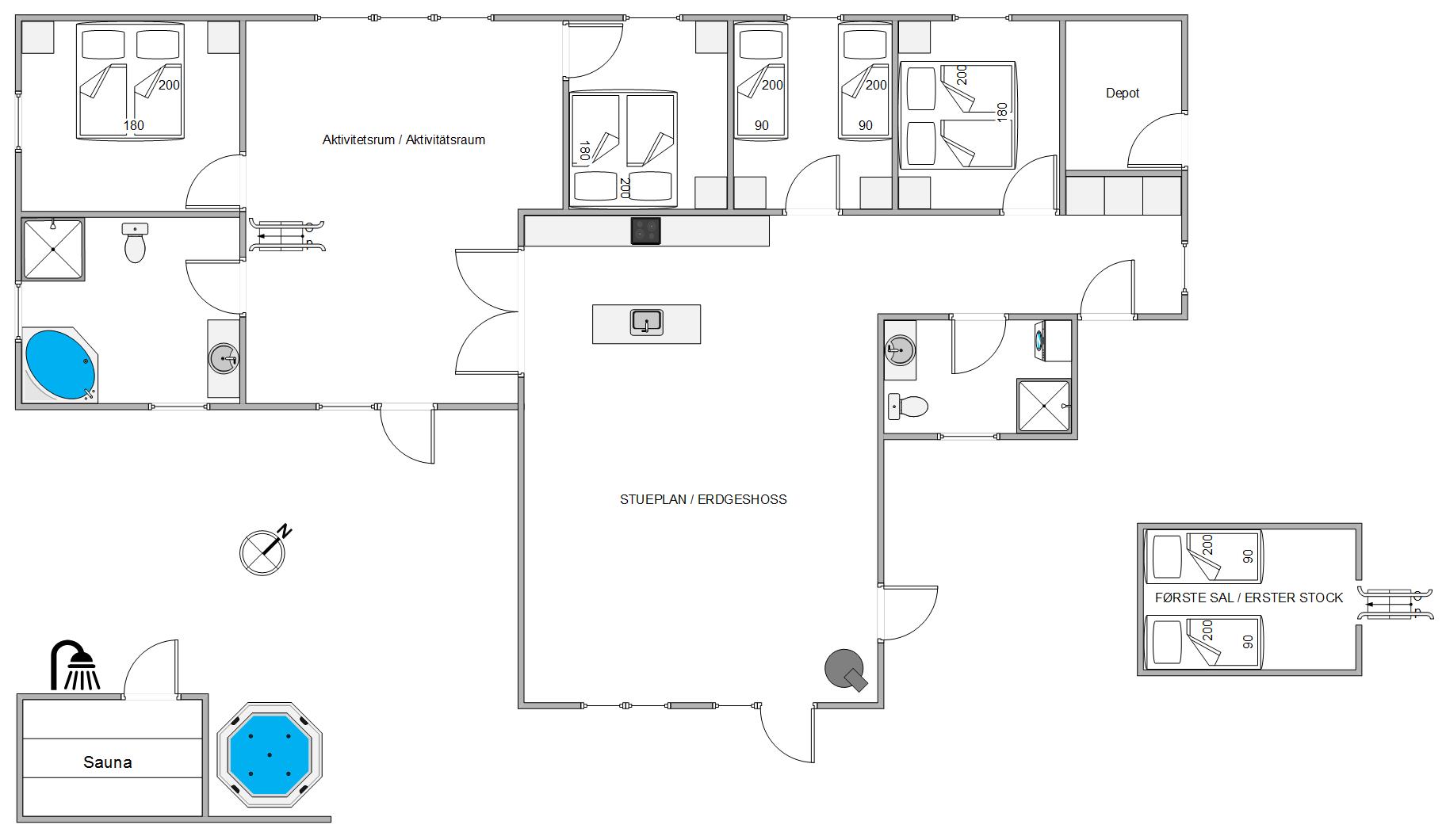
Blot 200 meter fra Vesterhavet ligger dette luksuriøse sommerhus på Bjerregårdsvej 391. Sommerhuset er opført i 2021, og indretningen rummer alt, hvad I har brug for til en skøn ferie. Her er aktivitetsrum med billard og bordtennis samt udendørs wellnessområde med udespa, udesauna og udebruser. 2 hunde er velkomne i sommerhuset.

Moderne indretning i varme farver på Bjerregårdsvej 391

Sommerhuset byder dig velkommen med moderne møbler i indbydende og varme farver. I midten af sommerhuset finder I den store opholdsstue, som ligger i åben forbindelse med køkkenet. Stuens sofahjørne indbyder til hyggelige stunder med familien, hvad enten det er til en filmaften eller et spil kort. Der er en Chromecast i feriehuset, som I kan benytte jer af.

På en kølig sommeraften kan I tænde op i brændeovnen, som spreder både varme og ekstra hyggelig feriestemning. Det naturlige lysindfald fra vinduespartiet og ovenlysvinduerne skaber en behagelig, lys atmosfære i hele rummet.

Sommerhusets sovepladser fordeler sig på 4 gode soveværelser samt en hems, som er et stort hit blandt børnene. Der er 3 komfortable dobbeltsenge, mens de resterende sovepladser er enkeltsenge.

Aktivitetsrum med billard og bordtennis

I forlængelse af køkkenet finder I det store aktivitetsrum, hvor hele familien kan få mange timer til at gå. Her er både billard og bordtennis, så der kan afholdes spændende turneringer. I aktivitetsrummet er der en energibesparende varmepumpe.

De 2 badeværelser er udstyret med gulvvarme, og på det ene står et badekar klar efter en frisk gåtur ved Vesterhavet. Desuden er der også både vaskemaskine og tørretumbler.

Stor terrasse med udespa, udebruser og udesauna

Med direkte adgang fra den moderne stue, aktivitetsrummet og et badeværelse kommer I til det luksuriøse udendørsområde ved sommerhuset. En sand oase til afslapning venter jer her. På den store træterrasse finder du et stort udvalg af komfortable havemøbler, der står klar til en hyggelig grillaften, hvortil der er gasgrill tilgængelig. Det delvist afskærmede og overdækkede udeareal giver jer læ for vind og vejr og tilstrækkelig skygge på varme sommerdage.

En udespa står klar til afslapning og velvære efter en begivenhedsrig dag efterfulgt af en tur i den varme udesauna. Der er også en udebruser ved siden af ??feriehuset til en forfriskende skyller. Her kan I også skylle sand af fødderne efter en gåtur på stranden. Udebruseren kan benyttes fra april til november.

De yngste kan lege på den store naturgrund, som også har et gyngestativ, imens forældrene nyder et køligt glas vin på terrassen.

Uforglemmelig ferie i populære Bjerregård

Det luksuriøse aktivitetshus ligger i  Bjerregård kun 200 meter fra den kilometerlange sandstrand. Her kan I bygge sandslotte, samle muslinger, gå en tur med fødderne i vandkanten og meget andet, imens den friske havluft nydes i fulde drag.

Tager I en tur mod øst, kommer I til Ringkøbing Fjord, som er en rolig kontrast til det brusende Vesterhav. Fjorden er især populær blandt lystfiskere og vandsportsentusiaster. Også havnebyen Hvide Sande er et populært udflugtsmål. Her er der mulighed for at besøge de lokale butikker, hyggelige caféer og lækre restauranter.

Faciliteter

  • Opholdsrum

    • Gulv: Trælaminat
    • Gulvvarme
    • Radio
    • Brændeovn
    • Fladskærms-TV
      2
    • Dock/Bluetooth enhed
  • Soverum

    • Ekstra sovepl. Hems
      2
    • Gulv: Trælaminat
    • Gulvvarme
    • Dobbeltsenge
      3
    • Enkeltsenge
      4
    • Sovepladser
      10
    • Soverum
      4
    • Antal personer (loft, anneks osv.)
      2
  • Køkken

    • Komfur: Induktion m. ovn
    • Køleskab
    • Opvaskemaskine
    • Mikroovn
    • Separat fryser /L
      70
  • Baderum

    • Gulvvarme bad
    • Antal badeværelser
      2
  • Objektinfo - Inde

    • Areal: Hus m²
      155
    • Poolbillard
    • Bordtennis
    • Byggeår
      2021
    • Barneseng
      1
    • Barnestol
      1
    • Husdyr tilladt
    • Husdyr antal, max
      2
    • Ikke ryger hus
    • Personantal
      10
    • Danske TV-kanaler (Betalingskanaler)
    • Tyske tv-programmer
    • Tørretumbler
    • Varme: Varmepumpe luft til luft
    • Vaskemaskine
    • Flere hunde ved forespørgsel
    • Gratis fiber Internet
    • Chromecast
    • Jubilæumsmønt er udleveret
  • Objektinfo - ude

    • Afstand i meter: Hav
      200 m
    • Afstand i meter: Indkøb
      1,7 km
    • Grundens areal i m2
      1202
    • Gynge
    • Havemøbler
    • Solvogne
    • Parasol
    • Terrasse: åben
    • Terrasse: Afskærmet
    • Terrasse: Overdækket
    • Redskabsrum
    • Naturgrund
    • Affald hentes:
      Mandag
    • Affald: Helårstømning
    • Skraldespand - Liter
      240
    • Udespa: antal pers.
      5
    • Gasgrill
    • Udesauna
    • Udebruser (April - 1. november)
    • Udespa: Gæst fylder
    • Udespa: Frostsikker u. vand
  • Koncepter

    • Skiftedag: Fredag
    • Varme: 24 timer f. ankomst
    • Vandaflæsning
  • Miniferie

    • Ja, tak - tillad miniferie

Priser og kalender

Kalender

Ankomst
Forrige Næste
  • april 2026
    mationtofr
    1412345
    156789101112
    1613141516171819
    1720212223242526
    1827282930
    19
  • maj 2026
    mationtofr
    18123
    1945678910
    2011121314151617
    2118192021222324
    2225262728293031
    23
   Se om emnet er ledigt på den valgte dato
Ledig
Optaget
   Ankomst mulig
Varighed

Pris

Periode
Ankomst
Afrejse
Varighed
1 uge
Personer
Op til 10 personer

Bemærk

Ankomst er ikke valgt.
Aftale- og lejebetingelser