Rummeligt feriehus med sauna og lukket terrasse

Sommerhus - 8 personer - Dortheasvej - Bjerregård - 6960 - Hvide Sande

8 personer
Emne nr.: 328-285364
Hyggeligt og rummeligt feriehus med sauna, lukket terrasse og kort afstand til Vesterhavet i roligt område.
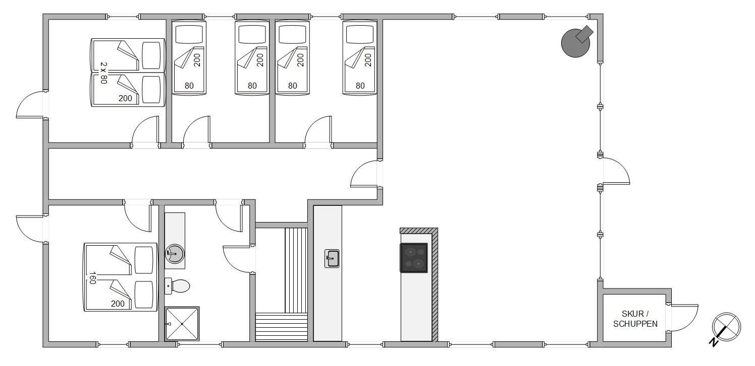
  • Soverum 4
  • Badeværelser 1
  • Boligareal 100 m²
  • Grundareal 1.200 m²
  • Husdyr 1
  • Tilbyder miniferie Nej
  • Afstand vand 400 m
  • Afstand indkøb 300 m
  • Sauna Ja
  • Highspeed internet Ja
  • Parabol/kabel TV Ja
  • Brændeovn Ja
  • Vaskemaskine Ja
  • Opvaskemaskine Ja
  • Ikkeryger Ja
  • Energivenligt Ja

Beskrivelse

Feriehuset er rummeligt og hyggeligt indrettet, og det ligger i et roligt område, hvor I uforstyrret kan nyde en afslappende ferie, hvortil den store lukkede terrasse og den lune sauna også er helt perfekte. Der er ikke langt til Vesterhavet, så I kan nemt komme ned og nyde solen og stranden.

8 personers feriehus med god rummelighed og hyggelig atmosfære

Feriehuset er godt indrette med 4 gode soveværelser til i alt 8 personer samt en en rummelige stue, der er indrettet med både spiseafdeling og opholdsafdeling med hjørnesofa, fladskærms-tv og brændeovn, så I har god mulighed for at sidde samlet under ferien. Og i det ene hjørne er der indrettet et godt, åbent køkken, hvor I sagtens kan få tilberedt maden samtidig med, at snakken fortsætter.

Skøn, stor lukket terrasse – perfekt til familien med hund

Sydvest for feriehuset har I en dejlig stor vinkelterrasse, hvor I har sol det meste af dagen, og hvor det også er muligt at sidde i læ. Og da terrassen er helt lukket af, kan I sagtens lade hunden gå rundt uden snor, mens I hygger jer i liggestolene med et par gode bøger.

Efter en dejlig tur ved stranden kan I vende tilbage til feriehuset, tænde op i grillen og nyde en kølig drink på terrassen, mens I følger med i børnenes leg på gyngerne eller i sandkassen.

Dejlig beliggenhed i roligt område tæt på stranden

Feriehuset ligger i Bjerregård, som er et dejligt naturområde tæt på Vesterhavet. Her kan I altid nemt komme til stranden og bade eller bygge flotte sandslotte med børnene.

Når I sidder på terrassen, vil I også kunne nyde den smukke natur med marehalm og lyng, som er karakteristisk for området. Og da naturen her er så velbevaret, vil I selvfølgelig også opleve en helt anden ro end i byerne, og som gør, at I kan slappe helt af uden at tænke på hverdagens opgaver.

Faciliteter

  • Opholdsrum

    • CD afspiller
    • DVD-afspiller
      1
    • Gulv: Trælaminat
    • Radio
    • Brændeovn
    • Fladskærms-TV
      1
  • Soverum

    • Gulv: Trælaminat
    • Dobbeltsenge
      2
    • Enkeltsenge
      4
    • Sovepladser
      8
    • Soverum
      4
  • Køkken

    • Komfur: El m. ovn
    • Køleskab
    • Opvaskemaskine
    • Mikroovn
    • Separat fryser /L
      50
  • Baderum

    • Sauna
    • Gulvvarme bad
    • Antal badeværelser
      1
  • Objektinfo - Inde

    • Areal: Hus m²
      100
    • Byggeår
      1984
    • Husdyr tilladt
    • Husdyr antal, max
      1
    • Ikke ryger hus
    • Personantal
      8
    • Renoveret
      2015
    • Danske TV-kanaler (Betalingskanaler)
    • Tyske tv-programmer
    • Varme: Elvarme
    • Varme: Varmepumpe luft til luft
    • Vaskemaskine
    • Satellit (tyske kanaler samt et par danske)
    • Gratis fiber Internet
    • Jubilæumsmønt er udleveret
  • Objektinfo - ude

    • Afstand i meter: Hav
      400 m
    • Afstand i meter: Indkøb
      300 m
    • Grundens areal i m2
      1200
    • Gynge
    • Sandkasse
    • Grill
    • Havemøbler
    • Solvogne
    • Terrasse: Lukket
    • Terrasse: Overdækket
    • Redskabsrum
    • Naturgrund
    • Affald hentes:
      Onsdag
    • Skraldespand - Liter
      240
  • Koncepter

    • Skiftedag: Fredag
  • Miniferie

    • Ja, tak - tillad miniferie

Priser og kalender

Kalender

Ankomst
Forrige Næste
  • juli 2026
    mationtofr
    2712345
    286789101112
    2913141516171819
    3020212223242526
    312728293031
    32
  • august 2026
    mationtofr
    3112
    323456789
    3310111213141516
    3417181920212223
    3524252627282930
    3631
   Se om emnet er ledigt på den valgte dato
Ledig
Optaget
   Ankomst mulig
Varighed

Pris

Periode
Ankomst
Afrejse
Varighed
1 uge
Personer
Op til 8 personer

Bemærk

Ankomst er ikke valgt.
Aftale- og lejebetingelser