Hyggeligt feriehus nær Vesterhavet med sauna

Sommerhus - 8 personer - Henriettevej - Bjerregård - 6960 - Hvide Sande

8 personer
Emne nr.: 328-237168
Hyggeligt feriehus nær Vesterhavet med sauna, spa og lukket terrasse – perfekt til familie og hunde.
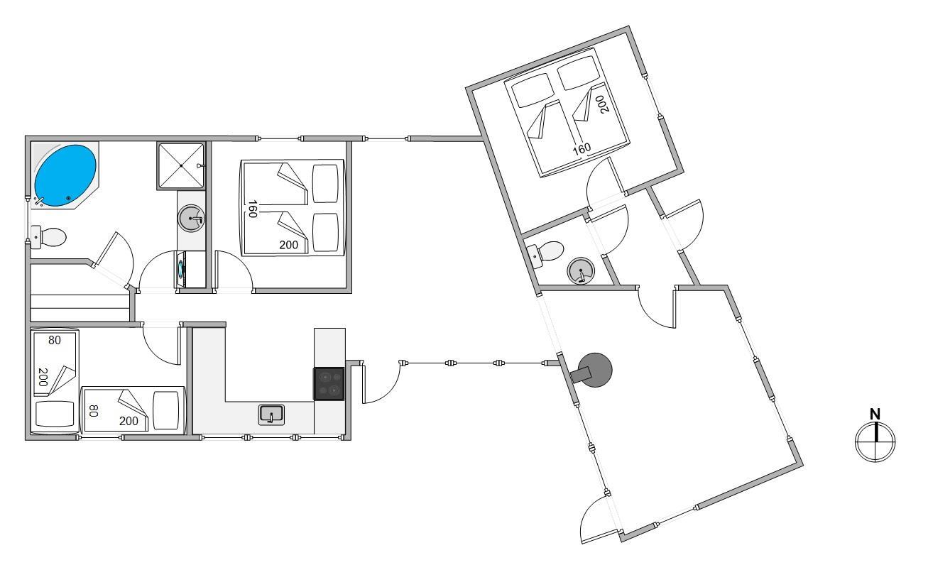
  • Soverum 3
  • Badeværelser 1
  • Boligareal 113 m²
  • Grundareal 1.100 m²
  • Husdyr 2
  • Tilbyder miniferie Nej
  • Afstand vand 200 m
  • Afstand indkøb 2 km
  • Spa Ja
  • Sauna Ja
  • Internet Ja
  • Parabol/kabel TV Ja
  • Brændeovn Ja
  • Vaskemaskine Ja
  • Tørretumbler Ja
  • Opvaskemaskine Ja
  • Ikkeryger Ja

Beskrivelse

Små 200 meter fra det brusende Vesterhav finder I dette klassiske feriehus. Her kan op mod 8 gæster samt jeres 2 hunde holde en skøn ferie i naturskønne omgivelser. Et lyst feriehus med gode praktiske faciliteter som sauna, spa og brændeovn plus en lukket terrasse – ideelt for småbørnsfamilien eller hundeejerne. Hjertelig velkommen på Henriettevej 2.

Lyst og venligt feriehus 

Når I har parkeret bilen, bliver I budt velkommen i dette klassiske sommerhus. Her er lyst og en venlig afslappende atmosfære med plads til hygge og gode minder med venner og familie. Feriehuset på 113 m2 har 3 rummelige soveværelser samt en hems. Hemsen er udstyret med madrasser og giver børnene en spændende og hyggelig oplevelse. Her kan I lade op og samle energi til de mange gode feriestunder.

Èt af de steder, der skal samles på ferieminder, er i det åbne alrum, der ligger i forbindelse med stuen. Her kan hele flokken samles, uanset om det er til spisning eller brætspilshygge. Efter maden klarer opvaskemaskinen let opvasken, således I kan rykke i stuen og bruge tiden sammen. Her kan I slænge jer i sofaen, se film eller læse en god bog foran den knitrende brændeovn – dét er ægte ferie.

På badeværelset inviteres I på afslapning med både sauna og spabad. Her kan I komme helt ned i gear, blive varmet godt igennem efter en lang gåtur eller lade børnene plaske i det varme vand. Praktisk er her også et gæstetoilet, så I undgår morgenkøen – begge har installeret gulvvarme. På badeværelset finder I desuden også vaskemaskine og tørretumbler, der sørger for, at jeres tøj altid er rent og friskt.

Børnevenlig lukket terrasse

Fra stuen har I adgang til terrassen, som er lukket og delvist overdækket. Det er her I skal nyde tilværelsen på de varme dage – havemøblerne står klar! Her kan hundene bevæge sig frit. En begivenhedsrig dag afsluttes selvfølgelig på terrassen med et lækkert grillmåltid! Tænd op i grillen, dæk bordet og lad grillmesteren trylle! Nyd hertil et dejligt glas vin. Som den perfekte afslutning, kan I bevæge jer mod stranden for at se den maleriske og betagende solnedgang?

Naturskønt område

Henriettevej er roligt sted, der indbyder til gåture med fuglenes sang i baggrunden. Området er fyldt af gode cykelstier, der snor sig gennem sommerhusvejene og det smukke kuperede landskab. Hurtigt kan I nå den lokale købmand, der dagligt får leveret friske rundstykker – perfekt til morgenkaffen.

Andre handlemuligheder findes i den hyggelige havneby, Hvide Sande, cirka 20 minutter nordligere. Her er et hav af oplevelser, hvad end I er til vandsport, maling på keramik eller gådejagt. På havnen kan I besøge butikkerne og slutte af med lidt godt til ganen på en af caféerne. Skal I længere væk på udflugt er Legoland, bowling i Skjern, museerne FLUGT eller JyllandsAkvariet bestemt også værd at nævne.

Faciliteter

  • Opholdsrum

    • DVD-afspiller
      1
    • Gulv: Klinker
    • Gulvvarme
    • Brændeovn
    • Fladskærms-TV
      1
  • Soverum

    • Ekstra sovepl. Hems
      2
    • Gulv: Trælaminat
    • Dobbeltsenge
      2
    • Enkeltsenge
      4
    • Sovepladser
      8
    • Soverum
      3
    • Antal personer (loft, anneks osv.)
      2
    • 1. soverum/sengestørrelser
      160x200
    • 2. soverum/sengestørrelser
      160x200
    • 3. soverum/sengestørrelser
      2x80x200
    • 4. soverum/sengestørrelser
      2x80x200
  • Køkken

    • Komfur: El m. ovn
    • Køleskab
    • Opvaskemaskine
    • Mikroovn
    • Separat fryser /L
      60
  • Baderum

    • Sauna
    • Gulvvarme bad
    • Gulvvarme gæstetoilet
    • Antal badeværelser
      1
    • Antal gæstetoiletter
      1
    • Tømmespa, antal pers.
      2
  • Objektinfo - Inde

    • Areal: Hus m²
      113
    • Byggeår
      2003
    • Barnestol
      1
    • Husdyr tilladt
    • Husdyr antal, max
      2
    • Ikke ryger hus
    • Gratis Internet
    • Personantal
      8
    • Tyske tv-programmer
    • Tørretumbler
    • Varme: Elvarme
    • Vaskemaskine
    • Satellit (tyske kanaler samt et par danske)
  • Objektinfo - ude

    • Afstand i meter: Hav
      200 m
    • Afstand i meter: Indkøb
      2 km
    • Grundens areal i m2
      1100
    • Grill
    • Havemøbler
    • Solvogne
    • Terrasse: Afskærmet
    • Terrasse: Lukket
    • Terrasse: Overdækket
    • Naturgrund
    • Affald hentes:
      Mandag
    • Affald: Helårstømning
    • Skraldespand - Liter
      240
  • Koncepter

    • Skiftedag: Fredag
    • Vandaflæsning
    • Varme: 48 timer før ankomst
  • Miniferie

    • Ja, tak - tillad miniferie

Priser og kalender

Kalender

Ankomst
Næste
  • februar 2026
    mationtofr
    51
    62345678
    79101112131415
    816171819202122
    9232425262728
    10
  • marts 2026
    mationtofr
    91
    102345678
    119101112131415
    1216171819202122
    1323242526272829
    143031
   Se om emnet er ledigt på den valgte dato
Ledig
Optaget
   Ankomst mulig
Varighed

Pris

Periode
Ankomst
Afrejse
Varighed
1 uge
Personer
Op til 8 personer

Bemærk

Ankomst er ikke valgt.
Aftale- og lejebetingelser