Hyggeligt sommerhus tæt på strand og natur

Sommerhus - 5 personer - Arvidvej - Bjerregård - 6960 - Hvide Sande

5 personer
Emne nr.: 328-230788
Hyggeligt sommerhus i Bjerregård med brændeovn og tæt på stranden, perfekt til afslapning i naturskønne omgivelser.
  • Soverum 3
  • Badeværelser 1
  • Boligareal 70 m²
  • Grundareal 1.240 m²
  • Husdyr Ikke tilladt
  • Tilbyder miniferie Nej
  • Afstand vand 600 m
  • Afstand indkøb 2 km
  • Internet Ja
  • Parabol/kabel TV Ja
  • Brændeovn Ja
  • Vaskemaskine Ja
  • Opvaskemaskine Ja
  • Ikkeryger Ja
  • Energivenligt Ja

Beskrivelse

I Bjerregård finder I dette klassiske 2-stjernede sommerhus, som har plads til 5 feriegæster. Feriehuset på Arvidvej 160 er bygget i 1984 og indbyder til ren afslapning. Efter en god dag på stranden kan I sætte jer til rette i sofahjørnet og nyde aftenen med varmen fra brændeovnen.

Hyggeligt opholdsrum med plads til hele familien

Samlingspunktet i feriehuset finder I i det hyggelige opholdsrum. Opholdsrummet ligger i åben forbindelse med sommerhusets køkken, så familien kan være samlet mest muligt under ferien. Stuen er indrettet med en brændeovn, som spreder varme og en ekstra hyggelig feriestemning. Sommerhuset har desuden en varmepumpe, som I med fordel kan benytte jer af.

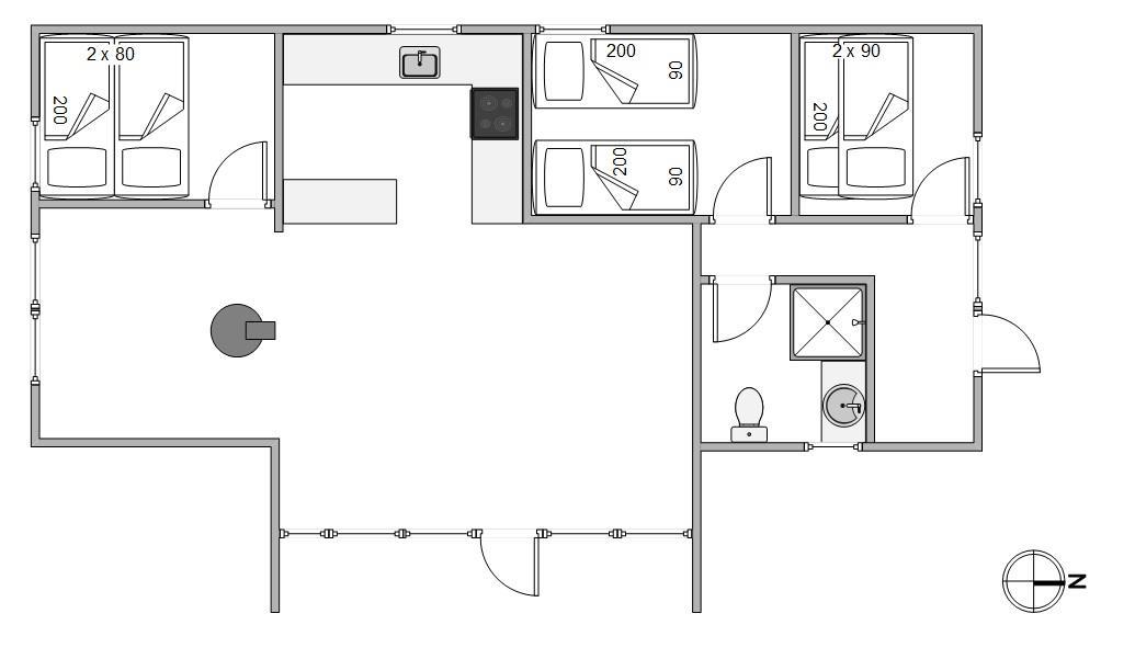
De 5 sovepladser fordeler sig på 3 soveværelser, hvoraf der er en dobbeltseng på det ene. De sidste to soveværelser er indrettet med henholdsvis 1 og 2 enkeltsenge.

Endeligt er der også en vaskemaskine i feriehuset, så I kan vaske lidt tøj i løbet af ferien.

Afskærmet terrasse på skøn naturgrund

Med en frisk kop kaffe kan morgensolen nydes på den østvendte og afskærmede terrasse, inden resten af familien vågner. Senere på dagen kan I rykke videre til den sydvendte terrasse, hvor solen kan nydes i fulde drag. Her er plads til hele familien, og der indbydes til mange hyggelige stunder sammen.

Mens aftenens grillmåltid forberedes, kan børnene lege på den skønne naturgrund.

Bjerregård mellem Vesterhavet og Ringkøbing Fjord

Stranden ligger kun 600 meter fra sommerhuset, hvor der kan bygges store sandslotte, samles muslinger og meget andet. På en varm sommerdag er det også oplagt at gå en god tur med fødderne i vandkanten.

Det naturskønne område i Bjerregård er præget af et smukt hede- og klitlandskab, som indbyder til lange gå- eller cykelture.

Til længere udflugter kan det varmt anbefales at besøge havnebyen Hvide Sande, hvor der er et bredt udvalg af lokale forretninger samt hyggelige caféer og restauranter. Der er også mulighed for at prøve kræfter med diverse vandsportsaktiviteter i Ringkøbing Fjord.

Faciliteter

  • Opholdsrum

    • Gulv: Træ
    • Brændeovn
    • Fladskærms-TV
      1
    • Dock/Bluetooth enhed
  • Soverum

    • Gulv: Trælaminat
    • Dobbeltsenge
      1
    • Enkeltsenge
      3
    • Sovepladser
      5
    • Soverum
      3
    • 1. soverum/sengestørrelser
      160x200
    • 2. soverum/sengestørrelser
      2x80x200
    • 3. soverum/sengestørrelser
      1x70x200
  • Køkken

    • Komfur: Induktion m. ovn
    • Køleskab
    • Opvaskemaskine
    • Separat fryser /L
      40
  • Baderum

    • Antal badeværelser
      1
  • Objektinfo - Inde

    • Areal: Hus m²
      70
    • Byggeår
      1984
    • Ikke ryger hus
    • Gratis Internet
    • Personantal
      5
    • Renoveret
      2008
    • Tyske tv-programmer
    • Varme: Elvarme
    • Varme: Varmepumpe luft til luft
    • Vaskemaskine
    • Satellit (tyske kanaler samt et par danske)
    • Chromecast
    • Jubilæumsmønt er udleveret
  • Objektinfo - ude

    • Afstand i meter: Hav
      600 m
    • Afstand i meter: Indkøb
      2 km
    • Grundens areal i m2
      1240
    • Grill
    • Havemøbler
    • Solvogne
    • Terrasse: Afskærmet
    • Terrasse: Overdækket
    • Naturgrund
    • Affald hentes:
      Mandag
    • Skraldespand - Liter
      240
  • Koncepter

    • Skiftedag: Lørdag
  • Miniferie

    • Ja, tak - tillad miniferie

Priser og kalender

Kalender

Ankomst
Forrige Næste
  • april 2026
    mationtofr
    1412345
    156789101112
    1613141516171819
    1720212223242526
    1827282930
    19
  • maj 2026
    mationtofr
    18123
    1945678910
    2011121314151617
    2118192021222324
    2225262728293031
    23
   Se om emnet er ledigt på den valgte dato
Ledig
Optaget
   Ankomst mulig
Varighed

Pris

Periode
Ankomst
Afrejse
Varighed
1 uge
Personer
Op til 5 personer

Bemærk

Ankomst er ikke valgt.
Aftale- og lejebetingelser