Hyggeligt sommerhus nær Vesterhavet og natur

Sommerhus - 4 personer - Toppebjerg - Bjerregård - 6960 - Hvide Sande

4 personer
Emne nr.: 328-167956
Hyggeligt sommerhus i Hvide Sande med fredelig beliggenhed nær Vesterhavet og naturskønne omgivelser.
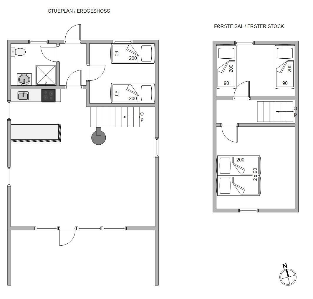
  • Soverum 3
  • Badeværelser 1
  • Boligareal 64 m²
  • Grundareal 2.796 m²
  • Husdyr Ikke tilladt
  • Tilbyder miniferie Nej
  • Afstand vand 600 m
  • Afstand indkøb 2.500 m
  • Internet Ja
  • Parabol/kabel TV Ja
  • Brændeovn Ja
  • Vaskemaskine Ja
  • Opvaskemaskine Ja
  • Ikkeryger Ja
  • Energivenligt Ja

Beskrivelse

Er I på udkig efter et lille, hyggeligt og velindrettet sommerhus med skøn og rolig beliggenhed på delvis lukket grund med buske og fyrretræer lige op til stort fredet hedeområde i det naturskønne Vestjylland? Så er I landet det helt rettet sted her på Toppebjerg 7. Sommerhuset har plads til 4 feriegæster, som kan nyde en dejlig ferie i skønne omgivelser.

Hyggeligt sommerhus i Danmark

Her kan I holde ferie i et rigtig hyggeligt og indbydende sommerhus med alt, hvad man behøver på den vellykkede ferie. I den lyse stue med komfortabel opholdsafdeling spreder den gedigne brændeovn den ægte sommerhushygge og de 2 fine soveværelser på 1.sal har fine senge til 4 personer.På det ene værelse fnder I en dobbeltseng, mens det andet værelse er indrettet med 2 komfortable enkeltsenge.

Sommerhuset er udstyret med TV/parabol, DVD, CD-radio og desuden gratis trådløst internet. Udover brændeovn har sommerhuset også en varmepumpe, som I med fordel kan benytte til et godt indeklima. I sommerhuset finder i desuden en vaskemaskine, så I har mulighed for lidt tøjvask i løbet af ferien.

Pragtfuld beliggenhed på stor naturgrund

Feriehuset ligger på en stor naturgrund med buske og fyrretræer lige op ad et stort fredet hedeområde, hvor den enestående vestjyske natur kan nydes på traveturene, som også skal gå til det imponerende Vesterhav eller den idylliske Ringkøbing Fjord. Vesterhavet ligger blot 400 meter herfra.

Sommerhuset har en god læfyldt, møbleret terrasse, som indbyder til mange hyggelige timer, og hvor der er god plads til hyggelige grillaftener og soldyrkning.

Info: Dette hus har antal liggestole til rådighed: 0 stk.

Faciliteter

  • Opholdsrum

    • CD afspiller
    • DVD-afspiller
      1
    • Gulv: Træ
    • Radio
    • Brændeovn
    • Fladskærms-TV
      1
  • Soverum

    • Gulv: Træ
    • Dobbeltsenge
      1
    • Enkeltsenge
      2
    • Sovepladser
      4
    • Soverum
      3
  • Køkken

    • Komfur: El m. ovn
    • Køleskab
    • Opvaskemaskine
    • Separat fryser /L
      10
  • Baderum

    • Antal badeværelser
      1
  • Objektinfo - Inde

    • Areal: Hus m²
      64
    • Byggeår
      1974
    • Ikke ryger hus
    • Gratis Internet
    • Personantal
      4
    • Tyske tv-programmer
    • Varme: Elvarme
    • Varme: Varmepumpe luft til luft
    • Vaskemaskine
    • Satellit (tyske kanaler samt et par danske)
    • Jubilæumsmønt er udleveret
  • Objektinfo - ude

    • Afstand i meter: Hav
      600 m
    • Afstand i meter: Indkøb
      2,5 km
    • Grundens areal i m2
      2796
    • Grill
    • Havemøbler
    • Solvogne
    • Terrasse: Afskærmet
    • Naturgrund
    • Affald hentes:
      Onsdag
    • Skraldespand - Liter
      240
  • Koncepter

    • Skiftedag: Lørdag
  • Miniferie

    • Ja, tak - tillad miniferie

Priser og kalender

Kalender

Ankomst
Næste
  • februar 2026
    mationtofr
    51
    62345678
    79101112131415
    816171819202122
    9232425262728
    10
  • marts 2026
    mationtofr
    91
    102345678
    119101112131415
    1216171819202122
    1323242526272829
    143031
   Se om emnet er ledigt på den valgte dato
Ledig
Optaget
   Ankomst mulig
Varighed

Pris

Periode
Ankomst
Afrejse
Varighed
1 uge
Personer
Op til 4 personer

Bemærk

Ankomst er ikke valgt.
Aftale- og lejebetingelser