Hyggeligt træhus med spabad og sauna

Sommerhus - 8 personer - Kirksvej - Bjerregård - 6960 - Hvide Sande

8 personer
Emne nr.: 328-167117
Hyggeligt træhus i Bjerregård med spabad, sauna, brændeovn og gåafstand til strand og indkøb.
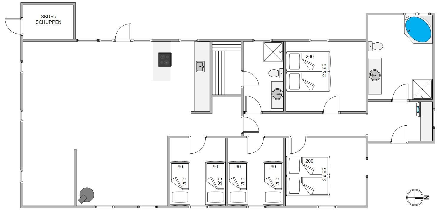
  • Soverum 4
  • Badeværelser 2
  • Boligareal 128 m²
  • Grundareal 1.299 m²
  • Husdyr 2
  • Tilbyder miniferie Nej
  • Afstand vand 800 m
  • Afstand indkøb 200 m
  • Spa Ja
  • Sauna Ja
  • Internet Ja
  • Parabol/kabel TV Ja
  • Brændeovn Ja
  • Vaskemaskine Ja
  • Tørretumbler Ja
  • Opvaskemaskine Ja
  • Ikkeryger Ja
  • Ladestander til elbil Ja
  • Energivenligt Ja

Beskrivelse

På Kirksvej 28 i Bjerregård ligger dette hyggelige træhus, som rummer plads til 8 personer og 2 hunde. Feriehuset indbyder til ren afslapning - der er både et spabad I kan slænge jer i, samt en sauna I efterfølgende kan nyde varmen i. Derudover har feriehuset en god beliggenhed tæt på indkøb og i gåafstand til stranden.

Ægte ferieidyl med brændeovn, spabad og sauna

Husets indre oser af ægte sommerhuscharme – med træbeklædte vægge og brændeovnen, som står midt i stuen. Stuen er slået sammen med køkkenet, og det giver et stort fællesrum, hvor mange hyggelige timer med familien kan bruges. Huset er dejligt lyst, og dette skyldes især vinduespartierne, som lukker lyset ind udefra. Generelt er der blevet brugt lyse farver i indretningen, hvilket skaber en hyggelig og rolig stemning i huset.

Der er installeret en energibesparende varmepumpe, som i kan benytte ved behov.

Der er 2 badeværelser, hvoraf det ene badeværelse rummer både spabad og sauna. Her kan I rigtig nyde feriestemningen, når I får tændt op i boblebadet og mærker varmen fra saunaen efterfølgende.

Dejlig beliggenhed i Bjerregårds smukke klitlandskab

Feriehuset er omgivet af smukt klitlandskab så langt øjet rækker. I skal ikke gå særlig længe, før I har både indkøbsmuligheder og stranden i sigte. Der er nemlig 200 meter til den lokale købmand og 800 meter til stranden. I har altså rig mulighed for at tage jeres hunde med på skønne gåture til stranden, hvor de rigtigt kan boltre sig i Vesterhavets bølger.

Feriehuset har også en stor lukket terrasse, samt en have dertil, som til glæde for børnene har både sandkasse og gyngestativ.

Jeres elbil kan i lade ved husets lademulighed, der er en ladeboks medbring eget kabel.

Vores gæsteanmeldelser Eksterne anmeldelser

4,0
Baseret på 1 vurdering
Vurderet d. 12-07-2021
5
(0)
4
(1)
3
(0)
2
(0)
1
(0)
Kommentarer
Ingen vurderinger har kommentarer.

Faciliteter

  • Opholdsrum

    • Gulv: Trælaminat
    • Radio
    • Brændeovn
    • Fladskærms-TV
      1
    • Dock/Bluetooth enhed
  • Soverum

    • Gulv: Trælaminat
    • Dobbeltsenge
      2
    • Enkeltsenge
      4
    • Sovepladser
      8
    • Soverum
      4
  • Køkken

    • Komfur: El m. ovn
    • Køleskab
    • Opvaskemaskine
    • Mikroovn
    • Separat fryser /L
      100
  • Baderum

    • Sauna
    • Gulvvarme bad
    • Antal badeværelser
      2
    • Tømmespa, antal pers.
      2
  • Objektinfo - Inde

    • Areal: Hus m²
      128
    • Byggeår
      1984
    • Barnestol
      1
    • Husdyr tilladt
    • Husdyr antal, max
      2
    • Ikke ryger hus
    • Gratis Internet
    • Personantal
      8
    • Renoveret
      2011
    • Tørretumbler
    • Varme: Elvarme
    • Varme: Varmepumpe luft til luft
    • Vaskemaskine
    • Satellit (tyske kanaler samt et par danske)
    • Jubilæumsmønt er udleveret
  • Objektinfo - ude

    • Afstand i meter: Hav
      800 m
    • Afstand i meter: Indkøb
      200 m
    • Grundens areal i m2
      1299
    • Gynge
    • Sandkasse
    • Grill
    • Havemøbler
    • Solvogne
    • Parasol
    • Terrasse: Lukket
    • Terrasse: Overdækket
    • Redskabsrum
    • Naturgrund
    • Affald hentes:
      Onsdag
    • Affald: Helårstømning
    • Skraldespand - Liter
      240
    • Ladestik til el-bil
  • Koncepter

    • Skiftedag: Søndag
    • Vandaflæsning
  • Miniferie

    • Ja, tak - tillad miniferie

Priser og kalender

Kalender

Ankomst
Næste
  • februar 2026
    mationtofr
    51
    62345678
    79101112131415
    816171819202122
    9232425262728
    10
  • marts 2026
    mationtofr
    91
    102345678
    119101112131415
    1216171819202122
    1323242526272829
    143031
   Se om emnet er ledigt på den valgte dato
Ledig
Optaget
   Ankomst mulig
Varighed

Pris

Periode
Ankomst
Afrejse
Varighed
1 uge
Personer
Op til 8 personer

Bemærk

Ankomst er ikke valgt.
Aftale- og lejebetingelser