Hyggeligt sommerhus nær Vesterhavet i Bjerregård

Sommerhus - 6 personer - Bjerregårdsvej - Bjerregård - 6960 - Hvide Sande

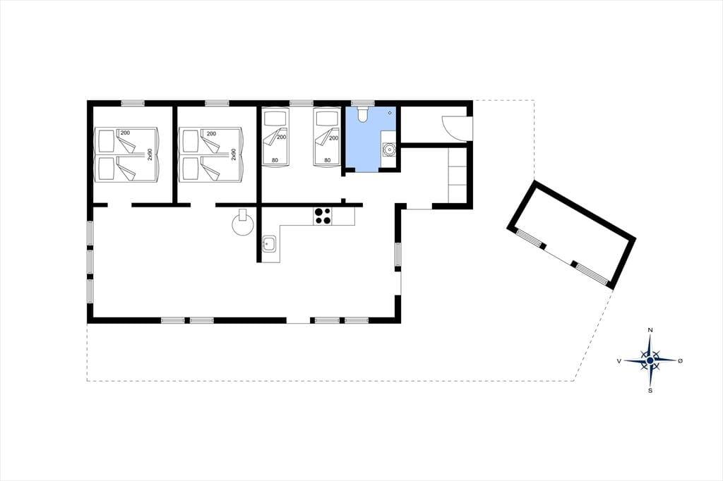
6 personer
Emne nr.: 039-604
Hyggeligt sommerhus i Bjerregård med solrig terrasse, anneks og kun 700 meter til Vesterhavets strand.
  • Soverum 3
  • Badeværelser 1
  • Boligareal 85 m²
  • Grundareal 1.200 m²
  • Husdyr Ikke tilladt
  • Tilbyder miniferie Nej
  • Afstand vand 700 m
  • Afstand indkøb 800 m
  • Highspeed internet Ja
  • Parabol/kabel TV Ja
  • Brændeovn Ja
  • Aircondition Ja
  • Vaskemaskine Ja
  • Opvaskemaskine Ja
  • Ikkeryger Ja
  • Ladestander til elbil Ja
  • Energivenligt Ja

Beskrivelse

Dette dejlige sommerhus ligger skønt placeret i det fredelige og naturskønne sommerhusområde Bjerregård. Vesterhavets smukke strande venter blot 700 meter væk, og på hjemmeadressen bliver ferielivet forsødet af et solrigt terrassemiljø, en brændeovn og et skønt anneks med bordfodbold.

Indendørs

Lysindfaldet er godt i stuen, for her i det store opholdsrum er der vinduer vendt mod tre verdenshjørner. Det gør det også muligt at nyde udsigten til husets flotte klitgrund og de naturskønne omgivelser, hvilket er en dejlig påmindelse om, at I befinder jer langt væk fra hverdagens rutiner. Stuen har for øvrigt loft til kip, brændeovn, varmepumpe og tv med Chromecast, og den åbne forbindelse til køkkenet gør det nemt at nyde tiden sammen. Privatliv kan I få på husets tre gode soveværelser, der i alt har sengepladser til seks personer, og morgenbrusebadet kommer til at foregå i uforstyrrede rammer på husets velindrettede badeværelse. Endelig har I et ekstra opholdsrum i form af et moderne anneks, hvor I kan spille bordfodbold eller slappe af med fin udsigt til klitgrunden.

Udendørs

Sommerhusets store terrassemiljø vender mod syd, så det er dejligt solrigt, og I har også mulighed for at finde læ mod vinden, når den blæser ind fra havet. På terrassen er der flere gode havemøbler at vælge imellem, og en grill er også til rådighed. Til børnene er der en gynge, og hvis I er kørt til Bjerregård i elbil, skal I bare huske at medbringe et kabel for at benytte laderen.

Beliggenhed

Den 1200 m2 store og kuperede klitgrund ligger midt i Bjerregård for enden af en lukket vej. Turen til Vesterhavet kan hurtigt tilbagelægges, når I vil ned stranden – det er en skøn oplevelse i al slags vejr og hele året rundt. I Bjerregård er der en købmand og en sjov legeplads til de yngste feriegæster, og uanset om I kører sydpå til Nymindegab eller nordpå til Hvide Sande, kan I se frem til at bevæge jer gennem Holmsland Klits smukke kystlandskab. Vil I på en udflugt, kan I blandt andet køre til det beskyttede naturområde Tipperne, hvor store fugleflokke kommer forbi på træk.

GRATIS! Udlån af barnestole og barnesenge. Hvis det er tilladt at have husdyr i huset, har vi også hundesenge til udlån (kan hentes og afleveres hos )

EL-bil opladning: Tjek oplysningerne på husets faciliteter, om det er tilladt at oplade EL-bilen.



Faciliteter

  • Hus Info

    • Anneksareal
      15 m²
    • Antal voksne
      6
    • Bruser
    • Byggeår
      2000
    • Grundareal / Naturgrund
      1200 m²
    • Husareal
      85 m²
    • WC
  • Afstande

    • Afstand fjord
      1 km
    • Afstand golfbane
      30 km
    • Afstand indkøb / Helårsbutik
      800 m
    • Afstand kyst
      700 m
    • Afstand restaurant
      5,5 km
    • Afstand strand / Sand-/stenstrand
      700 m
    • Afstand svømmehal
      16 km
  • Energi / Opvarmning

    • Brændeovn
    • Elvarme
    • Varmepumpe / Med køl
  • Hårde hvidevarer

    • Elkedel
    • Emhætte
    • Fryser
      60
    • Kaffemaskine
    • Kogeplader
      Glaskeramisk kogeplade med 4 blus
    • Køleskab
    • Mikroovn
    • Opvaskemaskine
    • Ovn
    • Vaskemaskine
  • Multimedier

    • Chromecast
    • Dansk tv
    • Gratis Wi-Fi - Over 20 Mbit
    • Parabol
    • TV
    • Tysk TV
  • Ekstra

    • Bordfodbold
  • Udenfor

    • Grill
    • Gynge
    • Havemøbler
    • Liggestole
      4
    • Lukket terrasse
      50 m²
    • Parasol
      2
    • Parkering på grunden
  • Diverse

    • 2 x Dobbeltseng 2 x 90 x 200
    • 2 x Enkeltseng 80 x 200
    • 4 x Flise-/klinkegulv
    • Gulvvarme
  • Regler

    • Husdyr ikke tilladt
    • Opladning af elbil tilladt / Lader til elbil forefindes (Type 2-stik, medbring kabel)
    • Rygning ikke tilladt
  • Pris inklusiv

    • Gratis adgang til Badeland / Svømmehal / Hvide Sande Svømmehal
    • Slutrengøring inkl.
    • Vand inkl.
  • GAMMEL

    • 3 x Væg-til-væg tæppe
    • CD
    • DVD
    • Energisparehus
    • Radio

Priser og kalender

Kalender

Ankomst
Forrige Næste
  • april 2026
    mationtofr
    1412345
    156789101112
    1613141516171819
    1720212223242526
    1827282930
    19
  • maj 2026
    mationtofr
    18123
    1945678910
    2011121314151617
    2118192021222324
    2225262728293031
    23
   Se om emnet er ledigt på den valgte dato
Ledig
Optaget
   Ankomst mulig
Varighed
Personer

Pris

Periode
Ankomst
Afrejse
Varighed
1 uge
Personer
Ingen personer er valgt

Bemærk

Ankomst er ikke valgt.
Der er ikke valgt personer.
Aftale- og lejebetingelser