Alternative emner
Hyggeligt sommerhus i naturskønne Arrild
Sommerhus - 6 personer - Vestskoven - Arrild - 6520 - Toftlund
6 personer
Emne nr.: 121-29-3196
Hyggeligt sommerhus i Arrild med moderne faciliteter og natur tæt på.
- Soverum 2
- Badeværelser 1
- Boligareal 63 m²
- Grundareal 875 m²
- Husdyr 1
- Tilbyder miniferie Ja
- Afstand vand 20 km
- Afstand indkøb 1.800 m
- Internet Ja
- Parabol/kabel TV Ja
- Brændeovn Ja
- Ikkeryger Ja
- Energivenligt Ja
Beskrivelse
Dejligt sommerhus på lukket vej i feriebyen. Her er der et åbent stue-/køkkenmiljø med direkte udgang til den delvist overdækkede terrasse.
Ikke langt fra huset er der svømmehal, restaurant, indkøb og fiskesø. Tag på en dagstur til ferieøen Rømø ude midt i Nationalpark Vadehav, som er en del af UNESCO Verdensarv.
Indretning
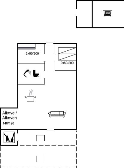
Sommerhuset egner sig til 6 personer. 3 af sovepladserne er kun egnet til større børn (4-11 år). Ferieboligen er på 63 m² og er bygget i 1980. I 2015 gennemgik ferieboligen en renovering. Det er tilladt at medbringe 1 husdyr. Ferieboligen er udstyret med 1 energibesparende luft til luft varmepumpe. Frysekapacitet på 15 liter. Der er desuden brændeovn. Til de små er der 1 stk. barnestol.
Udenfor
Ferieboligen er beliggende på en 875 m² stor naturgrund. Der er 29000 m til havet. Der er 20000 m til Vadehavet. Der er en sø i en afstand af 1600 m. Nærmeste forretning er beliggende i en afstand af 1800 m. Der er en golfbane i en afstand af 2000 m. Til ferieboligen hører åbent terrasseareal. Desuden er der overdækket terrasse. Der er redskabsrum. Der ligger en legeplads i en afstand af 1700 m. Grill til rådighed. Der er carport til rådighed. Parkering ved ferieboligen.
Soveforhold
Der er i alt 2 soveværelser. Sovepladserne fordeler sig på: 2 sovepladser i dobbeltseng. 2 sovepladser i køjeseng. 2 sovepladser i alkove.- 2 af disse sovepladser befinder sig i stuen.
Køkken
Køkkenet er udstyret med 1 køleskab. Der er 4 keramiske kogeplader, varmluftovn.
Toilet og bad
Der er 1 badeværelse med bruseniche og 1 toilet.. Der er gulvvarme på 1 badeværelse.
Multimedier
I ferieboligen findes 1 Smart-TV. Der er mindst 4 danske kanaler. 1-3 svenske kanaler. 1-3 norske kanaler. 1-3 tyske kanaler. Der er trådløst internet til rådighed.
Værd at vide
Ingen udlejning til ungdomsgrupper, hvor alle er 15-25 år. Rygning ikke tilladt. Ved overtrædelse af forbuddet opkræves et gebyr på minimum DKK 3.000,-.
Indretning
Sommerhuset egner sig til 6 personer. 3 af sovepladserne er kun egnet til større børn (4-11 år). Ferieboligen er på 63 m² og er bygget i 1980. I 2015 gennemgik ferieboligen en renovering. Det er tilladt at medbringe 1 husdyr. Ferieboligen er udstyret med 1 energibesparende luft til luft varmepumpe. Frysekapacitet på 15 liter. Der er desuden brændeovn. Til de små er der 1 stk. barnestol.
Udenfor
Ferieboligen er beliggende på en 875 m² stor naturgrund. Der er 29000 m til havet. Der er 20000 m til Vadehavet. Der er en sø i en afstand af 1600 m. Nærmeste forretning er beliggende i en afstand af 1800 m. Der er en golfbane i en afstand af 2000 m. Til ferieboligen hører åbent terrasseareal. Desuden er der overdækket terrasse. Der er redskabsrum. Der ligger en legeplads i en afstand af 1700 m. Grill til rådighed. Der er carport til rådighed. Parkering ved ferieboligen.
Soveforhold
Der er i alt 2 soveværelser. Sovepladserne fordeler sig på: 2 sovepladser i dobbeltseng. 2 sovepladser i køjeseng. 2 sovepladser i alkove.- 2 af disse sovepladser befinder sig i stuen.
Køkken
Køkkenet er udstyret med 1 køleskab. Der er 4 keramiske kogeplader, varmluftovn.
Toilet og bad
Der er 1 badeværelse med bruseniche og 1 toilet.. Der er gulvvarme på 1 badeværelse.
Multimedier
I ferieboligen findes 1 Smart-TV. Der er mindst 4 danske kanaler. 1-3 svenske kanaler. 1-3 norske kanaler. 1-3 tyske kanaler. Der er trådløst internet til rådighed.
Værd at vide
Ingen udlejning til ungdomsgrupper, hvor alle er 15-25 år. Rygning ikke tilladt. Ved overtrædelse af forbuddet opkræves et gebyr på minimum DKK 3.000,-.
Vores gæsteanmeldelser Eksterne anmeldelser
Faciliteter
-
Adgang til ferieboligen
-
Nøgleboks med kode
-
-
Bemærk
-
Ingen ungdomsgrupper efter anmodning
-
Rygning er forbudt
-
-
Gratis badeland
-
Arrild offentlig svømmenhal
-
-
Indretning
-
Antal børn 4-11 år3
-
Antal voksne inkl. 4-11 år6
-
Bebygget areal63 m²
-
Brændeovn1
-
Byggeår1980
-
Feriebolig
-
Frysekapacitet (antal liter)15
-
Husdyr1
-
Højstol1
-
Renovering2015
-
Varmepumpe
-
Varmepumpe luft til luft
-
-
Køkken
-
Antal keramiske kogeplader4
-
Køleskab1
-
Varmluftovn1
-
-
Multimedier
-
> 3 danske kanaler
-
0-3 norske kanaler
-
0-3 svenske kanaler
-
0-3 tyske kanaler
-
Antal tv'er1
-
Download200
-
Smart-Tv1
-
Trådløst internet
-
Upload200
-
-
Soveforhold
-
Alkove (antal sovepladser)2
-
Antal soveværelser2
-
Dobbeltseng (antal sovepladser)2
-
Køjeseng (antal sovepladser)2
-
Soveplads ikke i soveværelset
-
-
Toilet og bad
-
Antal badeværelser1
-
Antal toiletter1
-
Brusekabine
-
Gulvvarme1
-
-
Udenfor
-
Butik1,8 km
-
Carport
-
Golfbane2 km
-
Grill1
-
Hav29 km
-
Legeplads1700
-
Natursted
-
Overdækket terrasse
-
Parkeringsplads ved huset
-
Redskabsskur
-
Størrelse af grunden875 m²
-
Sø1,6 km
-
Terrasse
-
Vadehavet20 km
-
Miniferie
Der er begrænset mulighed for miniferie hele året, typisk uden for højsæsonen.
Priser og kalender
Kalender
Varighed
Pris
Periode
- Ankomst
- Afrejse
- Varighed
- 1 uge
Personer
Op til 6 personer
Bemærk
Ankomst er ikke valgt.