Hyggeligt feriehus med stor terrasse i Arnager

Sommerhus - 4 personer - Vellensbyvejen - Arnager - 3700 - Rønne

4 personer
Emne nr.: 130-I61382
Hyggeligt feriehus i Arnager nær Rønne med brændeovn, stor terrasse og stor have, tæt på cykelstier og sandstrand.
  • Soverum 2
  • Badeværelser 1
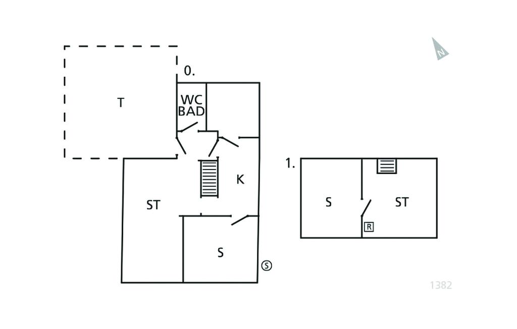
  • Boligareal 100 m²
  • Husdyr Ikke tilladt
  • Tilbyder miniferie Ja
  • Afstand vand 3.500 m
  • Afstand indkøb 4.700 m
  • Internet Ja
  • Parabol/kabel TV Ja
  • Brændeovn Ja
  • Vaskemaskine Ja
  • Opvaskemaskine Ja
  • Ikkeryger Ja
  • Energivenligt Ja

Beskrivelse

Dejligt feriehus i to plan, som ligger på landet, lidt uden for Rønne og kun 3,5 km fra en børnevenlig sandstrand.

I stueetagen finder I en hyggelig opholdsstue med spiseplads, hvor I kan flade ud og i kølige sæsoner nyde varmen og den hyggelige atmosfære fra brændeovnen. På denne etage har I også det veludstyrede køkken, badeværelset og et soveværelse med dobbeltseng. I finder en vaskemaskine i bryggerset. På 1. sal er der yderligere et soveværelse og en hyggelig TV-stue, som er det perfekte sted at trække op om aftenen.

Til huset hører en stor træterrasse med havemøbler og en grill, så I kan tilberede lækre feriemåltider. I har også en stor have til rådighed, med god plads til leg og fysisk udfoldelse.

Huset ligger smukt, omgivet af marker og skov, kun 200 meter fra øens gode cykelvejnet og ganske tæt på det hele omkring charmerende Rønne. I kan også tage til hyggelige Hasle og gå en skøn tur i Svartingedalen.

Glæd jer til en afslappende ferie i et godt feriehus i flotte, landlige omgivelser.

Rumindretning

  • Feriebolig
    • Soveværelse, 2 personer
      • Dobbeltseng
    • Soveværelse, 2 personer
      • Dobbeltseng
    • Badeværelse
      • WC. Varmt og koldt vand, Bruser
    • Køkken
    • Køkken
    • Terrasse
      • Åben terrasse

Vores gæsteanmeldelser Eksterne anmeldelser

Ingen gæsteanmeldelser
5,0
2 eksterne anmeldelser
5,0
juli 2025
Tjek ind:
5
Rengøring:
5
Komfort:
4
Faciliteter:
5
Beliggenhed:
4
Værdi for pengene:
4
Generel:
Super netter Empfang durch die Vermieterin. Sehr liebevoll eingerichtetes Haus. Ruhige Lage und idealer Ausgangspunkt für Radtouren. Wir kommen gern wieder.
5,0
juni 2025
Tjek ind:
5
Rengøring:
5
Komfort:
5
Faciliteter:
5
Beliggenhed:
5
Værdi for pengene:
5
Generel:
Wir haben uns sehr wohl gefühlt in dem Ferienhaus. Das Haus liegt ruhig am Ende einer Sackgasse und verfügt über alles, was man im Urlaub benötigt. Sollte man kältere Tage erwischen, ist es in dem Haus - dank einer Wärmepumpe - bei Bedarf trotzdem angenehm warm. Alles war sehr sauber und liebevoll eingerichtet. Wir haben in 3 Wochen Aufenthalt nichts vermisst und uns sehr gut erholt. Uneingeschränkte Empfehlung.

Faciliteter

  • Bad

    • WC. Varmt og koldt vand
  • Bemærk

    • Udl. ikke til ungdomsgrupper
  • Diverse

    • Antal gratis børn (< 4 år)
      1
    • Delvis isoleret
    • EL ekskl.
    • Energikilde: Biomasse
    • Energikilde: Hydro
    • Energikilde: Solenergi
    • Energikilde: Vind
    • Feriehus
      100 m²
    • Helårshus
    • Kæledyr Nej
    • Luft- eller jordvarmepumpe
    • Miljøvenlige produkter
    • Opvarmning alternativ, Varmepumpe
    • Parabol, tyske kanaler
    • Renoveret
      2018
    • Selvbetjent check-in
    • Vand inkl.
    • Vaskemaskine
  • El artikler

    • 1 TV
    • DK-DR1
    • Internet (trådløst)
  • I nærheden

    • Afs. til nærmeste vand/badning
      3,5 km
    • Afstand til indkøb
      4,7 km
    • Golfbane
      3,8 km
    • Nærmeste by
      4,7 km
  • Indendørs

    • Brændeovn
  • Koncepter

    • Husdyrfrit
    • Røgfrit hus
  • Køkken

    • Fryser
      70 l
    • Køkkenet har v/k vand
    • Mikroovn
    • Opvaskemaskine
    • Ovn og el-plader
  • Udendørs

    • Grill
    • Havemøbler

Miniferie

Der er begrænset mulighed for miniferie hele året, typisk uden for højsæsonen.

Priser og kalender

Kalender

Ankomst
Forrige Næste
   Se om emnet er ledigt på den valgte dato
Ledig
Optaget
   Ankomst mulig
Varighed

Pris

Periode
Ankomst
Afrejse
Varighed
1 uge
Personer
Op til 4 personer

Bemærk

Ankomst er ikke valgt.
Aftale- og lejebetingelser