Eksklusivt feriehus ved stranden med spa og sauna

Sommerhus - 6 personer - Jennelsvej - Årgab - 6960 - Hvide Sande

6 personer
Emne nr.: 328-904096
Smukt feriehus i første klitrække ved Vestkysten med spa, sauna og panoramaudsigt over Ringkøbing Fjord.
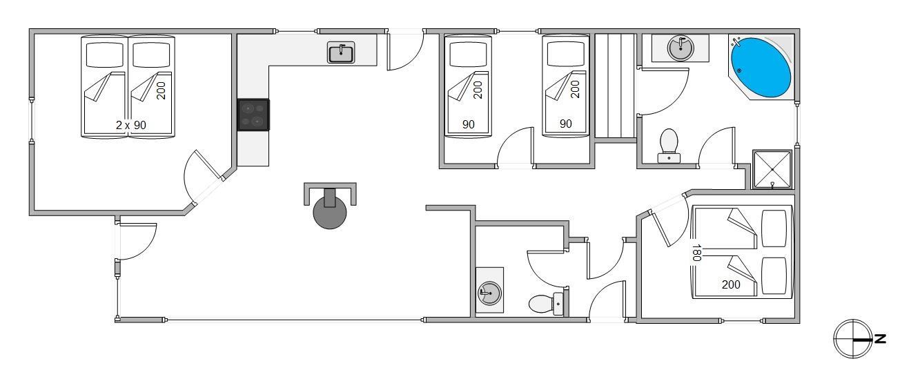
  • Soverum 3
  • Badeværelser 1
  • Boligareal 109 m²
  • Grundareal 5.000 m²
  • Husdyr Ikke tilladt
  • Tilbyder miniferie Nej
  • Afstand vand 50 m
  • Afstand indkøb 2.200 m
  • Spa Ja
  • Sauna Ja
  • Highspeed internet Ja
  • Parabol/kabel TV Ja
  • Brændeovn Ja
  • Vaskemaskine Ja
  • Tørretumbler Ja
  • Opvaskemaskine Ja
  • Ikkeryger Ja
  • Energivenligt Ja

Beskrivelse

Beliggende for enden af en blind vej og i første klitrække finder du dette smukke feriehus på Jennelsvej 21. Kun 50 meter adskiller dig fra havet af Vestkysten - beliggenheden af dette feriehus er helt eksklusiv.

Med op til 6 personer kan du nyde panoramaudsigten over ferieområdet og Ringkøbing Fjord og lade den friske havluft blæse dig om næsen. Ekstra faciliteter som spa og sauna fuldender din afslappende ferieoplevelse.

Skandinavisk hygge og sans for detaljer

Den typiske skandinaviske hygge byder dig velkommen, så snart du træder ind i dette skønne sommerhus. Det åbne stue- og spiseområde har en bred glasfront, der skaber et flot lysinfald. Den hyggelige sofa inviterer til en afslappende filmaften med hele familien. TV'et med chromecast og dvd- afspilller byder på mange muligheder.

Brændeovnen skaber en særlig hyggelig atmosfære og omfavner jer med sin varme. Desuden kan I tænde for den energibesparende varmepumpe.

Det moderne køkken lader intet tilbage at ønske. Her kan du fremtrylle lækre menuer med hele familien. De 3 soveværelser er opdelt i 2 værelser med dobbeltsenge samt et værelse med 2 enkeltsenge. Ingen kø om morgenen, der er både et badeværelse samt et gæstetoilet til rådighed og på begge er der installeret gulvvarme.

Vaskemaskine og tørretumbler står til rådighed, så I kan have rene håndklæder hver dag, efter I har været ved stranden og slappet af i feriehusets egen sauna eller spabad.

Eksklusiv panoramaudsigt fra den rummelige terrasse

Denne perle af sommerhus ligger højt og for enden af vejen i klitterne til Vesterhavet. På den delvist afskærmede og overdækkede terrasse finder du altid den perfekte plads til at læse en god bog eller bare nyde en kop friskbrygget kaffe.

Direkte adgang til stranden og nær Hvide Sande

Med direkte adgang til stranden er dette feriehus det ideelle udgangspunkt for strandturene. Her har I mange muligheder for at dyrke vandsport eller opleve naturen ved lange vandre- eller cykelture. Ringkøbing Fjord er blot 500 meter væk og området og er kendt for sine vandsportmuligheder samt fiskeri.

Fra det smukke ferieområde Årgab er du tæt på havnebyen Hvide Sande, hvor du finder mange forskellige butikker samt restauranter, caféer og kulturelle aktiviteter. 

Faciliteter

  • Opholdsrum

    • DVD-afspiller
      1
    • Gulv: Trælaminat
    • Radio
    • Brændeovn
    • Fladskærms-TV
      1
  • Soverum

    • Gulv: Trælaminat
    • Dobbeltsenge
      2
    • Enkeltsenge
      2
    • Sovepladser
      6
    • Soverum
      3
    • 1. soverum/sengestørrelser
      180X200
    • 2. soverum/sengestørrelser
      180X200
    • 3. soverum/sengestørrelser
      2x90x200
  • Køkken

    • Komfur: Induktion m. ovn
    • Køleskab
    • Opvaskemaskine
    • Mikroovn
    • Separat fryser /L
      50
  • Baderum

    • Sauna
    • Gulvvarme bad
    • Gulvvarme gæstetoilet
    • Antal badeværelser
      1
    • Antal gæstetoiletter
      1
    • Tømmespa, antal pers.
      2
  • Objektinfo - Inde

    • Areal: Hus m²
      109
    • Byggeår
      2009
    • Barneseng
      1
    • Ikke ryger hus
    • Personantal
      6
    • Renoveret
      2026
    • Danske TV-kanaler (Betalingskanaler)
    • Tyske tv-programmer
    • Tørretumbler
    • Varme: Elvarme
    • Varme: Varmepumpe luft til luft
    • Vaskemaskine
    • Satellit (tyske kanaler samt et par danske)
    • Gratis fiber Internet
    • Chromecast
    • Jubilæumsmønt er udleveret
  • Objektinfo - ude

    • Afstand i meter: Hav
      50 m
    • Afstand i meter: Indkøb
      2,2 km
    • Grundens areal i m2
      5000
    • Grill
    • Havemøbler
    • Solvogne
    • Parasol
    • Parkering: Garage
    • Terrasse: åben
    • Terrasse: Afskærmet
    • Terrasse: Overdækket
    • Naturgrund
    • Klitgrund
    • Panoramaudsigt
    • Affald hentes:
      Onsdag
    • Affald: Helårstømning
    • Skraldespand - Liter
      240
  • Koncepter

    • Skiftedag: Søndag
  • Miniferie

    • Ja, tak - tillad miniferie

Priser og kalender

Kalender

Ankomst
Forrige Næste
  • december 2026
    mationtofr
    49123456
    5078910111213
    5114151617181920
    5221222324252627
    5328293031
    1
  • januar 2027
    mationtofr
    53123
    145678910
    211121314151617
    318192021222324
    425262728293031
    5
   Se om emnet er ledigt på den valgte dato
Ledig
Optaget
   Ankomst mulig
Varighed

Pris

Periode
Ankomst
Afrejse
Varighed
1 uge
Personer
Op til 6 personer

Bemærk

Ankomst er ikke valgt.
Aftale- og lejebetingelser