Moderne feriehus med spabad og aktivitetsrum

Sommerhus - 8 personer - Granvej - Årgab - 6960 - Hvide Sande

8 personer
Emne nr.: 039-4426
Moderne sommerhus i Aargab nær strand med spabad, sauna og aktivitetsrum for familie og venner.
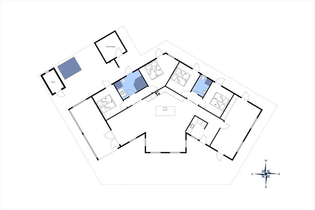
  • Soverum 4
  • Badeværelser 2
  • Boligareal 180 m²
  • Grundareal 1.400 m²
  • Husdyr 2
  • Tilbyder miniferie Nej
  • Afstand vand 200 m
  • Afstand indkøb 2.300 m
  • Spa Ja
  • Sauna Ja
  • Highspeed internet Ja
  • Parabol/kabel TV Ja
  • Aktivitetsrum Ja
  • Vaskemaskine Ja
  • Tørretumbler Ja
  • Opvaskemaskine Ja
  • Ikkeryger Ja
  • Energivenligt Ja

Beskrivelse

Granvej 4 er det helt rette sted at holde sommerhusferie, hvis du drømmer om at samle familien eller vennerne til nogle afslappende dage i fantastiske omgivelser. Den lukkede vej fører nemlig lige ned til Aargab Strand, og i selve sommerhuset kan I have det sjovt i aktivitetsrummet, dække op til overdådige måltider på terrassen og nyde livet i spabadet og tøndesaunaen.

Velkommen indenfor

Inden døre i det moderne sommerhus er atmosfæren lys og indretningen stilfuld, og der er masser af plads, så det er muligt at være op til otte personer og to hunde. Hvis du elsker at lave mad, kan du se frem til at trylle lækkerier frem i det flotte, åbnekken – eventuelt med hjælp fra nogle af de andre, mens resten af selskabet hygger sig omkring spisebordet eller i den komfortable sofaafdeling. Uanset om I er billardhajer eller mindre garvede, er det sjovt at tage et spil eller to i aktivitetsrummet. Måske kan I endda få en turnering i gang, der løber hen over hele ferien? I spabadet på det ene af de to badeværelser er der til gengæld ikke lagt op til konkurrencer, men blot total afslapning.

Nyd livet udenfor

Ikke bare fra stue og aktivitetsrum, men også fra de fire soveværelser er der havedør ud til terrassemiljøet, så det er ingen sag at komme ud i det fri, når solen skinner. Fra spabadeværelset har du også direkte adgang til det udendørs wellnessmiljø, der består af en tøndesauna, en udebruser og et stort spabad. Det er den rene selvforkælelse at sidde her og koble helt af uanset årstiden. Et stort og åbent terrasseareal breder sig syd for sommerhuset, og mod vest venter en overdækket terrasse, hvor I uden problemer kan sidde alle sammen med udsigt til klitterne og det fredfyldte sommerhusområde.

Kom tæt på de lokale oplevelser

Den lille, lukkede vej, som sommerhuset ligger på, fører lige ud til klitterne, og herfra kan du følge en sti det sidste stykke til Aargab Strand. Gåturen er så kort, at du sagtens kan tilbagelægge distancen flere gange dagligt – så hvis du for eksempel vil begynde dagen med en løbetur i vandkanten og senere vil tage børnene med ned for at bygge sandslotte, kan det nemt lade sig gøre. Sommerhuset ligger for øvrigt ikke kun tæt på Vesterhavet, men også Ringkøbing Fjord, så der er rig mulighed for at surfe og prøve andre vandaktiviteter i løbet af ferien. Cykling og lystfiskeri er også populært på Holmsland Klit og mon ikke hele familien vil elske at tage den korte tur ind til Hvide Sande for at daske rundt i de hyggelige gader og spise is ved havnen.

GRATIS! Udlån af barnestole og barnesenge. Hvis det er tilladt at have husdyr i huset, har vi også hundesenge til udlån (kan hentes og afleveres hos )

EL-bil opladning: Tjek oplysningerne på husets faciliteter, om det er tilladt at oplade EL-bilen.


Rumindretning

  • Soveværelse
    • Dobbeltseng - 180*200
  • Soveværelse
    • Dobbeltseng - 180*200
  • Soveværelse
    • Dobbeltseng - 180*200
  • Soveværelse
    • Dobbeltseng - 180*200

Vores gæsteanmeldelser Eksterne anmeldelser

5,0
Baseret på 1 vurdering
Vurderet d. 20-07-2025
5
(1)
4
(0)
3
(0)
2
(0)
1
(0)
Kommentarer
Ingen vurderinger har kommentarer.

Faciliteter

  • Hus Info

    • 2 x Bruser
    • 2 x WC
    • Antal husdyr
      2
    • Antal voksne
      8
    • Byggeår
      2020
    • Grundareal / Naturgrund
      1400 m²
    • Husareal
      180 m²
    • Indendørs spabad
    • Sauna
      Ude, tønde sauna
    • Udendørs spabad / Standvandsspa
  • Afstande

    • Afstand fjord
      500 m
    • Afstand golfbane
      17 km
    • Afstand indkøb / Helårsbutik
      2,3 km
    • Afstand kyst
      200 m
    • Afstand restaurant
      230 m
    • Afstand strand / Sand-/stenstrand
      200 m
    • Afstand svømmehal
      3 km
  • Energi / Opvarmning

    • Jordvarme
  • Hårde hvidevarer

    • Elkedel
    • Emhætte
    • Fryser
      60
    • Kaffemaskine
    • Kogeplader
    • Køleskab
    • Mikroovn
    • Opvaskemaskine
    • Ovn
    • Tørretumbler
    • Vaskemaskine
  • Multimedier

    • 5 x TV
    • Dansk tv
    • Gratis Wi-Fi - Over 100 Mbit
    • Parabol
    • Tysk TV
  • Ekstra

    • Aktivitetshus
    • Bordtennis
    • Pool/billard
  • Udenfor

    • Bålsted
    • Grill
      Kul
    • Gynge
    • Havemøbler
    • Liggestole
      4
    • Overdækket terrasse
    • Parkering på grunden
    • Sandkasse
    • Udendørs bruser
    • Åben terrasse
  • Diverse

    • 10 x Gulvvarme
    • 2 x Flise-/klinkegulv
    • 8 x Træ-/parketgulv
  • Regler

    • Opladning af elbil ikke tilladt
    • Rygning ikke tilladt
  • Pris inklusiv

    • Slutrengøring inkl.
    • Vand inkl.
  • GAMMEL

    • Energisparehus

Priser og kalender

Kalender

Ankomst
Forrige Næste
  • november 2026
    mationtofr
    441
    452345678
    469101112131415
    4716171819202122
    4823242526272829
    4930
  • december 2026
    mationtofr
    49123456
    5078910111213
    5114151617181920
    5221222324252627
    5328293031
    1
   Se om emnet er ledigt på den valgte dato
Ledig
Optaget
   Ankomst mulig
Varighed
Personer

Pris

Periode
Ankomst
Afrejse
Varighed
1 uge
Personer
Ingen personer er valgt

Bemærk

Ankomst er ikke valgt.
Der er ikke valgt personer.
Aftale- og lejebetingelser